いるかビル
ここに注目!函館元町「いるかビル」2階の貸店舗物件です。 函館市電「末広町」駅徒歩8分、「十字街」駅徒歩9分と、アクセス良好です。 広々とした専有面積285.25m²で、飲食全般(重飲食可)やカフェにおすすめ。 前面ガラス張りで視認性が高く、袖看板も設置可能。店舗運営をサポートします。 エアコン、エレベーター、ガス・給排水設備、男女別トイレなど設備も充実。 さらに、店舗運営に嬉しい無料駐車場が10台分も利用可能!集客も期待できます。 函館山ロープウェイや元町公園など観光スポットが点在するエリアで、多くの人通りが期待できます。 新たなビジネスチャンスをこの場所で。ぜひご検討ください。
この物件は レストラン 喫茶・カフェ の居抜き物件です。
現状の設備が残されたまま取引されるため、初期費用を抑え速やかに事業を開始できるメリットがあります。
| 賃料・費用 |
142万4,500円
(+管理費等 28万4,790円)
坪単価:約1.7万円/坪
敷777万円礼なし仲142万4,500円
保証金:なし
|
|---|---|
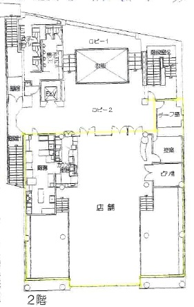
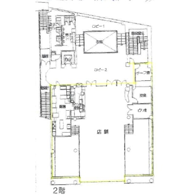
| 専有面積 | 285.25m² (86.28坪) |
| 住所 | 北海道函館市元町18-14 |
| 交通 | 末広町駅(徒歩8分)|十字街駅(徒歩9分)道順を見る |
| 階/階建 | 2階 / 3階建(地下1階) |
| 築年月 | 築32年(1993年2月) |
| 駐車場 |
あり 駐車可能台数:10台
屋外共有駐車場 |
空室確認、見学、詳細を知りたい方はこちら!
お電話の際は「連合隊の物件」とお伝えください。
情報掲載期限:あと22日(更新日 2025/11/27)
- 物件写真・概要
- 周辺地図
-
空室確認、見学、詳細を知りたい方はこちら!
おすすめポイント
- 駐車2台以上可
- 造作譲渡料無料
- 袖看板あり
- 出店するなら…この業種がおすすめ!
- 飲食全般(重飲食含む)

- 喫茶・カフェ(軽飲食)

- バー・クラブ・スナック

- 小売・物販

- 美容・健康・介護

- 医療

- 教育・スクール

- 事務所

- アミューズメント

交通色がついているアイコンをクリックすると、本物件までの道順を見ることができます。
物件概要
所在階/建物の階建 2階(2階) / 地上3階 地下1階建 主要採光面 北東 構造 その他(鉄筋コンクリート・鉄骨造) 間取り 契約期間 3年間 権利金 なし 住宅保険 お問合せください 出店推奨業種 飲食全般(重飲食含む)、喫茶・カフェ(軽飲食) 出店不可業種 居抜き情報 [レストラン、喫茶・カフェ] の居抜き造作譲渡料 無料 土地面積 980.81m² (296.69坪)(公簿)接道状況 一方 - 北西側幅12.20mの公道に36.97m接道
用途地域 - 第1種住居地域(建ぺい率:60% / 容積率:200%)
引渡し 相談 管理人 無 取引態様 仲介 物件No 設備・特徴 - エレベーター
- 照明器具付
- ガス設備
- 給排水設備
- エアコン付
- 前面ガラス張り
- 男女別トイレ(共用部)
- 袖看板あり
備考 ◇間取、設備等は現状を優先とします◇ 設置している設備等は残置物の為、修繕・メンテナンス・交換・廃棄は借主負担となります◇ 初回保証料:賃料等の総額の100%、月額手数料:毎月440円(税込)、年間更新料:賃料等総額の10%◇ 主な周辺施設色がついているアイコンをクリックすると、本物件までの道順を見ることができます。
-
※連合隊は物件情報の精度向上に努めています:「物件情報に誤りがある」「成約済みである」などお気付きの点がございましたらこちらよりご連絡ください。
写真枚数:30枚
函館市内の売買・賃貸はフルカワ不動産販売へお任せください
昭和60年4月より不動産業に従事してまいりました。 経験を基に 新たな知識も取り入れ、お客様のご希望にお応えします。 女性スタッフも従事しております。お気軽にご相談下さい。