ホボ本町ビルヂング
ここに注目!☆お問い合わせは、㈱フルカワ不動産販売0138-83-1144へ☆彡
この物件は、入居後1ヶ月分の賃料が無料になります。
契約時の初期費用を抑えることができるメリットがあります。違約金などは不動産会社にお問合せください。
| 賃料・費用 |
6万7,100円
(+管理費等 6,000円)
坪単価:約9,243円/坪
敷なし礼6万7,100円(1ヶ月)仲6万7,100円
保証金:なし/敷引・償却金:なし
|
|---|---|
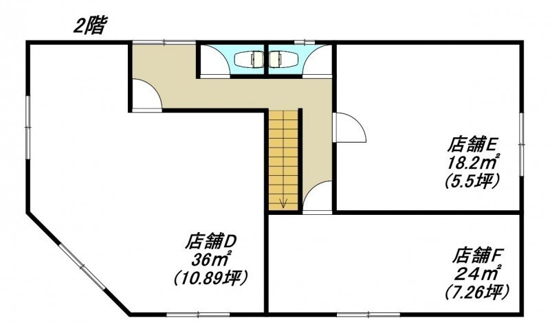
| 専有面積 | 24m² (7.26坪) |
| 住所 | 北海道函館市本町34-1 |
| 交通 | 中央病院前駅(徒歩3分)|千代台駅(徒歩4分) |
| 階/階建 | 2階 / 2階建 |
| 築年月 | 築55年(1970年10月) |
| 駐車場 |
なし
|
空室確認、見学、詳細を知りたい方はこちら!
お電話の際は「連合隊の物件」とお伝えください。
情報掲載期限:あと19日(更新日 2025/12/11)
- 物件写真・概要
- 周辺地図
-
空室確認、見学、詳細を知りたい方はこちら!
おすすめポイント
- 即入居可
- 駅徒歩3分以内
- 複数路線利用可
- 商店街に面す
- 幹線道路沿い
- リフォーム済み
- スケルトン
- 出店するなら…この業種がおすすめ!
- 飲食全般(重飲食含む)

- 喫茶・カフェ(軽飲食)

- バー・クラブ・スナック

- 小売・物販

- 美容・健康・介護

- 医療

- 教育・スクール

- 事務所

- アミューズメント

交通色がついているアイコンをクリックすると、本物件までの道順を見ることができます。
物件概要
所在階/建物の階建 2階(F) / 地上2階建 主要採光面 南 構造 木造 間取り 契約期間 3年間 更新料/更新手数料 なし / なし 権利金 なし フリーレント あり(フリーレント期間1ヶ月) 住宅保険 お問合せください 出店推奨業種 飲食全般(重飲食含む)、喫茶・カフェ(軽飲食)、バー・クラブ・スナック 出店不可業種 接道状況 角地 - 西側幅0.00mの道に0.00m接道
- 南側幅0.00mの道に0.00m接道
用途地域 - 商業地域(建ぺい率:80% / 容積率:400%)
引渡し 即時 管理人 巡回 取引態様 仲介 物件No 修繕履歴 - 2025年7月頃に部分的にリフォームしています。施工内容:外壁塗装
設備・特徴 - 複数路線利用可
- 商店街に面す
- 幹線道路沿い
- スケルトン
備考 ※間取・設備は現状を優先致します◇保証会社加入必須【初回保証料:賃料総額の100%・ 月額保証料:賃料総額の1%・ 更新料:賃料総額の10%/年)◇ 設置している設備等は残置物の為、修繕・メンテナンス・交換・廃棄は借主負担となります◇窓を開閉できない状態まで塞ぐ造作は不可となります◇ 主な周辺施設色がついているアイコンをクリックすると、本物件までの道順を見ることができます。
-
※連合隊は物件情報の精度向上に努めています:「物件情報に誤りがある」「成約済みである」などお気付きの点がございましたらこちらよりご連絡ください。
写真枚数:30枚
共用
函館市内の売買・賃貸はフルカワ不動産販売へお任せください
昭和60年4月より不動産業に従事してまいりました。 経験を基に 新たな知識も取り入れ、お客様のご希望にお応えします。 女性スタッフも従事しております。お気軽にご相談下さい。