こちらの物件もいかがでしょうか
富岡町3丁目29番貸家
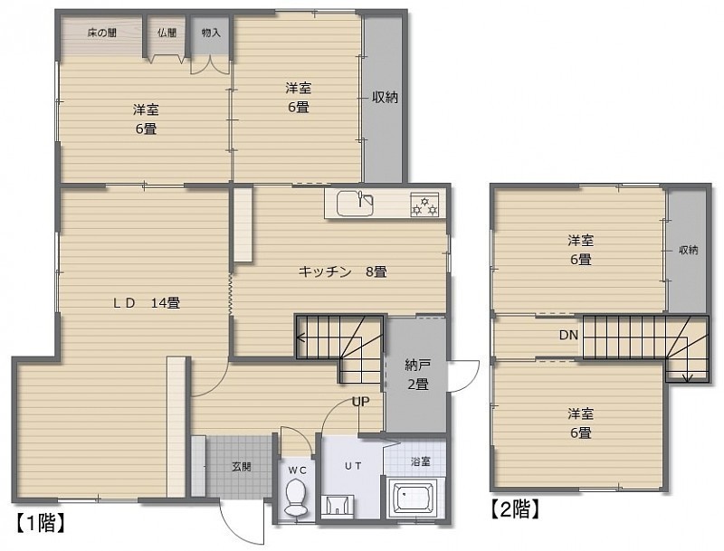
ここに注目!お車2台駐車OK!大家族でも広々使える4LDKの一戸建てが利便性の良い富岡町エリアに登場です★リビングはなんと14帖!キッチンは8帖もあり窮屈さは感じません♪専用庭もあり、ガーデニングも楽しめちゃいます◎2階の洋室には残置物ですがそれぞれエアコン付き!小学校・中学校もそんなに遠くなく、通学もラクラク! 物件のお問い合わせはビッグ函館店【0138-83-6083】までお問い合わせください!
| 賃料・費用 |
6万8,000円(+管理費等 なし)
敷なし礼6万8,000円(1ヶ月)仲7万4,800円
保証金:なし
|
|---|---|
| 間取・専有 |
4LDK(103.68m²)└ 1階:LD14帖 K8帖 洋室6帖 洋室6帖 その他2帖 / 2階:洋室6帖 洋室6帖
|
| 住所 | 北海道函館市富岡町3-29-22 |
| 交通 | 函館バス「富岡」停 (徒歩4分) |
| 築年月 | 築57年(1968年12月) |
| 駐車場 |
あり (無料) 駐車可能台数:2台
2台目は軽自動車限定です。 |
空室確認、見学、詳細を知りたい方はこちら!
お電話の際は「連合隊の物件」とお伝えください。
情報掲載期限:あと8日(更新日 2026/1/12)
- 物件写真・概要
- 周辺地図
-
空室確認、見学、詳細を知りたい方はこちら!
おすすめポイント
- オール電化
- 南向き
- 角地
- 都市ガス
- 車庫あり
- 駐車2台以上可
- エアコン付
- 平屋
- 追い焚き風呂
- ペット相談可
- リフォーム済み
- 敷金・礼金0円
- 近くて便利!徒歩5分以内にある施設
- 5分
5分- 周辺施設を地図で確認
交通
- 函館バス「富岡」停 徒歩4分
物件概要
建物の階建 地上2階建 主要採光面 構造 木造 契約期間 2年間 住宅保険 1万8,000円(2年間) その他費用 毎月の費用 - 2台目駐車場料:5,000円
入居可能時期 相談(修繕予定) 管理人 巡回 取引態様 仲介 物件No SNKN 設備・特徴 - 物置
- 日当り良好
- 照明器具付
- 室内洗濯機置場
- 専用庭
- 納戸・トランクルーム
- シューズボックス
- バス/トイレ別
- 温水洗浄トイレ
- 独立洗面台
- シャワー付洗面化粧台
- 浴室に窓
- ガスコンロ
- コンロ2口
- 都市ガス
- エアコン付
- 灯油暖房
- モニタ付インターホン
- 保証人不要
- 家賃保証会社利用可
備考 ◇保証会社利用必須(初回保証料:賃料総額の50%/月額保証料:880円/1年毎更新料:10,000円) ◇間取り・設備等は現況を優先とします。 ◇駐車2台可(2台目:月額5,000円) ◇安心入居サポート24(2年間)適用可能:16,500円 ◇照明器具・エアコン・ガスコンロ・灯油暖房・温水洗浄便座・TVドアホン・室内90リットルタンクは残置物です。 学区色がついているアイコンをクリックすると、本物件までの道順を見ることができます。
主な周辺施設色がついているアイコンをクリックすると、本物件までの道順を見ることができます。
-
ホームページはこちら
北海道知事 渡島(3) 第1130号
ビッグ函館店
※連合隊は物件情報の精度向上に努めています:「物件情報に誤りがある」「成約済みである」などお気付きの点がございましたらこちらよりご連絡ください。
写真枚数:30枚
メガドンキホーテ
ヤマダ電機



新規物件どんどん追加中!賃貸・売買・管理のプロが集まるお店 ビッグ函館店にお問合せください!
函館市・北斗市・七飯町の物件は当店にお任せください お気軽にご来店・お問い合わせ下さい。 ■営業時間 AM9:00~PM6:00 ■ 定休日 毎週水曜日・第3木曜日