函館小笠原ビル
ここに注目!■JR函館駅前のオフィスビル!!業種はお問い合わせください!!■
| 賃料・費用 |
29万1,324円
(+管理費等 -円)
坪単価:約4,408円/坪
敷79万4,520円礼なし仲29万1,324円
保証金:なし
|
|---|---|
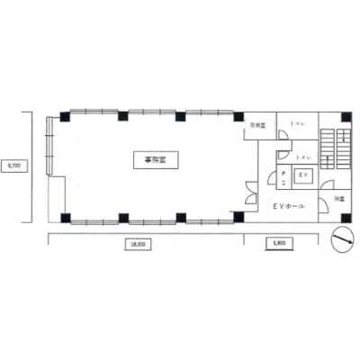
| 専有面積 | 218.51m² (66.09坪) |
| 住所 | 北海道函館市若松町7-15 |
| 交通 | 函館駅(徒歩1分)|函館バス 「函館駅前」停(徒歩2分)道順を見る |
| 階/階建 | 4階 / 7階建(地下1階) |
| 築年月 | 築37年(1988年11月) |
| 駐車場 |
あり (1万6,500円/台) 駐車可能台数:1台
|
空室確認、見学、詳細を知りたい方はこちら!
お電話の際は「連合隊の物件」とお伝えください。
情報掲載期限:あと26日(更新日 2025/12/1)
- 物件写真・概要
- 周辺地図
-
空室確認、見学、詳細を知りたい方はこちら!
おすすめポイント
- 駅徒歩1分以内
- 複数路線利用可
- 駅前立地
- 駐車場あり
- エアコン付
交通色がついているアイコンをクリックすると、本物件までの道順を見ることができます。
- 函館駅JR函館本線、道南いさりび鉄道線、函館市電2系統、函館市電5系統駅近!徒歩1分
- 函館バス 「函館駅前」停徒歩2分
物件概要
所在階/建物の階建 4階(401) / 地上7階 地下1階建 主要採光面 構造 鉄筋コンクリート(RC)造 間取り 契約期間 権利金 なし 住宅保険 お問合せください 接道状況 角地 用途地域 - 商業地域(建ぺい率:80% / 容積率:400%)
引渡し 相談 管理人 日勤 取引態様 仲介 物件No 設備・特徴 - エアコン付
- 個別空調
- 複数路線利用可
- 駅前立地
- 商店街に面す
- 幹線道路沿い
- エレベーター
- 照明器具付
備考 ※連帯保証人に代わる家賃保証会社利用必須(大手法人契約の場合は不要)初回保証料:賃料等総額の1ヶ月分 年間保証料:賃料等総額の10%相当額 月額手数料:440円 主な周辺施設色がついているアイコンをクリックすると、本物件までの道順を見ることができます。
-
ホームページはこちら
北海道知事 渡島(4) 第1079号
(株)野村エステート〒041-0806
TEL:0138-34-7211
FAX:0138-34-7222
営業時間:9:00~18:00
定休日:毎週 土曜・日曜・祝日
- 加入団体
- (公社)全日本不動産協会
- 保証協会
- (公社)不動産保証協会
- 公正取引協議会
- (一社)北海道不動産公正取引協議会
※連合隊は物件情報の精度向上に努めています:「物件情報に誤りがある」「成約済みである」などお気付きの点がございましたらこちらよりご連絡ください。
写真枚数:2枚