旧)セブンイレブン函館人見町店貸店舗
ここに注目!■遺愛女子高校裏の駒場通沿いに旧コンビニ物件情報がでました!!敷地面積248坪、建物面積56.44坪、駐車場10台可能!!業種等はご相談ください■
この物件の契約期間は 5年間です。
定期借家物件は、賃貸借契約期間満了後、原則として契約の更新ができない物件です。再契約の可否については不動産会社にお問合せください。
| 賃料・費用 |
38万5,000円
(+管理費等 -円)
坪単価:約6,822円/坪
敷210万円礼38万5,000円(1ヶ月)仲38万5,000円
保証金:なし/敷引・償却金:なし
|
|---|---|
| 専有面積 | 186.59m² (56.44坪) |
| 住所 | 北海道函館市人見町5-24 |
| 交通 | 杉並町駅(徒歩7分)道順を見る |
| 階/階建 | 1階建 |
| 築年月 | 築27年(1998年9月) |
| 駐車場 |
あり 駐車可能台数:10台
|
空室確認、見学、詳細を知りたい方はこちら!
お電話の際は「連合隊の物件」とお伝えください。
情報掲載期限:あと26日(更新日 2025/12/1)
- 物件写真・概要
- 周辺地図
-
空室確認、見学、詳細を知りたい方はこちら!
おすすめポイント
- 駐車2台以上可
- スケルトン
- 出店するなら…この業種がおすすめ!
- 飲食全般(重飲食含む)

- 喫茶・カフェ(軽飲食)

- バー・クラブ・スナック

- 小売・物販

- 美容・健康・介護

- 医療

- 教育・スクール

- 事務所

- アミューズメント

※出店不可の業種:その他
交通色がついているアイコンをクリックすると、本物件までの道順を見ることができます。
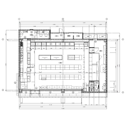
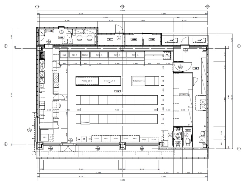
物件概要
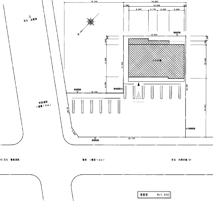
建物の階建 地上1階建 総戸数 1戸 構造 鉄骨造 間取り その他1階:その他 契約期間 定期借家(5年間) 権利金 なし 住宅保険 お問合せください 出店推奨業種 飲食全般(重飲食含む)、美容・健康・介護、教育・スクール 出店不可業種 その他(コンビニ、スーパー等の小売業出店不可) 土地面積 821.73m² (248.57坪)(公簿)接道状況 角地 - 西側幅10.90mの公道に接道
- 北側幅15.00mの公道に接道
用途地域 - 第2種中高層住居専用地域(建ぺい率:60% / 容積率:200%)
引渡し 相談 管理人 無 取引態様 仲介 物件No 修繕履歴 - 2013年10月頃に物件全体を部分的にリフォームしています。施工内容:構造変更、2階減築、1階増築、内外装リフォーム
設備・特徴 - 角地
- 給排水設備
- スケルトン
- 前面ガラス張り
- 男女別トイレ
備考 ※電気の引込工事は借主様のご負担となります。 ※エアコン撤去、簡易清掃予定 ※連帯保証人に代わる家賃保証会社利用必須 初回保証料:賃料等の1ヶ月分相当額 年間保証料:賃料等の10%相当額 月額手数料:440円(大手法人契約の場合保証会社利用不要) ※契約年数は応相談 主な周辺施設色がついているアイコンをクリックすると、本物件までの道順を見ることができます。
-
ホームページはこちら
北海道知事 渡島(4) 第1079号
(株)野村エステート〒041-0806
TEL:0138-34-7211
FAX:0138-34-7222
営業時間:9:00~18:00
定休日:毎週 土曜・日曜・祝日
- 加入団体
- (公社)全日本不動産協会
- 保証協会
- (公社)不動産保証協会
- 公正取引協議会
- (一社)北海道不動産公正取引協議会
※連合隊は物件情報の精度向上に努めています:「物件情報に誤りがある」「成約済みである」などお気付きの点がございましたらこちらよりご連絡ください。
写真枚数:24枚