昭和タウンプラザB棟
ここに注目!■ロードサイド型複合型商業施設「昭和タウンプラザ」のご紹介です!!函館ではもっともポピュラーで集客力絶大な商業施設です!!駐車場台数全930台収容可能!!募集区画はツルハドラッグ2階になります。■
この物件の契約期間は 3年間です。
定期借家物件は、賃貸借契約期間満了後、原則として契約の更新ができない物件です。再契約の可否については不動産会社にお問合せください。
| 賃料・費用 |
37万3,230円
(+管理費等 5万7,420円)
坪単価:約8,902円/坪
敷203万5,800円仲37万3,230円
|
|---|---|
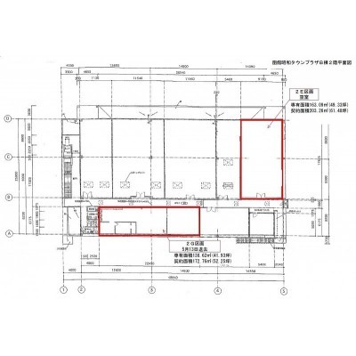
| 専有面積 | 138.62m² (41.93坪) |
| 住所 | 北海道函館市昭和1-29-7 |
| 交通 | 函館バス「昭和ターミナル」停 (徒歩4分)|五稜郭駅(徒歩27分)道順を見る |
| 階/階建 | 2階 / 2階建 |
| 築年月 | |
| 駐車場 |
あり
従業員用1台当たり3,300円 ※来客用は賃料に含みます。 |
空室確認、見学、詳細を知りたい方はこちら!
お電話の際は「連合隊の物件」とお伝えください。
情報掲載期限:あと13日(更新日 2026/2/18)
- 物件写真・概要
- 周辺地図
-
空室確認、見学、詳細を知りたい方はこちら!
おすすめポイント
- 即入居可
- 複数路線利用可
- 商店街に面す
- 幹線道路沿い
- 駐車場あり
- スケルトン
- 出店するなら…この業種がおすすめ!
- 飲食全般(重飲食含む)

- 喫茶・カフェ(軽飲食)

- バー・クラブ・スナック

- 小売・物販

- 美容・健康・介護

- 医療

- 教育・スクール

- 事務所

- アミューズメント

交通色がついているアイコンをクリックすると、本物件までの道順を見ることができます。
- 五稜郭駅JR函館本線、道南いさりび鉄道線徒歩27分(約2.1km)
- 函館バス「昭和ターミナル」停 徒歩4分
物件概要
所在階/建物の階建 2階(G) / 地上2階建 主要採光面 構造 鉄骨造 間取り 契約期間 定期借家(3年間) 権利金 住宅保険 お問合せください 出店推奨業種 美容・健康・介護、教育・スクール、事務所 出店不可業種 接道状況 二方(除角地) 引渡し 即時 管理人 常駐 取引態様 仲介 物件No 設備・特徴 - 複数路線利用可
- 商店街に面す
- 幹線道路沿い
- エレベーター
- 給排水設備
- スケルトン
- 男女別トイレ(共用部)
備考 ※業種等はお問い合わせください。 ※連帯保証人に代わる家賃保証会社をご利用いただく場合がございます。 ※契約は定期借家 年数は3年以上(協議により決定) 主な周辺施設色がついているアイコンをクリックすると、本物件までの道順を見ることができます。
-
ホームページはこちら
北海道知事 渡島(4) 第1079号
(株)野村エステート〒041-0806
TEL:0138-34-7211
FAX:0138-34-7222
営業時間:9:00~18:00
定休日:毎週 土曜・日曜・祝日
- 加入団体
- (公社)全日本不動産協会
- 保証協会
- (公社)不動産保証協会
- 公正取引協議会
- (一社)北海道不動産公正取引協議会
※連合隊は物件情報の精度向上に努めています:「物件情報に誤りがある」「成約済みである」などお気付きの点がございましたらこちらよりご連絡ください。
写真枚数:13枚