プライム函館EAST
ここに注目!■梁川町交差点にあるオフィスビル!!■
| 賃料・費用 |
11万1,100円
(+管理費等 -円)
坪単価:約8,279円/坪
敷30万3,000円礼なし仲11万1,100円
保証金:なし/敷引・償却金:なし
|
|---|---|
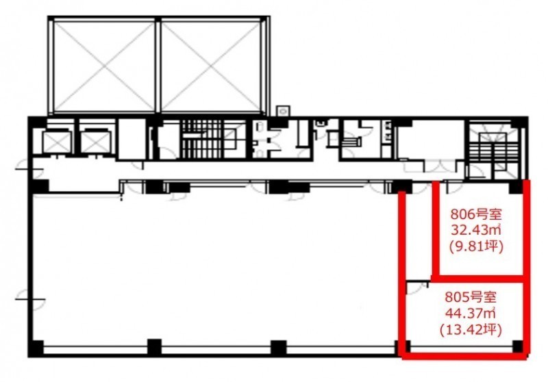
| 専有面積 | 44.37m² (13.42坪) |
| 住所 | 北海道函館市梁川町5-10 |
| 交通 | 五稜郭公園前駅(徒歩5分)|函館バス「五稜郭」停 (徒歩3分) |
| 階/階建 | 8階 / 8階建 |
| 築年月 | 築36年(1989年12月) |
| 駐車場 |
あり (1万6,500円/台) 駐車可能台数:1台
|
空室確認、見学、詳細を知りたい方はこちら!
お電話の際は「連合隊の物件」とお伝えください。
情報掲載期限:あと11日(更新日 2025/12/1)
- 物件写真・概要
- 周辺地図
-
空室確認、見学、詳細を知りたい方はこちら!
おすすめポイント
- 駅徒歩5分以内
- 複数路線利用可
- 商店街に面す
- 幹線道路沿い
- 駐車場あり
- OAフロア
- 24時間セキュリティー
- 出店するなら…この業種がおすすめ!
- 飲食全般(重飲食含む)

- 喫茶・カフェ(軽飲食)

- バー・クラブ・スナック

- 小売・物販

- 美容・健康・介護

- 医療

- 教育・スクール

- 事務所

- アミューズメント

※出店不可の業種:飲食全般、重飲食(軽飲食は相談可)
交通色がついているアイコンをクリックすると、本物件までの道順を見ることができます。
- 五稜郭公園前駅函館市電2系統、函館市電5系統徒歩5分(約358m)
- 函館バス「五稜郭」停 徒歩3分
物件概要
所在階/建物の階建 8階(805) / 地上8階建 主要採光面 構造 鉄骨鉄筋コンクリート(SRC)造 間取り 契約期間 2年間 更新料/更新手数料 なし 権利金 なし 住宅保険 お問合せください 出店推奨業種 教育・スクール、事務所 出店不可業種 飲食全般、重飲食(軽飲食は相談可) 接道状況 角地 用途地域 - 商業地域
その他費用 毎月の費用 - 看板料:5,500円
一時金 - 駐車場敷金:1万5,000円
引渡し 相談 管理人 取引態様 仲介 物件No 設備・特徴 - 複数路線利用可
- 商店街に面す
- 幹線道路沿い
- エレベーター
- 照明器具付
- OAフロア
- 24時間セキュリティー
- 24時間利用可
- 男女別トイレ(共用部)
備考 ※個別空調 ※火災保険加入必須 ※館内規則有り ※図面は手書きのため、現況と相違がある場合、現況を優先とします。 主な周辺施設色がついているアイコンをクリックすると、本物件までの道順を見ることができます。
-
ホームページはこちら
北海道知事 渡島(4) 第1079号
(株)野村エステート〒041-0806
TEL:0138-34-7211
FAX:0138-34-7222
営業時間:9:00~18:00
定休日:毎週 土曜・日曜・祝日
- 加入団体
- (公社)全日本不動産協会
- 保証協会
- (公社)不動産保証協会
- 公正取引協議会
- (一社)北海道不動産公正取引協議会
※連合隊は物件情報の精度向上に努めています:「物件情報に誤りがある」「成約済みである」などお気付きの点がございましたらこちらよりご連絡ください。
写真枚数:12枚