ステーションプラザ函館
ここに注目!■JR函館駅前のオフィスビルです!!共用部分リニューアル工事実施済み!!24時間使用可能!!■
| 賃料・費用 |
11万2,860円
(+管理費等 なし)
坪単価:約8,250円/坪
敷41万400円礼なし仲11万2,860円
保証金:なし
|
|---|---|
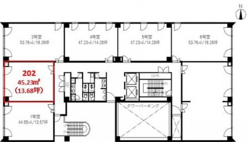
| 専有面積 | 45.23m² (13.68坪) |
| 住所 | 北海道函館市若松町6-7 |
| 交通 | 函館駅前駅(徒歩1分)|函館駅(徒歩4分)道順を見る |
| 階/階建 | 2階 / 7階建 |
| 築年月 | 築32年(1993年3月) |
| 駐車場 |
あり (1万6,500円/台)
|
空室確認、見学、詳細を知りたい方はこちら!
お電話の際は「連合隊の物件」とお伝えください。
情報掲載期限:あと11日(更新日 2025/12/1)
- 物件写真・概要
- 周辺地図
-
空室確認、見学、詳細を知りたい方はこちら!
おすすめポイント
- 即入居可
- 駅徒歩1分以内
- 駅前立地
- 駐車場あり
- OAフロア
- 24時間セキュリティー
交通色がついているアイコンをクリックすると、本物件までの道順を見ることができます。
物件概要
所在階/建物の階建 2階(202) / 地上7階建 主要採光面 構造 鉄骨鉄筋コンクリート(SRC)造 間取り 契約期間 2年間 権利金 なし 住宅保険 お問合せください 用途地域 - 商業地域
引渡し 即時 管理人 日勤 取引態様 仲介 物件No 設備・特徴 - 駅前立地
- エレベーター
- 照明器具付
- OAフロア
- 個別空調
- 24時間セキュリティー
- 24時間利用可
- 男女別トイレ(共用部)
備考 ※立体駐車場使用の場合、敷金1ヶ月 ※保証会社利用必須(詳しくはお問合せ下さい。) 主な周辺施設色がついているアイコンをクリックすると、本物件までの道順を見ることができます。
-
ホームページはこちら
北海道知事 渡島(4) 第1079号
(株)野村エステート〒041-0806
TEL:0138-34-7211
FAX:0138-34-7222
営業時間:9:00~18:00
定休日:毎週 土曜・日曜・祝日
- 加入団体
- (公社)全日本不動産協会
- 保証協会
- (公社)不動産保証協会
- 公正取引協議会
- (一社)北海道不動産公正取引協議会
※連合隊は物件情報の精度向上に努めています:「物件情報に誤りがある」「成約済みである」などお気付きの点がございましたらこちらよりご連絡ください。
写真枚数:12枚