大川町14番店舗1棟貸
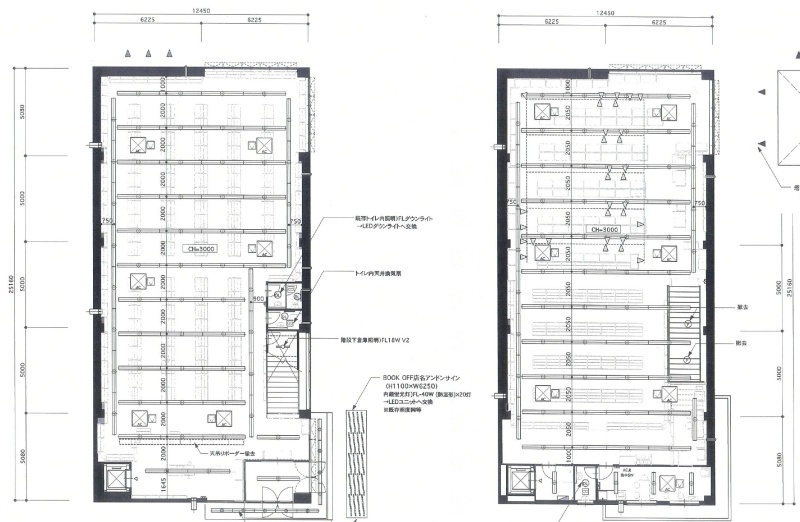
ここに注目!函館市大川町に位置する、JR五稜郭駅まで徒歩10分の1棟貸し店舗のご紹介です。 広々とした専有面積626.48㎡、鉄骨造2階建ての建物は、小売・物販、美容・健康、教育・スクールなど、様々な事業展開に適しています。 商店街に面し、幹線道路沿いの視認性の良い立地。前面ガラス張りの開放的なデザインと袖看板で、集客効果が期待できます。 敷地内には44台分の無料駐車場を完備しており、お客様の来店をスムーズにサポートします。 周辺にはスーパーやコンビニ、ドラッグストアなどが徒歩圏内にあり、生活利便性の高いエリアです。 店舗内はエアコン、男女別トイレ、照明器具、給排水設備が整っており、快適な営業環境を提供します。 さらに、開店準備期間として3ヶ月間は賃料50%の優遇措置があり、初期費用はカード払いも可能です。 新たなビジネスチャンスを掴む、この機会をお見逃しなく。ぜひ一度お問い合わせください。
この物件の契約期間は 10年間です。
定期借家物件は、賃貸借契約期間満了後、原則として契約の更新ができない物件です。再契約の可否については不動産会社にお問合せください。
| 賃料・費用 |
88万円
(+管理費等 なし)
坪単価:約4,644円/坪
敷480万円礼88万円(1ヶ月)仲88万円
保証金:なし/敷引・償却金:なし
|
|---|---|
| 専有面積 | 626.48m² (189.51坪) |
| 住所 | 北海道函館市大川町14-7 |
| 交通 | 五稜郭駅(徒歩10分)道順を見る |
| 階/階建 | 2階建 |
| 築年月 | 築24年(2002年2月) |
| 駐車場 |
あり (無料) 駐車可能台数:44台
敷地内無料 |
【WEB面談可】
空室確認、見学、詳細を知りたい方はこちら!
お電話の際は「連合隊の物件」とお伝えください。
情報掲載期限:あと28日(更新日 2026/2/1)
- 物件写真・概要
- 周辺地図
-
【WEB面談可】
空室確認、見学、詳細を知りたい方はこちら!お電話の際は「連合隊の物件」とお伝えください。
0138-46-9300情報掲載期限:あと28日(更新日 2026/2/1)
おすすめポイント
- 即入居可
- 商店街に面す
- 幹線道路沿い
- 駐車2台以上可
- 袖看板あり
- 出店するなら…この業種がおすすめ!
- 飲食全般(重飲食含む)

- 喫茶・カフェ(軽飲食)

- バー・クラブ・スナック

- 小売・物販

- 美容・健康・介護

- 医療

- 教育・スクール

- 事務所

- アミューズメント

※出店不可の業種:水商売
交通色がついているアイコンをクリックすると、本物件までの道順を見ることができます。
物件概要
建物の階建 地上2階建 総戸数 1戸 構造 鉄骨造 間取り その他その他 契約期間 定期借家(10年間) 更新料/更新手数料 なし / なし 権利金 なし 住宅保険 お問合せください 出店推奨業種 小売・物販、美容・健康・介護、教育・スクール 出店不可業種 水商売 接道状況 二方(除角地) - 東側の道に接道
- 西側の道に接道
用途地域 - 準住居地域(建ぺい率:60% / 容積率:200%)
引渡し 即時 管理人 巡回 取引態様 仲介 物件No 設備・特徴 - 商店街に面す
- 幹線道路沿い
- 照明器具付
- 給排水設備
- エアコン付
- ビルトインエアコン
- 前面ガラス張り
- 男女別トイレ
- 袖看板あり
備考 ※初回保証料:賃料等総額の100%、月額手数料:賃料等総額の1%~、年間更新料:賃料等総額の10%かかります。 ※間取・設備は現状を優先します。 ※初期費用はカード払可能です。※設備等はすべて残置物扱いになります。※開店準備として3か月間は賃料50%まで可能(*^^)v※その他条件は要相談ください。 主な周辺施設色がついているアイコンをクリックすると、本物件までの道順を見ることができます。
-
ホームページはこちら
北海道知事 渡島(12) 第409号
アパマンショップ 函館店 【WEB面談可】- 加入団体
- (公社)北海道宅地建物取引業協会、(一社)全国賃貸不動産管理業協会、(公財)日本賃貸住宅管理協会
- 保証協会
- (公社)全国宅地建物取引業保証協会
- 公正取引協議会
- (一社)北海道不動産公正取引協議会
※連合隊は物件情報の精度向上に努めています:「物件情報に誤りがある」「成約済みである」などお気付きの点がございましたらこちらよりご連絡ください。
写真枚数:30枚













~函館市・北斗市・七飯町のお部屋探しはアパマンショップ函館店へ~
道南エリア最大級の物件取扱件数ですので、♪お部屋探しは♪アパマンショップ函館店 野村不動産函館株式会社へ!! ☆営業時間9:00~18:00☆ ◆◆◆定休日【毎週水曜日】◆◆◆(毎年1月16日~4月15日までは定休日はございません) 空港・駅・ご自宅までの送迎でのご案内はお気軽にお申し付けください(^_-)