七重浜8丁目12番店舗
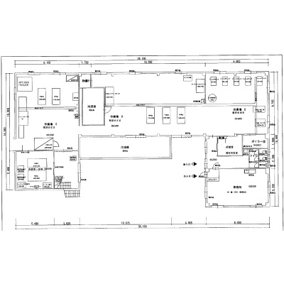
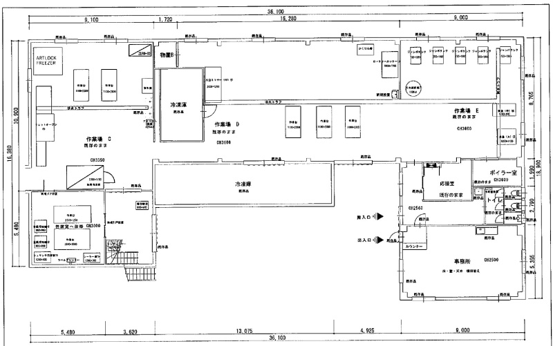
ここに注目!北斗市七重浜に、広大な敷地と建物面積を誇る貸店舗(一棟)が登場しました! 道南いさりび鉄道線 東久根別駅まで徒歩15分。約1300㎡の広々とした敷地には、事業に嬉しい無料駐車場を完備しています。 建物は鉄骨造2階建、専有面積は約873㎡とゆとりのある空間。元食品工場としての利用実績があり、ガス設備や給排水設備、照明器具も整っています。事務所としての利用もご相談可能ですので、様々なビジネス展開が期待できます。 周辺には北洋銀行、ローソン、ツルハドラッグ、吉野家、しまむら、ドン・キホーテなど、生活に便利な施設が充実しており、従業員の皆様にも快適な環境です。 この機会に、理想のビジネス空間を見つけてみませんか?詳細はお気軽にお問い合わせください!
この物件は居抜き物件です。
現状の設備が残されたまま取引されるため、初期費用を抑え速やかに事業を開始できるメリットがあります。
| 賃料・費用 |
55万円
(+管理費等 なし)
坪単価:約2,081円/坪
敷100万円礼50万円仲55万円
保証金:なし/敷引・償却金:なし
|
|---|---|
| 専有面積 | 873.89m² (264.35坪) |
| 住所 | 北海道北斗市七重浜8丁目12-10 |
| 交通 | 東久根別駅(徒歩15分)道順を見る |
| 階/階建 | 1階 / 2階建 |
| 築年月 | 築38年(1987年9月) |
| 駐車場 |
あり (無料)
敷地内無料 |
【WEB面談可】
空室確認、見学、詳細を知りたい方はこちら!
お電話の際は「連合隊の物件」とお伝えください。
情報掲載期限:あと28日(更新日 2026/1/18)
- 物件写真・概要
- 周辺地図
-
【WEB面談可】
空室確認、見学、詳細を知りたい方はこちら!おすすめポイント
- 駐車場あり
交通色がついているアイコンをクリックすると、本物件までの道順を見ることができます。
物件概要
所在階/建物の階建 1階(1) / 地上2階建 主要採光面 南 構造 鉄骨造 間取り その他その他 契約期間 3年間 更新料/更新手数料 なし / なし 権利金 なし 住宅保険 お問合せください 出店推奨業種 その他(倉庫・工場) 出店不可業種 水商売、アミューズメント 居抜き情報 [その他(食品工場)] の居抜き造作譲渡料 無料 特記事項 譲渡設備は都度確認になります。 土地面積 1300.22m² (393.31坪)(公簿)接道状況 - 西側の道に接道
用途地域 - 工業地域(建ぺい率:60% / 容積率:200%)
引渡し 相談 管理人 無 取引態様 仲介 物件No 設備・特徴 - ガス設備
- 給排水設備
- 照明器具付
備考 ※初回保証料:賃料等総額の100%、月額手数料:440円(税込)~、年間更新料:賃料等総額の10%かかります。 ※間取・設備は現状を優先します。 ※初期費用はカード払可能です。※備品等は貸主負担にて撤去予定※設備等はすべて残置物扱いになります※別棟で社員用の寮も完備しております。 主な周辺施設色がついているアイコンをクリックすると、本物件までの道順を見ることができます。
-
ホームページはこちら
北海道知事 渡島(12) 第409号
アパマンショップ 函館店 【WEB面談可】- 加入団体
- (公社)北海道宅地建物取引業協会、(一社)全国賃貸不動産管理業協会、(公財)日本賃貸住宅管理協会
- 保証協会
- (公社)全国宅地建物取引業保証協会
- 公正取引協議会
- (一社)北海道不動産公正取引協議会
※連合隊は物件情報の精度向上に努めています:「物件情報に誤りがある」「成約済みである」などお気付きの点がございましたらこちらよりご連絡ください。
写真枚数:14枚













~函館市・北斗市・七飯町のお部屋探しはアパマンショップ函館店へ~
道南エリア最大級の物件取扱件数ですので、♪お部屋探しは♪アパマンショップ函館店 野村不動産函館株式会社へ!! ☆営業時間9:00~18:00☆ ◆◆◆定休日【毎週水曜日】◆◆◆(毎年1月16日~4月15日までは定休日はございません) 空港・駅・ご自宅までの送迎でのご案内はお気軽にお申し付けください(^_-)