松川町5番大型店舗1棟貸
ここに注目!函館市松川町に、広々とした店舗物件が登場しました! 専有面積833.15㎡を誇る1棟貸し店舗で、飲食全般(重飲食含む)、教育・スクール、事務所など幅広い業種にご利用いただけます。 お客様の集客に欠かせない敷地内無料駐車場を23台完備しており、車でのアクセスもスムーズです。 前面ガラス張りの明るい外観は視認性も高く、袖看板も設置可能。ビルトインエアコンや男女別トイレ、給排水設備も整っており、すぐにでも事業を始められる環境です。 周辺にはコンビニ、ドラッグストア、スーパー、郵便局、病院などが揃い、利便性の良い立地も魅力。 函館市電「堀川町」駅まで徒歩13分。 新しいビジネスチャンスを掴むなら、ぜひ一度ご検討ください。お問い合わせをお待ちしております!
| 賃料・費用 |
77万円
(+管理費等 なし)
坪単価:約3,056円/坪
敷140万円礼77万円(1ヶ月)仲77万円
保証金:なし/敷引・償却金:なし
|
|---|---|
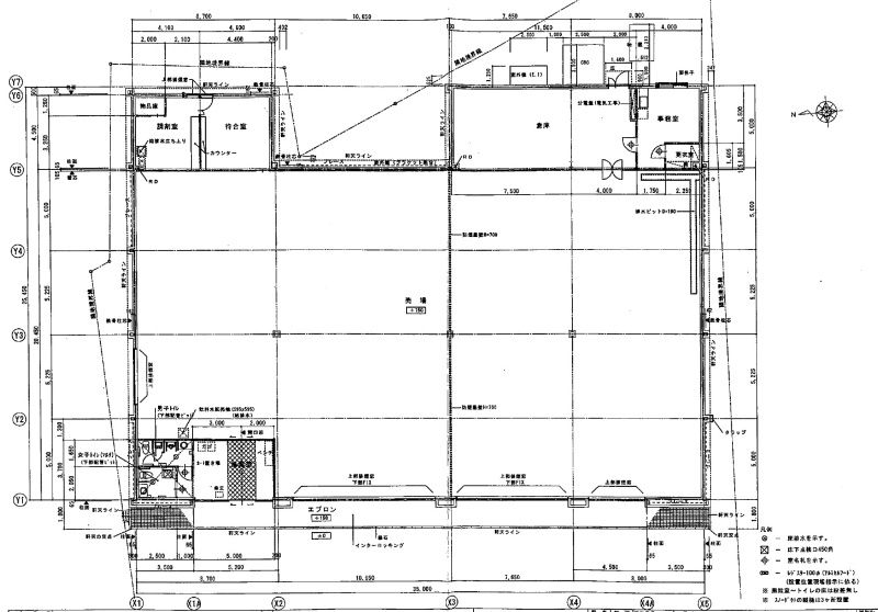
| 専有面積 | 833.15m² (252.02坪) |
| 住所 | 北海道函館市松川町5-9 |
| 交通 | 堀川町駅(徒歩13分)|昭和橋駅(徒歩14分)|千歳町駅(徒歩14分)|新川町駅(徒歩17分)|千代台駅(徒歩18分)道順を見る |
| 階/階建 | 1階建 |
| 築年月 | 築15年(2010年9月) |
| 駐車場 |
あり (無料) 駐車可能台数:23台
敷地内無料 |
【WEB面談可】
空室確認、見学、詳細を知りたい方はこちら!
お電話の際は「連合隊の物件」とお伝えください。
情報掲載期限:あと27日(更新日 2026/4/18)
- 物件写真・概要
- 周辺地図
-
【WEB面談可】
空室確認、見学、詳細を知りたい方はこちら!お電話の際は「連合隊の物件」とお伝えください。
0138-46-9300情報掲載期限:あと27日(更新日 2026/4/18)
おすすめポイント
- 幹線道路沿い
- 駐車2台以上可
- 袖看板あり
- 出店するなら…この業種がおすすめ!
- 飲食全般(重飲食含む)

- 喫茶・カフェ(軽飲食)

- バー・クラブ・スナック

- 小売・物販

- 美容・健康・介護

- 医療

- 教育・スクール

- 事務所

- アミューズメント

※出店不可の業種:水商売
交通色がついているアイコンをクリックすると、本物件までの道順を見ることができます。
- 堀川町駅函館市電5系統、函館市電2系統徒歩13分(約1.1km)
- 昭和橋駅函館市電5系統、函館市電2系統徒歩14分(約1.1km)
- 千歳町駅函館市電5系統、函館市電2系統徒歩14分(約1.2km)
- 新川町駅函館市電5系統、函館市電2系統徒歩17分(約1.4km)
- 千代台駅函館市電5系統、函館市電2系統徒歩18分(約1.5km)
物件概要
建物の階建 地上1階建 総戸数 1戸 構造 鉄骨造 間取り その他その他 契約期間 10年間 更新料/更新手数料 なし / なし 権利金 なし 住宅保険 お問合せください 出店推奨業種 飲食全般(重飲食含む)、教育・スクール、事務所 出店不可業種 水商売 接道状況 一方 - 西側の道に接道
用途地域 - 準工業地域(建ぺい率:60% / 容積率:200%)
引渡し 相談 管理人 無 取引態様 仲介 物件No 設備・特徴 - 幹線道路沿い
- 給排水設備
- ビルトインエアコン
- 前面ガラス張り
- 男女別トイレ
- 袖看板あり
備考 ※初回保証料:賃料等総額の100%、月額手数料:440円(税込)~、年間更新料:賃料等総額の10%かかります。 ※間取・設備は現状を優先します。 ※初期費用はカード払可能です。※設備等はすべて残置物扱いになります。 主な周辺施設色がついているアイコンをクリックすると、本物件までの道順を見ることができます。
-
ホームページはこちら
北海道知事 渡島(12) 第409号
アパマンショップ 函館店 【WEB面談可】- 加入団体
- (公社)北海道宅地建物取引業協会、(一社)全国賃貸不動産管理業協会、(公財)日本賃貸住宅管理協会
- 保証協会
- (公社)全国宅地建物取引業保証協会
- 公正取引協議会
- (一社)北海道不動産公正取引協議会
※連合隊は物件情報の精度向上に努めています:「物件情報に誤りがある」「成約済みである」などお気付きの点がございましたらこちらよりご連絡ください。
写真枚数:30枚













~函館市・北斗市・七飯町のお部屋探しはアパマンショップ函館店へ~
道南エリア最大級の物件取扱件数ですので、♪お部屋探しは♪アパマンショップ函館店 野村不動産函館株式会社へ!! ☆営業時間9:00~18:00☆ ◆◆◆定休日【毎週水曜日】◆◆◆(毎年1月16日~4月15日までは定休日はございません) 空港・駅・ご自宅までの送迎でのご案内はお気軽にお申し付けください(^_-)