NEW PIAZZA
ここに注目!【✨オンライン内見やってます💁♀️】 防犯に効果的なオートロック付です🔑 エレベーター付きですので、荷物が多い時😣仕事終わりで疲れてる時にもうれしい設備です🎈エアコン付きで暑い夏も快適にすごせます🎐 インターネットが無料で使い放題✨ゲームやスマホにPC何台でも接続可能です🎮 LPガス料金は都市ガス同等料金に設定しております😁光熱費が抑えられてとってもお得です🎀 お手入れがしやすいシステムキッチン🍳 駐車場2台で契約できます🚗🚙ご家族やカップルの入居者様にも嬉しい条件です❕ 家賃保証会社との契約で連帯保証人が不要です👍 函館近郊エリアのお部屋幅広くご紹介可✨ 初期費用をクレジットカードでお支払いいただけます💳 お問い合わせはエイブル函館美原店(0138)84-1666までお気軽にどうぞ✨
| 賃料・費用 |
20万円(+管理費等 1万円)
敷なし礼20万円(1ヶ月)仲22万円
保証金:なし
|
|---|---|
| 間取・専有 |
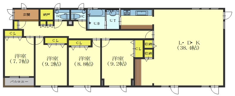
4LDK(175.44m²)└ LDK38.5帖 洋室9.2帖 洋室9.2帖 洋室8.8帖 洋室7.7帖
|
| 住所 | 北海道函館市川原町2-18 |
| 交通 | 柏木町駅(徒歩14分)|深堀町駅(徒歩14分)|函館バス 「大妻高校前」停(徒歩5分)道順を見る |
| 築年月 | 築11年(2014年11月) |
| 駐車場 |
あり (5,500円/台) 駐車可能台数:2台
|
【WEB面談可】
空室確認、見学、詳細を知りたい方はこちら!
お電話の際は「連合隊の物件」とお伝えください。
情報掲載期限:あと28日(更新日 2026/5/14)
- 物件写真・概要
- 周辺地図
-
【WEB面談可】
空室確認、見学、詳細を知りたい方はこちら!おすすめポイント
- バス/トイレ別
- オートロック
- 2階以上
- 都市ガス
- 室内洗濯機置場
- 駐車2台以上可
- エアコン付
- 独立洗面台
- 追い焚き風呂
- ペット相談可
- デザイナーズ
- 敷金・礼金0円
交通色がついているアイコンをクリックすると、本物件までの道順を見ることができます。
- 柏木町駅函館市電5系統、函館市電2系統徒歩14分(約1.1km)
- 深堀町駅函館市電5系統、函館市電2系統徒歩14分(約1.1km)
- 函館バス 「大妻高校前」停徒歩5分
物件概要
所在階/建物の階建 5階(505) / 地上5階建 総戸数 28戸 主要採光面 西 構造 鉄筋コンクリート(RC)造 バルコニー あり契約期間 2年間 住宅保険 お問合せください その他費用 毎月の費用 - 駐車2台料金:5,500円
- WISE LIFE:1,000円
入居可能時期 即時 管理人 取引態様 仲介 物件No 設備・特徴 - 複数路線利用可
- タイル貼り
- エレベーター
- 駐輪場
- 日当り良好
- 照明器具付
- 室内洗濯機置場
- フローリング
- 二重サッシ
- 納戸・トランクルーム
- シューズボックス
- 全居室収納あり
- バス/トイレ別
- 温水洗浄トイレ
- 独立洗面台
- シャワー付洗面化粧台
- 浴室乾燥機
- 浴室暖房
- 浴室1坪以上
- IHクッキングヒーター
- システムキッチン
- カウンターキッチン
- 都市ガス
- エアコン付
- ガス暖房
- 24時間換気システム
- オートロック
- モニタ付インターホン
- ディンプルキー
- インターネット利用料無料
- ケーブルテレビ
- BSアンテナ
- 保証人不要
- 家賃保証会社利用可
- 最上階
- 角部屋
- 3面採光
- トイレ2ヶ所以上
- 浴室に窓
- 追い焚き風呂
- コンロ3口以上
- 食器洗乾燥機
- セントラル空調
備考 ■保証会社利用必須(初回:合計賃料の50% 月額:1,300円~変動有 年間10,000円) ■WISE LIFE(家財保険同等+安心入居サポート) ■初期費用をクレジットカードでお支払い頂けます♪詳しくはお問い合わせ下さい ■都市ガスリース料無し 学区色がついているアイコンをクリックすると、本物件までの道順を見ることができます。
主な周辺施設色がついているアイコンをクリックすると、本物件までの道順を見ることができます。
-
ホームページはこちら
北海道知事 渡島(5) 第1038号
エイブルネットワーク 函館美原店 【WEB面談可】
※連合隊は物件情報の精度向上に努めています:「物件情報に誤りがある」「成約済みである」などお気付きの点がございましたらこちらよりご連絡ください。
写真枚数:6枚
函館市・北斗市・七飯町を中心に幅広く物件を取り揃えております! また遠方よりお越しのお客様、駅、空港へ送迎致しますのでお気軽にお問い合わせ下さい。