🏛️ 【新築】名古屋・栄3丁目。ブランドの価値を象徴するプレミアムフロア 2階✨
ここに注目!名古屋を代表する商業・ビジネスの拠点、中区栄3丁目エリア。 2026年6月に開業予定のハイグレードな新築ビルにて、2階ワンフロアのご案内が可能となりました 。 本物件は、高い視認性と洗練されたデザインを兼ね備えた最新鋭のビルです。 ワンフロア占有となる約65坪の空間は、独立性が高く、企業のアイデンティティを体現するのに相応しい品格を備えています 。 内装は「スケルトン」での引き渡しとなります 。 ラグジュアリーなショールーム、完全予約制のサロン、あるいはエグゼクティブ向けのオフィスなど、貴社のビジョンに合わせた自由度の高い空間構築が可能です。
🏛️ 【新築】名古屋・栄3丁目。ブランドの価値を象徴するプレミアムフロア
この物件の契約期間は 10年間です。
定期借家物件は、賃貸借契約期間満了後、原則として契約の更新ができない物件です。再契約の可否については不動産会社にお問合せください。
| 賃料・費用 |
165万7,403円
(+管理費等 28万8,244円)
坪単価:約2.5万円/坪
仲165万7,403円
保証金:1,205万3,840円(償却区分:解約)/敷引・償却金:165万7,403円(1ヶ月)
|
|---|---|
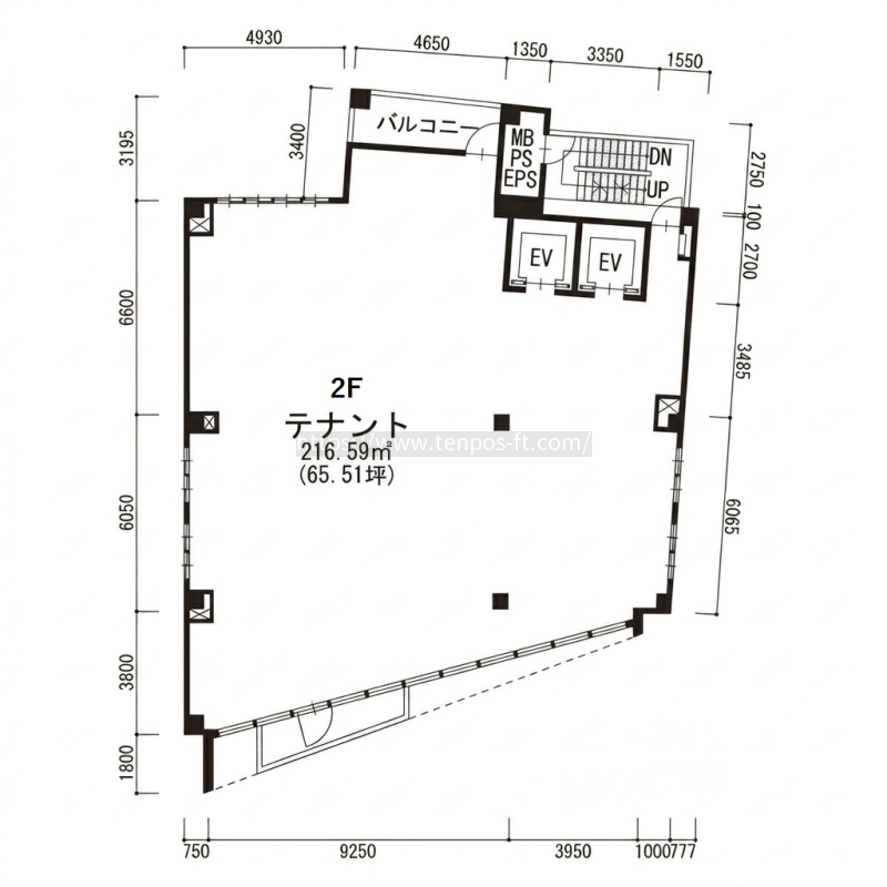
| 専有面積 | 216.59m² (65.51坪) |
| 住所 | 愛知県名古屋市中区栄3丁目28-2 |
| 交通 | 矢場町駅(徒歩4分)|上前津駅(徒歩9分)|栄駅(徒歩9分)道順を見る |
| 階/階建 | 2階 / 9階建 |
| 築年月 | 建築中(2026年6月完成予定) |
| 駐車場 |
空室確認、見学、詳細を知りたい方はこちら!
お電話の際は「連合隊の物件」とお伝えください。
情報掲載期限:あと21日(更新日 2026/4/21)
- 物件写真・概要
- 周辺地図
-
空室確認、見学、詳細を知りたい方はこちら!
おすすめポイント
- 駅徒歩5分以内
- 複数路線利用可
- スケルトン
- デザイナーズ
- 出店するなら…この業種がおすすめ!
- 飲食全般(重飲食含む)

- 喫茶・カフェ(軽飲食)

- バー・クラブ・スナック

- 小売・物販

- 美容・健康・介護

- 医療

- 教育・スクール

- 事務所

- アミューズメント

交通色がついているアイコンをクリックすると、本物件までの道順を見ることができます。
- 矢場町駅名古屋市営地下鉄名城線徒歩4分(約387m)
- 上前津駅名古屋市営地下鉄名城線、名古屋市営地下鉄鶴舞線徒歩9分(約777m)
- 栄駅名古屋市営地下鉄名城線、名古屋市営地下鉄東山線、名鉄瀬戸線徒歩9分(約902m)
物件概要
所在階/建物の階建 2階 / 地上9階建 主要採光面 構造 鉄骨造 間取り バルコニー あり契約期間 定期借家(10年間) 権利金 住宅保険 出店推奨業種 飲食全般(重飲食含む)、美容・健康・介護、医療 出店不可業種 用途地域 - 商業地域
引渡し 2026年6月初旬 管理人 取引態様 仲介 物件No 設備・特徴 - 複数路線利用可
- エレベーター
- デザイナーズ
- スケルトン
備考 主な周辺施設色がついているアイコンをクリックすると、本物件までの道順を見ることができます。
-

この物件の担当者 名古屋営業所(なごやえいぎょうしょ)
名古屋市内のテナント取引は私にお任せください。 ご条件に沿う物件探しから、ビジネスプランの策定、内装、資金取得、営業に携わるすべてのご案件に応え、全力で貴方と並走することをお約束いたします。
ホームページはこちら国土交通大臣 (1) 第9800号
テンポス不動産 (株)テンポスフィナンシャルトラスト
※連合隊は物件情報の精度向上に努めています:「物件情報に誤りがある」「成約済みである」などお気付きの点がございましたらこちらよりご連絡ください。
写真枚数:26枚
物件・資金・M&Aの専門チーム|理想の店舗・事業運営をトータルに支えます
私たちは、物件探しから資金の準備、さらには事業の引き継ぎ(M&A)まで、事業を営む皆様を支える専門部隊です。飲食業をはじめ、様々な業種のサポートで培った確かなノウハウで、お一人おひとりのご希望に合わせた最適なプランをご提案します。実務に長けたプロ集団が、皆様の良きパートナーとして課題解決まで共に歩みます。