✨天神中心で差がつく、ハイグレードオフィス🏢(TENJIN BASE/301)
ここに注目!福岡市中央区天神3丁目「TENJIN BASE 301号室」のご紹介です。ビジネスの中心・天神エリアに位置し、アクセス・利便性ともに申し分ない立地です。 📐 専有面積は38.56㎡(11.66坪)と、個人事業主から少人数オフィスまで幅広く対応可能。無駄のないレイアウトで、効率的なワークスペースを構築できます。 💼 RC造のしっかりとした建物で、3階部分の落ち着いた環境。来客対応や打ち合わせにも適したロケーションで、企業イメージの向上にもつながります。 💰 賃料は月額218,042円(税込)+管理費38,478円。敷金は高額設定ですが、その分、天神一等地ならではの価値と信頼性を備えた物件です。 🌿 ワンランク上のビジネス環境を求める方にふさわしい一室。この場所から、さらなる成長を目指してみませんか?✨
| 賃料・費用 |
21万8,042円
(+管理費等 3万8,478円)
坪単価:約1.9万円/坪
敷1,189万3,200円仲21万8,042円
|
|---|---|
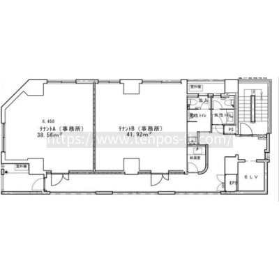
| 専有面積 | 38.56m² (11.66坪) |
| 住所 | 福岡県福岡市中央区天神3丁目 6-31 |
| 交通 | 天神駅(徒歩6分)|西鉄福岡(天神)駅(徒歩10分)|赤坂駅(徒歩12分)|天神南駅(徒歩12分)道順を見る |
| 階/階建 | 3階 / 8階建 |
| 築年月 | |
| 駐車場 |
空室確認、見学、詳細を知りたい方はこちら!
お電話の際は「連合隊の物件」とお伝えください。
情報掲載期限:あと13日(更新日 2026/4/9)
- 物件写真・概要
- 周辺地図
-
空室確認、見学、詳細を知りたい方はこちら!
- 出店するなら…この業種がおすすめ!
- 飲食全般(重飲食含む)

- 喫茶・カフェ(軽飲食)

- バー・クラブ・スナック

- 小売・物販

- 美容・健康・介護

- 医療

- 教育・スクール

- 事務所

- アミューズメント

交通色がついているアイコンをクリックすると、本物件までの道順を見ることができます。
- 天神駅福岡市営地下鉄空港線徒歩6分(約462m)
- 西鉄福岡(天神)駅西鉄天神大牟田線徒歩10分(約732m)
- 赤坂駅福岡市営地下鉄空港線徒歩12分(約891m)
- 天神南駅福岡市営地下鉄七隈線徒歩12分(約945m)
物件概要
所在階/建物の階建 3階 / 地上8階建 主要採光面 構造 鉄筋コンクリート(RC)造 間取り 契約期間 2年間 権利金 住宅保険 出店推奨業種 事務所 出店不可業種 引渡し 相談 管理人 取引態様 仲介 物件No 設備・特徴 - ビルトインエアコン
- エレベーター
- 男女別トイレ(共用部)
備考 主な周辺施設色がついているアイコンをクリックすると、本物件までの道順を見ることができます。
-
ホームページはこちら
国土交通大臣 (1) 第9800号
テンポス不動産 (株)テンポスフィナンシャルトラスト
※連合隊は物件情報の精度向上に努めています:「物件情報に誤りがある」「成約済みである」などお気付きの点がございましたらこちらよりご連絡ください。
写真枚数:2枚
物件・資金・M&Aの専門チーム|理想の店舗・事業運営をトータルに支えます
私たちは、物件探しから資金の準備、さらには事業の引き継ぎ(M&A)まで、事業を営む皆様を支える専門部隊です。飲食業をはじめ、様々な業種のサポートで培った確かなノウハウで、お一人おひとりのご希望に合わせた最適なプランをご提案します。実務に長けたプロ集団が、皆様の良きパートナーとして課題解決まで共に歩みます。