リノベーション済京町家!民泊居抜き、一棟貸し物件!
ここに注目!京町家!リノベーション済! 民泊居抜き、一棟貸し物件!
この物件は居抜き物件です。
現状の設備が残されたまま取引されるため、初期費用を抑え速やかに事業を開始できるメリットがあります。
| 賃料・費用 |
39万6,000円
(+管理費等 なし)
坪単価:約1.3万円/坪
敷108万円礼なし仲39万6,000円
|
|---|---|
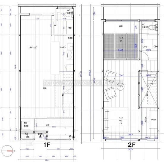
| 専有面積 | 97.05m² (29.35坪) |
| 住所 | 京都府京都市下京区早尾町 (詳細非公開) |
| 交通 | 清水五条駅(徒歩17分) |
| 階/階建 | 2階建 |
| 築年月 | |
| 駐車場 |
空室確認、見学、詳細を知りたい方はこちら!
お電話の際は「連合隊の物件」とお伝えください。
情報掲載期限:あと25日(更新日 2026/3/12)
- 物件写真・概要
- 周辺地図
-
空室確認、見学、詳細を知りたい方はこちら!
- 出店するなら…この業種がおすすめ!
- 飲食全般(重飲食含む)

- 喫茶・カフェ(軽飲食)

- バー・クラブ・スナック

- 小売・物販

- 美容・健康・介護

- 医療

- 教育・スクール

- 事務所

- アミューズメント

交通
- 清水五条駅京阪本線徒歩17分(約441m)
物件概要
建物の階建 地上2階建 総戸数 構造 木造 間取り 契約期間 3年間 更新料/更新手数料 36万円 権利金 住宅保険 出店推奨業種 飲食全般(重飲食含む)、バー・クラブ・スナック、美容・健康・介護 出店不可業種 居抜き情報 [その他(民泊 )] の居抜き引渡し 管理人 取引態様 仲介 物件No TO2603-805 小笠原 設備・特徴 備考 ※まずはご相談ください。 ※業種:要相談 主な周辺施設
- 京都七条米浜郵便局約229m(徒歩3分)
- フレスコ五条大橋店約340m(徒歩5分)
- 渉成園約767m(徒歩10分)
- なか卯河原町五条店約467m(徒歩6分)
- 京都大仏前郵便局約554m(徒歩7分)
- 京都銀行河原町支店約488m(徒歩7分)
- セブンイレブン京都河原町五条店約488m(徒歩7分)
- ダイコクドラッグ京阪五条駅前店約527m(徒歩7分)
-
ホームページはこちら
国土交通大臣 (1) 第9800号
テンポス不動産 (株)テンポスフィナンシャルトラスト
※連合隊は物件情報の精度向上に努めています:「物件情報に誤りがある」「成約済みである」などお気付きの点がございましたらこちらよりご連絡ください。
写真枚数:4枚
物件・資金・M&Aの専門チーム|理想の店舗・事業運営をトータルに支えます
私たちは、物件探しから資金の準備、さらには事業の引き継ぎ(M&A)まで、事業を営む皆様を支える専門部隊です。飲食業をはじめ、様々な業種のサポートで培った確かなノウハウで、お一人おひとりのご希望に合わせた最適なプランをご提案します。実務に長けたプロ集団が、皆様の良きパートナーとして課題解決まで共に歩みます。