富岡一丁目店舗ビル
ここに注目!17.58坪 93.5万円 「門前仲町」駅 徒歩1分/ 店舗利用可能!新築一棟貸し物件 軽飲食・重飲食・バー・クラブ・美容室・理容室・サロン(マッサージ・エステ・ネイルなど)・医療・歯科・クリニック・物販・小売・ジム・教室・スタジオ
この物件の契約期間は 5年間です。
定期借家物件は、賃貸借契約期間満了後、原則として契約の更新ができない物件です。再契約の可否については不動産会社にお問合せください。
この物件は、仲介手数料がかかりません。
この物件の貸主は、情報を掲載している不動産会社です。仲介物件ではないため、仲介手数料は発生しません。
| 賃料・費用 |
93万5,000円
(+管理費等 なし)
坪単価:約5.3万円/坪
敷510万円礼なし仲なし
敷引・償却金:170万円
|
|---|---|
| 専有面積 | 58.1m² (17.57坪) |
| 住所 | 東京都江東区富岡 (詳細非公開) |
| 交通 | 門前仲町駅(徒歩1分)|木場駅(徒歩11分) |
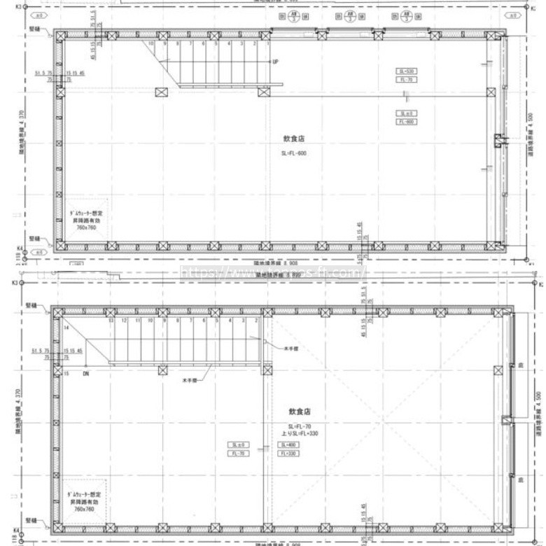
| 階/階建 | 2階建 |
| 築年月 | 新築(2026年1月) |
| 駐車場 |
空室確認、見学、詳細を知りたい方はこちら!
お電話の際は「連合隊の物件」とお伝えください。
情報掲載期限:あと11日(更新日 2026/3/6)
- 物件写真・概要
- 周辺地図
-
空室確認、見学、詳細を知りたい方はこちら!
おすすめポイント
- 駅徒歩1分以内
- 駅前立地
- スケルトン
- 出店するなら…この業種がおすすめ!
- 飲食全般(重飲食含む)

- 喫茶・カフェ(軽飲食)

- バー・クラブ・スナック

- 小売・物販

- 美容・健康・介護

- 医療

- 教育・スクール

- 事務所

- アミューズメント

交通
- 門前仲町駅東京メトロ東西線、都営大江戸線駅近!徒歩1分(約269m)
- 木場駅東京メトロ東西線徒歩11分(約859m)
物件概要
建物の階建 地上2階建 総戸数 構造 木造 間取り 契約期間 定期借家(5年間) 権利金 住宅保険 出店推奨業種 飲食全般(重飲食含む)、喫茶・カフェ(軽飲食)、バー・クラブ・スナック 出店不可業種 引渡し 管理人 取引態様 貸主 物件No 河西 設備・特徴 - 駅前立地
- スケルトン
備考 ・スケルトンにて引き渡し ・EVなし ·重飲食相談可 主な周辺施設
- ひろがり保育園・門前仲町約30m(徒歩1分)
- キッチンオリジン門前仲町店約53m(徒歩1分)
- 城南コベッツ門前仲町教室約93m(徒歩2分)
- 深川宿深川八幡店約136m(徒歩2分)
- デイリーヤマザキ門前仲町駅前店約121m(徒歩2分)
- 焼肉酒家牛角門前仲町店約185m(徒歩3分)
- CoCo壱番屋東京メトロ門前仲町駅前店約150m(徒歩2分)
- 富岡八幡宮約227m(徒歩3分)
-
ホームページはこちら
国土交通大臣 (1) 第9800号
テンポス不動産 (株)テンポスフィナンシャルトラスト
※連合隊は物件情報の精度向上に努めています:「物件情報に誤りがある」「成約済みである」などお気付きの点がございましたらこちらよりご連絡ください。
写真枚数:3枚
物件・資金・M&Aの専門チーム|理想の店舗・事業運営をトータルに支えます
私たちは、物件探しから資金の準備、さらには事業の引き継ぎ(M&A)まで、事業を営む皆様を支える専門部隊です。飲食業をはじめ、様々な業種のサポートで培った確かなノウハウで、お一人おひとりのご希望に合わせた最適なプランをご提案します。実務に長けたプロ集団が、皆様の良きパートナーとして課題解決まで共に歩みます。