大崎市鳴子温泉レストラン居抜きテナント!
ここに注目!飲食店・カフェ等に適したデザイナーズ居抜き物件! 厨房機器や設備含め、全て無償でご利用可能です。 低予算で開業をお考えの皆様、是非一度ご覧になって下さい。
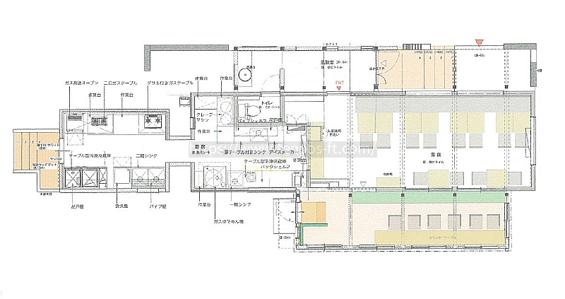
この物件は レストラン の居抜き物件です。
現状の設備が残されたまま取引されるため、初期費用を抑え速やかに事業を開始できるメリットがあります。
| 賃料・費用 |
13万2,000円
(+管理費等 8,800円)
坪単価:約6,169円/坪
敷72万円礼なし仲13万2,000円
|
|---|---|
| 専有面積 | 70.77m² (21.4坪) |
| 住所 | 宮城県大崎市鳴子温泉月山13-2 |
| 交通 | 川渡温泉駅(徒歩17分)道順を見る |
| 階/階建 | 1階建 |
| 築年月 | 築10年(2016年3月) |
| 駐車場 |
あり 駐車可能台数:15台
|
空室確認、見学、詳細を知りたい方はこちら!
お電話の際は「連合隊の物件」とお伝えください。
新着 情報掲載期限:あと30日(更新日 2026/3/2)
- 物件写真・概要
- 周辺地図
-
空室確認、見学、詳細を知りたい方はこちら!
おすすめポイント
- 即入居可
- 幹線道路沿い
- 駐車2台以上可
- 造作譲渡料無料
- デザイナーズ
- 24時間セキュリティー
- 出店するなら…この業種がおすすめ!
- 飲食全般(重飲食含む)

- 喫茶・カフェ(軽飲食)

- バー・クラブ・スナック

- 小売・物販

- 美容・健康・介護

- 医療

- 教育・スクール

- 事務所

- アミューズメント

交通色がついているアイコンをクリックすると、本物件までの道順を見ることができます。
物件概要
建物の階建 地上1階建 総戸数 構造 軽量鉄骨造 間取り 契約期間 2年間 権利金 住宅保険 出店推奨業種 飲食全般(重飲食含む)、喫茶・カフェ(軽飲食) 出店不可業種 居抜き情報 [レストラン] の居抜き造作譲渡料 無料 特記事項 店舗内設備はすべて無償使用可。但し維持管理及び更新必要な場合は借主負担。 土地面積 1039.58m² (314.47坪)(公簿)用途地域 - 無指定
引渡し 即時 管理人 無 取引態様 仲介 物件No 設備・特徴 - 幹線道路沿い
- デザイナーズ
- 照明器具付
- ガス設備
- 給排水設備
- エアコン付
- 24時間セキュリティー
備考 ※保証会社必須、保険加入要(詳細要確認) ※電気代:子メーター検針(大家様会社より) ※水道代:使用料分請求(大家様会社より) ※冬場の除雪:(大家様会社にて)受託可能 主な周辺施設色がついているアイコンをクリックすると、本物件までの道順を見ることができます。
-
ホームページはこちら
国土交通大臣 (1) 第9800号
テンポス不動産 (株)テンポスフィナンシャルトラスト
※連合隊は物件情報の精度向上に努めています:「物件情報に誤りがある」「成約済みである」などお気付きの点がございましたらこちらよりご連絡ください。
写真枚数:30枚
コメリハード&グリーン鳴子店
名生定簡易郵便局
川渡カトリック保育園
川渡郵便局
物件・資金・M&Aの専門チーム|理想の店舗・事業運営をトータルに支えます
私たちは、物件探しから資金の準備、さらには事業の引き継ぎ(M&A)まで、事業を営む皆様を支える専門部隊です。飲食業をはじめ、様々な業種のサポートで培った確かなノウハウで、お一人おひとりのご希望に合わせた最適なプランをご提案します。実務に長けたプロ集団が、皆様の良きパートナーとして課題解決まで共に歩みます。