白央ビル
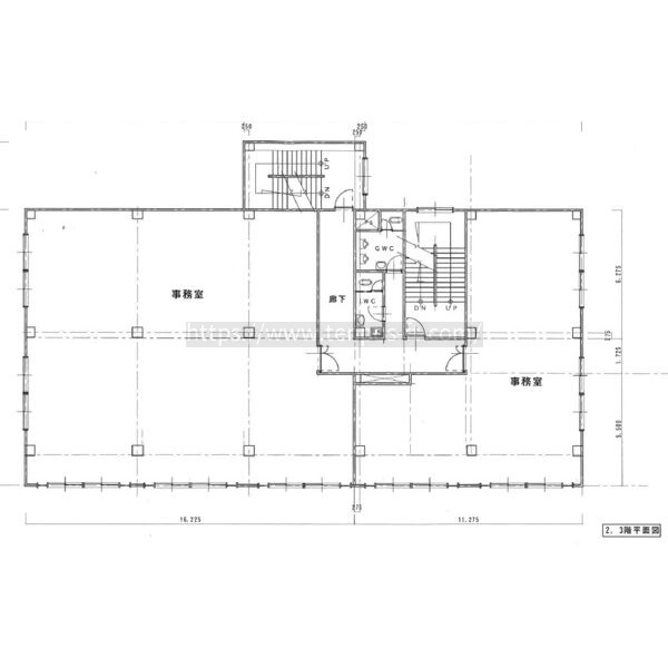
ここに注目!札幌市白石区中央一条に位置する「白央ビル」3階部分で、貴社の新たなビジネス拠点を見つけませんか?広々とした314.0㎡(約95坪)の空間は、多様なオフィスレイアウトに対応し、働く皆様に快適な環境をご提供します。 札幌市営地下鉄東西線「白石駅」から徒歩8分とアクセスも良好。周辺には郵便局(徒歩2分)や病院(徒歩3分)、コンビニなどが揃い、日々の業務をサポートする便利な環境が魅力です。エアコンやガス暖房も完備されており、一年を通して快適にお過ごしいただけます。駐車場も1台確保されており、お車での通勤や来客にも便利ですね。 賃料は月額522,500円(税込)、管理費62,700円。更新料はございません。ぜひこの機会に、貴社の成長を加速させる最適なオフィスをご検討ください。※62坪に分割も可能です。
| 賃料・費用 |
52万2,500円
(+管理費等 6万2,700円)
坪単価:約5,502円/坪
敷142万5,000円仲52万2,500円
|
|---|---|
| 専有面積 | 314m² (94.98坪) |
| 住所 | 北海道札幌市白石区中央一条7-10-23 |
| 交通 | 白石駅(徒歩8分)|白石駅(徒歩18分)道順を見る |
| 階/階建 | 3階 / 3階建 |
| 築年月 | 築50年(1975年7月) |
| 駐車場 |
あり (1万1,000円/台) 駐車可能台数:1台
|
空室確認、見学、詳細を知りたい方はこちら!
お電話の際は「連合隊の物件」とお伝えください。
情報掲載期限:あと17日(更新日 2026/2/8)
- 物件写真・概要
- 周辺地図
-
空室確認、見学、詳細を知りたい方はこちら!
おすすめポイント
- 駐車場あり
- エアコン付
交通色がついているアイコンをクリックすると、本物件までの道順を見ることができます。
物件概要
所在階/建物の階建 3階(3階部分 事務所) / 地上3階建 主要採光面 構造 鉄骨鉄筋コンクリート(SRC)造 間取り 契約期間 2年間 更新料/更新手数料 なし 権利金 住宅保険 引渡し 相談 管理人 取引態様 仲介 物件No 設備・特徴 - 幹線道路沿い
- ガス設備
- 給排水設備
- エアコン付
- ガス暖房
備考 ※保証会社必須、保険加入要(詳細要確認) 主な周辺施設色がついているアイコンをクリックすると、本物件までの道順を見ることができます。
-
ホームページはこちら
国土交通大臣 (1) 第9800号
テンポス不動産 (株)テンポスフィナンシャルトラスト
※連合隊は物件情報の精度向上に努めています:「物件情報に誤りがある」「成約済みである」などお気付きの点がございましたらこちらよりご連絡ください。
写真枚数:13枚
物件・資金・M&Aの専門チーム|理想の店舗・事業運営をトータルに支えます
私たちは、物件探しから資金の準備、さらには事業の引き継ぎ(M&A)まで、事業を営む皆様を支える専門部隊です。飲食業をはじめ、様々な業種のサポートで培った確かなノウハウで、お一人おひとりのご希望に合わせた最適なプランをご提案します。実務に長けたプロ集団が、皆様の良きパートナーとして課題解決まで共に歩みます。