こだわりの空間をカタチに。🎨大須の街に溶け込むアートな新築スケルトン物件!🌿✨
ここに注目!名古屋市中区大須に、夢を叶える新築物件が誕生しました!✨ その名も「こだわりの空間をカタチに。🎨大須の街に溶け込むアートな新築スケルトン物件!🌿✨」。 上前津駅からなんと徒歩2分🚶♀️💨 複数路線が利用できる駅近で、お客様もスタッフさんも通いやすさ良好なんです。広々とした183.4㎡の空間は、新築のスケルトン仕様。あなたのセンスで自由にデザインできるのが嬉しいポイント🎨。エレベーターも完備で、大きな荷物の搬入もスムーズですよ。 美容・健康・介護、医療、教育・スクールなど、人々の暮らしを豊かにする事業にぴったり。大須の活気ある街で、新しい一歩を踏み出しませんか?お問い合わせお待ちしております!😊
| 賃料・費用 |
99万8,800円
(+管理費等 11万880円)
坪単価:約1.8万円/坪
礼99万8,800円(1ヶ月)仲99万8,800円
保証金:199万7,600円(2ヶ月)
|
|---|---|
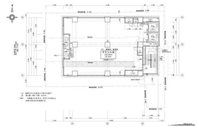
| 専有面積 | 183.4m² (55.47坪) |
| 住所 | 愛知県名古屋市中区大須4丁目 10番87号 |
| 交通 | 上前津駅(徒歩2分)|矢場町駅(徒歩7分)|大須観音駅(徒歩11分)道順を見る |
| 階/階建 | 3階 / 12階建 |
| 築年月 | 新築(2025年11月) |
| 駐車場 |
空室確認、見学、詳細を知りたい方はこちら!
お電話の際は「連合隊の物件」とお伝えください。
新着 情報掲載期限:あと28日(更新日 2026/1/21)
- 物件写真・概要
- 周辺地図
-
空室確認、見学、詳細を知りたい方はこちら!
おすすめポイント
- 駅徒歩3分以内
- 複数路線利用可
- スケルトン
- デザイナーズ
- 出店するなら…この業種がおすすめ!
- 飲食全般(重飲食含む)

- 喫茶・カフェ(軽飲食)

- バー・クラブ・スナック

- 小売・物販

- 美容・健康・介護

- 医療

- 教育・スクール

- 事務所

- アミューズメント

※出店不可の業種:飲食全般
交通色がついているアイコンをクリックすると、本物件までの道順を見ることができます。
物件概要
所在階/建物の階建 3階 / 地上12階建 主要採光面 構造 鉄筋コンクリート(RC)造 間取り バルコニー あり(6m²)契約期間 2年間 権利金 住宅保険 出店推奨業種 美容・健康・介護、医療、教育・スクール 出店不可業種 飲食全般 用途地域 - 商業地域
引渡し 相談 管理人 取引態様 仲介 物件No 設備・特徴 - 複数路線利用可
- エレベーター
- デザイナーズ
- スケルトン
備考 保証会社利用必須、保険加入要 主な周辺施設色がついているアイコンをクリックすると、本物件までの道順を見ることができます。
-

この物件の担当者 名古屋営業所(なごやえいぎょうしょ)
名古屋市内のテナント取引は私にお任せください。 ご条件に沿う物件探しから、ビジネスプランの策定、内装、資金取得、営業に携わるすべてのご案件に応え、全力で貴方と並走することをお約束いたします。
ホームページはこちら国土交通大臣 (1) 第9800号
テンポス不動産 (株)テンポスフィナンシャルトラスト
※連合隊は物件情報の精度向上に努めています:「物件情報に誤りがある」「成約済みである」などお気付きの点がございましたらこちらよりご連絡ください。
写真枚数:12枚
物件・資金・M&Aの専門チーム|理想の店舗・事業運営をトータルに支えます
私たちは、物件探しから資金の準備、さらには事業の引き継ぎ(M&A)まで、事業を営む皆様を支える専門部隊です。飲食業をはじめ、様々な業種のサポートで培った確かなノウハウで、お一人おひとりのご希望に合わせた最適なプランをご提案します。実務に長けたプロ集団が、皆様の良きパートナーとして課題解決まで共に歩みます。