🚉 名駅ライフをフル活用!「CREVISTA名駅南」
ここに注目!名古屋駅徒歩7分!✨ 新築貸店舗・事務所「CREVISTA名駅南」のご紹介です!🎉 2025年11月に竣工したばかりのぴかぴか物件で、新しいビジネスをスタートしませんか?🏢 名古屋駅から徒歩7分とアクセス抜群で、複数路線が利用できるのが嬉しいポイント。お客様にもスタッフさんにも喜ばれる立地です。🚶♀️💨 約40.99㎡の広々とした空間は、1階路面店で前面ガラス張りなので、視認性もバッチリ!無料駐車場も1台分賃料に含まれているので、車での来店も安心です🚗🅿️ 小売・物販、美容・健康・介護、事務所など、幅広い業種におすすめです。飲食業はご遠慮いただいておりますが、その他ご相談くださいね。😊 個別空調や給排水設備も完備で、快適なビジネス環境が整っています。 新しいスタートを応援する「CREVISTA名駅南」で、理想のビジネスライフを実現しませんか?💖 詳細はお気軽にお問い合わせください!📞
| 賃料・費用 |
34万6,500円
(+管理費等 -円)
坪単価:約2.8万円/坪
仲34万6,500円
保証金:189万円(償却区分:解約)/敷引・償却金:103万9,500円(3ヶ月)
|
|---|---|
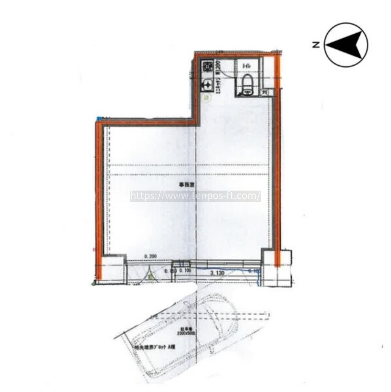
| 専有面積 | 40.99m² (12.39坪) |
| 住所 | 愛知県名古屋市中村区名駅南2丁目11-35 |
| 交通 | 名古屋駅(徒歩7分)|国際センター駅(徒歩9分)|伏見駅(徒歩13分)道順を見る |
| 階/階建 | 路面 / 14階建 |
| 築年月 | 新築(2025年11月) |
| 駐車場 |
あり 駐車可能台数:1台
店舗前スペース1台分賃料に込み |
空室確認、見学、詳細を知りたい方はこちら!
お電話の際は「連合隊の物件」とお伝えください。
情報掲載期限:あと24日(更新日 2026/1/3)
- 物件写真・概要
- 周辺地図
-
空室確認、見学、詳細を知りたい方はこちら!
おすすめポイント
- 路面店
- 複数路線利用可
- 駐車場あり
- 出店するなら…この業種がおすすめ!
- 飲食全般(重飲食含む)

- 喫茶・カフェ(軽飲食)

- バー・クラブ・スナック

- 小売・物販

- 美容・健康・介護

- 医療

- 教育・スクール

- 事務所

- アミューズメント

※出店不可の業種:飲食全般
交通色がついているアイコンをクリックすると、本物件までの道順を見ることができます。
- 名古屋駅JR関西本線、あおなみ線、名古屋市営地下鉄桜通線、名古屋市営地下鉄東山線、東海道新幹線、JR東海道本線、JR中央本線、名鉄犬山線、名鉄常滑線、名鉄名古屋本線、近鉄名古屋線徒歩7分(約964m)
- 国際センター駅名古屋市営地下鉄桜通線徒歩9分(約976m)
- 伏見駅名古屋市営地下鉄鶴舞線、名古屋市営地下鉄東山線徒歩13分(約1.4km)
物件概要
所在階/建物の階建 1階 / 地上14階建 主要採光面 構造 鉄筋コンクリート(RC)造 間取り 契約期間 2年間 権利金 住宅保険 出店推奨業種 小売・物販、美容・健康・介護、事務所 出店不可業種 飲食全般 用途地域 - 商業地域
引渡し 相談 管理人 取引態様 仲介 物件No 設備・特徴 - 複数路線利用可
- エレベーター
- 照明器具付
- 給排水設備
- 個別空調
- 路面店
- 前面ガラス張り
備考 ※保証会社必須、保険加入要、業種制限あり、要問合せ 主な周辺施設色がついているアイコンをクリックすると、本物件までの道順を見ることができます。
-

この物件の担当者 名古屋営業所(なごやえいぎょうしょ)
名古屋市内のテナント取引は私にお任せください。 ご条件に沿う物件探しから、ビジネスプランの策定、内装、資金取得、営業に携わるすべてのご案件に応え、全力で貴方と並走することをお約束いたします。
ホームページはこちら国土交通大臣 (1) 第9800号
テンポス不動産 (株)テンポスフィナンシャルトラスト
※連合隊は物件情報の精度向上に努めています:「物件情報に誤りがある」「成約済みである」などお気付きの点がございましたらこちらよりご連絡ください。
写真枚数:13枚
物件・資金・M&A テンポスの専門部隊! 【福岡】【仙台】新営業所開設!【名古屋・札幌】9月開始予定
物件・資金・M&Aの相談は 【フィナンシャルトラスト】 にお任せください! 実務に長けたプロ集団が、お客様に寄り添って解決いたします。 ご連絡お待ちしております。