✨【新築・即入居可能!】リード上前津ビルⅡ🚀
ここに注目!【新築・即入居可能!】✨あなたのビジネスを加速させる、特別な場所が名古屋市中区大須に誕生しました!🚀 上前津駅からなんと徒歩2分!🚶♀️💨 鶴舞線・名城線の複数路線が利用できるアクセス良好な立地は、お客様にとってもスタッフにとっても嬉しいポイントですね。周辺にはコンビニや銀行も揃い、ビジネスをサポートする環境が整っています。 新築ならではの清潔感あふれる空間は、広々66.56㎡!南向きバルコニーで明るさも期待できますよ☀️ 喫茶・カフェ☕️、美容・健康・介護、教育・スクールなど、幅広い業種におすすめです。 新しいスタートを、この新しい場所で始めませんか? 賃料398,574円(税込)、管理費11,000円。 詳細や内覧のご希望は、お気軽にお問い合わせくださいね!📞お待ちしております😊
| 賃料・費用 |
31万2円
(+管理費等 1万1,000円)
坪単価:約1.5万円/坪
仲31万2円
保証金:84万5,460円
|
|---|---|
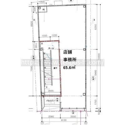
| 専有面積 | 66.56m² (20.13坪) |
| 住所 | 愛知県名古屋市中区大須4-14-61 |
| 交通 | 上前津駅(徒歩2分)|鶴舞駅(徒歩9分)|矢場町駅(徒歩9分)道順を見る |
| 階/階建 | 2階 / 3階建 |
| 築年月 | 新築(2025年9月) |
| 駐車場 |
空室確認、見学、詳細を知りたい方はこちら!
お電話の際は「連合隊の物件」とお伝えください。
情報掲載期限:あと26日(更新日 2026/2/23)
- 物件写真・概要
- 周辺地図
-
空室確認、見学、詳細を知りたい方はこちら!
おすすめポイント
- 駅徒歩3分以内
- 複数路線利用可
- 出店するなら…この業種がおすすめ!
- 飲食全般(重飲食含む)

- 喫茶・カフェ(軽飲食)

- バー・クラブ・スナック

- 小売・物販

- 美容・健康・介護

- 医療

- 教育・スクール

- 事務所

- アミューズメント

※出店不可の業種:重飲食(軽飲食は相談可)
交通色がついているアイコンをクリックすると、本物件までの道順を見ることができます。
物件概要
所在階/建物の階建 2階 / 地上3階建 主要採光面 南 構造 鉄骨造 間取り バルコニー あり- バルコニー南向き
契約期間 2年間 更新料/更新手数料 3万3,000円 権利金 住宅保険 出店推奨業種 喫茶・カフェ(軽飲食)、美容・健康・介護、教育・スクール 出店不可業種 重飲食(軽飲食は相談可) 用途地域 - 商業地域
引渡し 相談 管理人 取引態様 仲介 物件No 設備・特徴 - 複数路線利用可
備考 ※業種制限あり、ガス引き込み無し、EV無し 、保証会社加入必須、保険加入要 主な周辺施設色がついているアイコンをクリックすると、本物件までの道順を見ることができます。
-

この物件の担当者 名古屋営業所(なごやえいぎょうしょ)
名古屋市内のテナント取引は私にお任せください。 ご条件に沿う物件探しから、ビジネスプランの策定、内装、資金取得、営業に携わるすべてのご案件に応え、全力で貴方と並走することをお約束いたします。
ホームページはこちら国土交通大臣 (1) 第9800号
テンポス不動産 (株)テンポスフィナンシャルトラスト
※連合隊は物件情報の精度向上に努めています:「物件情報に誤りがある」「成約済みである」などお気付きの点がございましたらこちらよりご連絡ください。
写真枚数:17枚
物件・資金・M&Aの専門チーム|理想の店舗・事業運営をトータルに支えます
私たちは、物件探しから資金の準備、さらには事業の引き継ぎ(M&A)まで、事業を営む皆様を支える専門部隊です。飲食業をはじめ、様々な業種のサポートで培った確かなノウハウで、お一人おひとりのご希望に合わせた最適なプランをご提案します。実務に長けたプロ集団が、皆様の良きパートナーとして課題解決まで共に歩みます。