寺島ビル 2F・3F
ここに注目!札幌駅まで徒歩5分!バスセンター前駅も徒歩8分!JRと地下鉄、複数路線が利用できる札幌市中央区の「寺島ビル」をご紹介します。 広々とした専有面積296.9㎡を誇り、2階・3階部分を一体でご利用いただけます。事業拡大や新しい事業の拠点として、自由なオフィスレイアウトが実現できるでしょう。 エアコン完備で季節問わず快適にお過ごしいただけます。男女別トイレは、従業員の皆様にも喜ばれるでしょう。 敷地内には駐車場が4台分一括でご契約可能。複数台の社用車を所有する企業様にもご検討いただけます。 周辺にはコンビニや郵便局が徒歩1分圏内と近く、急な買い物や手続きもスムーズです。スーパーや病院も徒歩圏内にあり、日々の業務を多角的にサポートするロケーションです。 お問い合わせをお待ちしております! ※FF灯油暖房、クーラーのメンテナンスは入居者負担となります。
| 賃料・費用 |
44万円
(+管理費等 -円)
坪単価:約4,900円/坪
敷120万円仲44万円
|
|---|---|
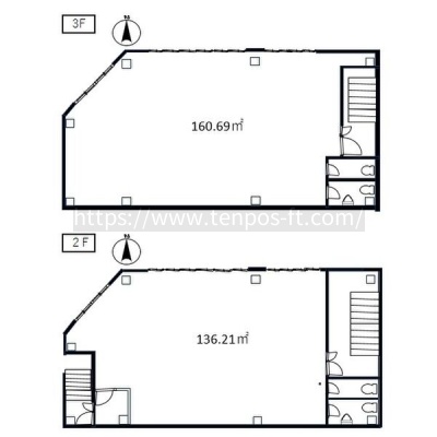
| 専有面積 | 296.9m² (89.81坪) |
| 住所 | 北海道札幌市中央区北二条東2-1-14 |
| 交通 | バスセンター前駅(徒歩8分)|札幌駅(徒歩5分)道順を見る |
| 階/階建 | 2階 / 3階建 |
| 築年月 | 築41年(1984年5月) |
| 駐車場 |
あり (11万円/台) 駐車可能台数:4台
※4台一括 110,000/月(税込) |
空室確認、見学、詳細を知りたい方はこちら!
お電話の際は「連合隊の物件」とお伝えください。
情報掲載期限:あと6日(更新日 2025/11/21)
- 物件写真・概要
- 周辺地図
-
空室確認、見学、詳細を知りたい方はこちら!
おすすめポイント
- 駅徒歩5分以内
- 複数路線利用可
- 駐車2台以上可
- 男女別トイレ
- エアコン付
交通色がついているアイコンをクリックすると、本物件までの道順を見ることができます。
物件概要
所在階/建物の階建 2階(2~3階部分) / 地上3階建 主要採光面 構造 鉄骨造 間取り 契約期間 3年間 権利金 住宅保険 引渡し 相談 管理人 取引態様 仲介 物件No 設備・特徴 - 複数路線利用可
- ガス設備
- 給排水設備
- エアコン付
- 男女別トイレ
備考 ※保険加入要(詳細要確認) 主な周辺施設色がついているアイコンをクリックすると、本物件までの道順を見ることができます。
-
ホームページはこちら
国土交通大臣 (1) 第9800号
テンポス不動産 (株)テンポスフィナンシャルトラスト
※連合隊は物件情報の精度向上に努めています:「物件情報に誤りがある」「成約済みである」などお気付きの点がございましたらこちらよりご連絡ください。
写真枚数:8枚
物件・資金・M&A テンポスの専門部隊! 【福岡】【仙台】新営業所開設!【名古屋・札幌】9月開始予定
物件・資金・M&Aの相談は 【フィナンシャルトラスト】 にお任せください! 実務に長けたプロ集団が、お客様に寄り添って解決いたします。 ご連絡お待ちしております。