クレセール河原町 :テナントC
ここに注目!主要採光⾯:南向き,飲⾷店不可,専有部分にトイレあり,プロパンガス,エアコン
| 賃料・費用 |
10万100円
(+管理費等 5,500円)
坪単価:約8,556円/坪
敷36万4,000円礼9万1,000円仲10万100円
|
|---|---|
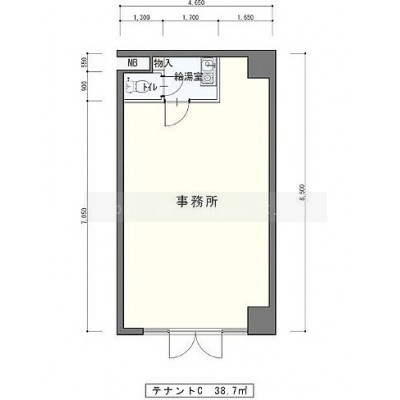
| 専有面積 | 38.7m² (11.7坪) |
| 住所 | 宮城県仙台市若林区河原町2丁目 5-40 |
| 交通 | 河原町駅(徒歩6分)|長町一丁目駅(徒歩9分) |
| 階/階建 | 路面 / 7階建 |
| 築年月 | 築25年(2000年4月) |
| 駐車場 |
あり (1万1,000円/台) 駐車可能台数:2台
|
空室確認、見学、詳細を知りたい方はこちら!
お電話の際は「連合隊の物件」とお伝えください。
情報掲載期限:あと22日(更新日 2025/12/15)
- 物件写真・概要
- 周辺地図
-
空室確認、見学、詳細を知りたい方はこちら!
おすすめポイント
- 路面店
- 駐車2台以上可
- スケルトン
- 出店するなら…この業種がおすすめ!
- 飲食全般(重飲食含む)

- 喫茶・カフェ(軽飲食)

- バー・クラブ・スナック

- 小売・物販

- 美容・健康・介護

- 医療

- 教育・スクール

- 事務所

- アミューズメント

※出店不可の業種:飲食全般
交通色がついているアイコンをクリックすると、本物件までの道順を見ることができます。
物件概要
所在階/建物の階建 1階(C) / 地上7階建 主要採光面 構造 鉄筋コンクリート(RC)造 間取り 契約期間 2年間 権利金 住宅保険 出店推奨業種 小売・物販、美容・健康・介護、事務所 出店不可業種 飲食全般 引渡し 2025年6月初旬 管理人 取引態様 仲介 物件No 設備・特徴 - スケルトン
- 路面店
- エアコン付
備考 賃貸保証・その他:加入要 / 2年間 ・敷金は業種によって変動有 ・2階~6階は賃貸住宅となります。一番右側のテナントです。 ・敷地内禁煙 ・駐車場2台契約可能 ・ミニキッチン ・残置物の入居期間中の維持管理・退去時撤去並びに原状回復費用は借主の負担する。 ・鍵交換費用:7,700円 主な周辺施設色がついているアイコンをクリックすると、本物件までの道順を見ることができます。
-
ホームページはこちら
国土交通大臣 (1) 第9800号
テンポス不動産 (株)テンポスフィナンシャルトラスト
※連合隊は物件情報の精度向上に努めています:「物件情報に誤りがある」「成約済みである」などお気付きの点がございましたらこちらよりご連絡ください。
写真枚数:14枚
セブンイレブン仙台河原町店
仙台河原町郵便局
ワコー河原町店
医療法人社団杏仁会内科河原町病院
物件・資金・M&A テンポスの専門部隊! 【福岡】【仙台】新営業所開設!【名古屋・札幌】9月開始予定
物件・資金・M&Aの相談は 【フィナンシャルトラスト】 にお任せください! 実務に長けたプロ集団が、お客様に寄り添って解決いたします。 ご連絡お待ちしております。