仙台市青葉区春日町テナント
ここに注目!飲食店可 スケルトン 住居兼店舗の相談可/定期借家契約は満了後再契約の相談可 ※現在一部スケルトンのため、」掲載写真と異なる場合がございます。
| 賃料・費用 |
29万7,000円
(+管理費等 -円)
坪単価:約5,264円/坪
敷54万円礼なし仲29万7,000円
|
|---|---|
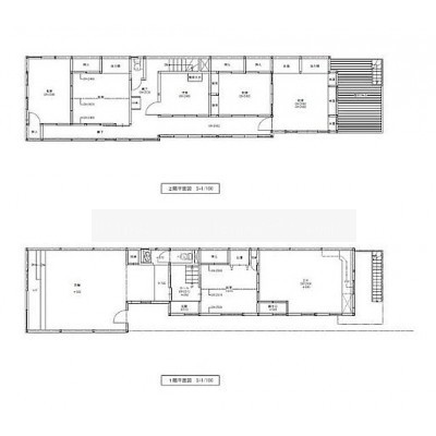
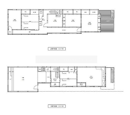
| 専有面積 | 186.56m² (56.43坪) |
| 住所 | 宮城県仙台市青葉区春日町8-15 |
| 交通 | 勾当台公園駅(徒歩10分)|北四番丁駅(徒歩14分)|国際センター駅(徒歩23分) |
| 階/階建 | 路面 / 2階建 |
| 築年月 | 築66年(1959年8月) |
| 駐車場 |
あり
|
空室確認、見学、詳細を知りたい方はこちら!
お電話の際は「連合隊の物件」とお伝えください。
情報掲載期限:あと10日(更新日 2025/12/15)
- 物件写真・概要
- 周辺地図
-
空室確認、見学、詳細を知りたい方はこちら!
おすすめポイント
- 路面店
- 商店街に面す
- 駐車場あり
- スケルトン
- 出店するなら…この業種がおすすめ!
- 飲食全般(重飲食含む)

- 喫茶・カフェ(軽飲食)

- バー・クラブ・スナック

- 小売・物販

- 美容・健康・介護

- 医療

- 教育・スクール

- 事務所

- アミューズメント

交通色がついているアイコンをクリックすると、本物件までの道順を見ることができます。
物件概要
所在階/建物の階建 1階(1~2階) / 地上2階建 主要採光面 構造 鉄骨造 間取り 契約期間 3年間 権利金 住宅保険 出店推奨業種 飲食全般(重飲食含む)、喫茶・カフェ(軽飲食)、小売・物販 出店不可業種 引渡し 相談 管理人 取引態様 仲介 物件No 設備・特徴 - 商店街に面す
- スケルトン
- 路面店
- 前面ガラス張り
備考 賃貸保証・その他:加入要 日本セーフティー:初回保証料賃料合計100% 主な周辺施設色がついているアイコンをクリックすると、本物件までの道順を見ることができます。
-
ホームページはこちら
国土交通大臣 (1) 第9800号
テンポス不動産 (株)テンポスフィナンシャルトラスト
※連合隊は物件情報の精度向上に努めています:「物件情報に誤りがある」「成約済みである」などお気付きの点がございましたらこちらよりご連絡ください。
写真枚数:13枚
ファミリーマート青葉春日町店
仙台市民図書館
ファッション文化専門学校DOREME
物件・資金・M&A テンポスの専門部隊! 【福岡】【仙台】新営業所開設!【名古屋・札幌】9月開始予定
物件・資金・M&Aの相談は 【フィナンシャルトラスト】 にお任せください! 実務に長けたプロ集団が、お客様に寄り添って解決いたします。 ご連絡お待ちしております。