H西18条貸店舗
ここに注目!春駒通沿い、飲食店等にも!
| 賃料・費用 |
18万円
(+管理費等 -円)
坪単価:約3,009円/坪
敷36万円(2ヶ月)礼なし仲18万円
|
|---|---|
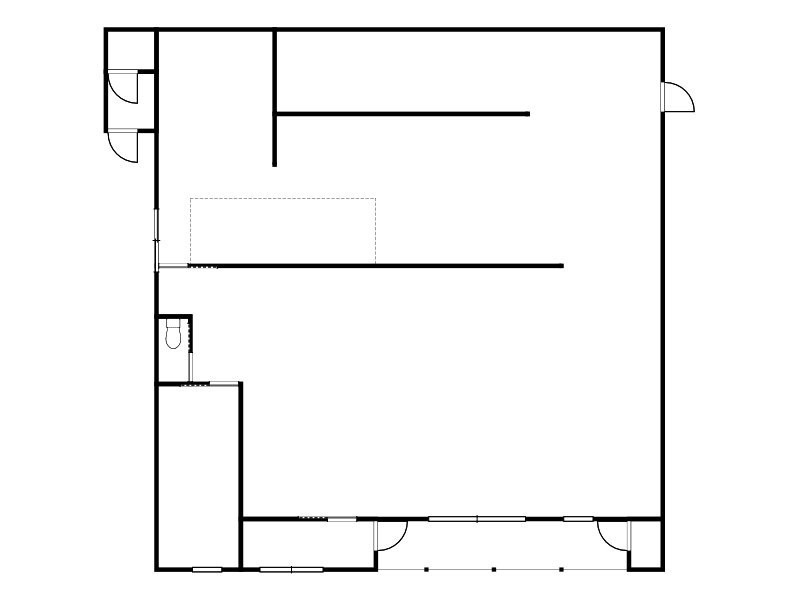
| 専有面積 | 197.82m² (59.84坪) |
| 住所 | 北海道帯広市西十八条南4丁目43番5号 |
| 交通 | 帯広駅(徒歩47分) |
| 階/階建 | 1階 / 2階建 |
| 築年月 | 築49年(1976年11月) |
| 駐車場 |
あり (無料)
|
【WEB面談可】
空室確認、見学、詳細を知りたい方はこちら!
お電話の際は「連合隊の物件」とお伝えください。
情報掲載期限:あと28日(更新日 2025/12/6)
- 物件写真・概要
- 周辺地図
-
【WEB面談可】
空室確認、見学、詳細を知りたい方はこちら!おすすめポイント
- 駐車場あり
交通色がついているアイコンをクリックすると、本物件までの道順を見ることができます。
物件概要
所在階/建物の階建 1階(1) / 地上2階建 主要採光面 構造 鉄骨造 間取り 契約期間 お問合せください 権利金 住宅保険 出店推奨業種 出店不可業種 引渡し 2025年12月下旬 管理人 取引態様 代理 物件No 09262-1 設備・特徴 備考 店舗 -
ホームページはこちら
北海道知事 十勝(10) 第422号
(株)ちえん 【WEB面談可】- 加入団体
- (公社)北海道宅地建物取引業協会、(公財)日本賃貸住宅管理協会
- 保証協会
- (公社)全国宅地建物取引業保証協会
- 公正取引協議会
- (一社)北海道不動産公正取引協議会
※連合隊は物件情報の精度向上に努めています:「物件情報に誤りがある」「成約済みである」などお気付きの点がございましたらこちらよりご連絡ください。
写真枚数:2枚