ビックマート D棟
ここに注目!学習塾跡
| 賃料・費用 |
16万4,505円
(+管理費等 1万6,450円)
坪単価:約5,512円/坪
敷29万9,100円礼なし仲16万4,505円
|
|---|---|
| 専有面積 | 98.7m² (29.85坪) |
| 住所 | 北海道河東郡音更町木野大通西15丁目1番地6 |
| 交通 | 帯広駅(徒歩71分) |
| 階/階建 | 2階 / 2階建 |
| 築年月 | 築20年(2005年6月) |
| 駐車場 |
あり (無料)
|
【WEB面談可】
空室確認、見学、詳細を知りたい方はこちら!
お電話の際は「連合隊の物件」とお伝えください。
情報掲載期限:あと28日(更新日 2026/3/16)
- 物件写真・概要
- 周辺地図
-
【WEB面談可】
空室確認、見学、詳細を知りたい方はこちら!おすすめポイント
- 即入居可
- 駐車場あり
- エアコン付
交通色がついているアイコンをクリックすると、本物件までの道順を見ることができます。
物件概要
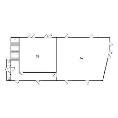
所在階/建物の階建 2階(2A) / 地上2階建 主要採光面 構造 木造 間取り 契約期間 お問合せください 権利金 住宅保険 引渡し 即時 管理人 取引態様 仲介 物件No 03916-2A 設備・特徴 - エアコン付
- 照明器具付
備考 事務所 ひろーい駐車場で集客に苦労しません!管理費に除雪費用が含まれています! -
ホームページはこちら
北海道知事 十勝(10) 第422号
(株)ちえん 【WEB面談可】- 加入団体
- (公社)北海道宅地建物取引業協会、(公財)日本賃貸住宅管理協会
- 保証協会
- (公社)全国宅地建物取引業保証協会
- 公正取引協議会
- (一社)北海道不動産公正取引協議会
※連合隊は物件情報の精度向上に努めています:「物件情報に誤りがある」「成約済みである」などお気付きの点がございましたらこちらよりご連絡ください。
写真枚数:14枚
昭和61年の創業以来、『地域のご縁を大切に』をモットーに、帯広・十勝に根ざして頑張って営業しています!