卸売センター貸事務所
ここに注目!官公庁に徒歩圏!
| 賃料・費用 |
11万8,800円
(+管理費等 1万3,200円)
坪単価:約5,503円/坪
敷21万6,000円礼なし仲11万8,800円
|
|---|---|
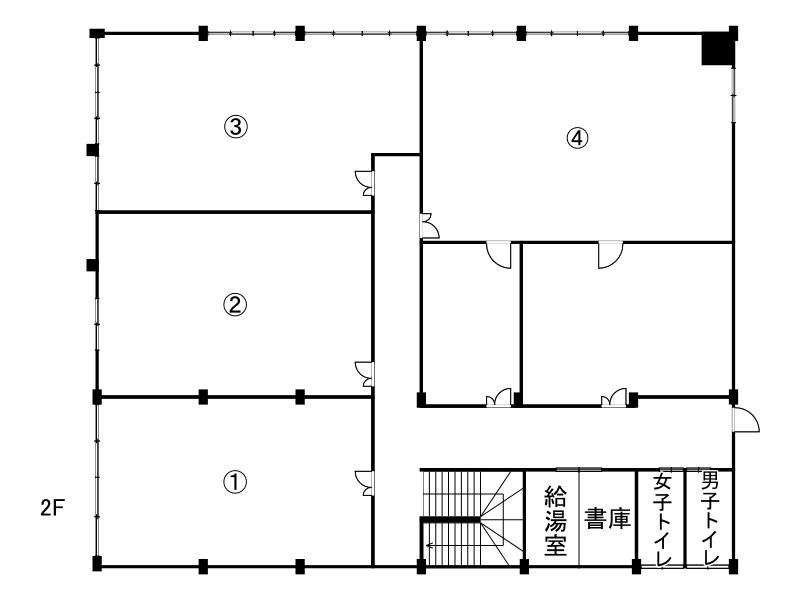
| 専有面積 | 71.4m² (21.59坪) |
| 住所 | 北海道帯広市西八条南6丁目4番地3 |
| 交通 | 帯広駅(徒歩18分) |
| 階/階建 | 2階 / 3階建 |
| 築年月 | 築55年(1970年11月) |
| 駐車場 |
あり (無料)
|
【WEB面談可】
空室確認、見学、詳細を知りたい方はこちら!
お電話の際は「連合隊の物件」とお伝えください。
情報掲載期限:あと28日(更新日 2025/12/17)
- 物件写真・概要
- 周辺地図
-
【WEB面談可】
空室確認、見学、詳細を知りたい方はこちら!おすすめポイント
- 即入居可
- 駐車場あり
- エアコン付
交通色がついているアイコンをクリックすると、本物件までの道順を見ることができます。
物件概要
所在階/建物の階建 2階(2F-2) / 地上3階建 主要採光面 構造 鉄骨造 間取り 契約期間 お問合せください 権利金 住宅保険 引渡し 即時 管理人 取引態様 仲介 物件No 03821-2F-2 設備・特徴 - エアコン付
- 照明器具付
備考 事務所 ALSOK警備あり! 【毎月必要費用】 2台目駐車料:5,245円/月 -
ホームページはこちら
北海道知事 十勝(10) 第422号
(株)ちえん 【WEB面談可】- 加入団体
- (公社)北海道宅地建物取引業協会、(公財)日本賃貸住宅管理協会
- 保証協会
- (公社)全国宅地建物取引業保証協会
- 公正取引協議会
- (一社)北海道不動産公正取引協議会
※連合隊は物件情報の精度向上に努めています:「物件情報に誤りがある」「成約済みである」などお気付きの点がございましたらこちらよりご連絡ください。
写真枚数:17枚