ビレッジハウス大成2号棟
ここに注目!家具・家電つき! WEB接客可!!
| 賃料・費用 |
4万1,100円(+管理費等 なし)
敷なし礼なし仲4万5,210円
保証金:なし
|
|---|---|
| 間取・専有 |
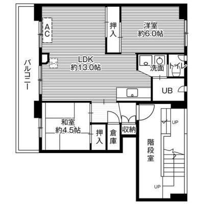
2LDK(55.99m²)
|
| 住所 | 北海道帯広市西二十五条南2丁目7-10 |
| 交通 | 西帯広駅(徒歩15分)|大成駅(バスで8分)|西24条2丁目(徒歩10分) |
| 築年月 | 築43年(1982年12月) |
| 駐車場 |
あり (2,200円/台)
|
【WEB面談可】
空室確認、見学、詳細を知りたい方はこちら!
お電話の際は「連合隊の物件」とお伝えください。
情報掲載期限:あと30日(更新日 2025/12/10)
- 物件写真・概要
- 周辺地図
-
【WEB面談可】
空室確認、見学、詳細を知りたい方はこちら!おすすめポイント
- バス/トイレ別
- オートロック
- 2階以上
- 都市ガス
- 室内洗濯機置場
- 駐車場あり
- エアコン付
- 独立洗面台
- 追い焚き風呂
- ペット相談可
- デザイナーズ
- 敷・礼・保0円
交通色がついているアイコンをクリックすると、本物件までの道順を見ることができます。
- 西帯広駅JR根室本線徒歩15分
- 大成駅JR根室本線バス8分
- 西24条2丁目徒歩10分
物件概要
所在階/建物の階建 1階(0106) / 地上5階建 総戸数 80戸 主要採光面 南 構造 鉄筋コンクリート(RC)造 契約期間 お問合せください 住宅保険 1万円 その他費用 その他 - 保険料:1万円
入居可能時期 即時 管理人 取引態様 仲介 物件No 85849728 設備・特徴 - バス/トイレ別
- エアコン付
- 室内洗濯機置場
- 追い焚き風呂
- ブロードバンド回線(光ファイバー等の高速インターネット)
- 独立洗面台
- 温水洗浄トイレ
- 2人入居相談可(ルームシェア含む)
- その他インターネット
- シニア相談可
- 都市ガス
備考 保証人・保証会社不要(審査によって連帯保証人が必要の場合あり) 短期解約違約金あり。1年未満の解約で賃料3ヶ月分。2年未満の解約で賃料2ヶ月分。 鍵交換代は貸主負担。短期解約違約金あり 1年未満解約は賃料等の3ヵ月分、2年未満は2ヵ月分 法人契約の場 学区色がついているアイコンをクリックすると、本物件までの道順を見ることができます。
-
ホームページはこちら
北海道知事 十勝(4) 第642号
アパマンショップ帯広西店 (有)帯広ドットコム 【WEB面談可】
※連合隊は物件情報の精度向上に努めています:「物件情報に誤りがある」「成約済みである」などお気付きの点がございましたらこちらよりご連絡ください。
写真枚数:18枚
外観
間取図
外観
内観
内観
内観
内観
その他
その他
その他
その他
その他
その他
その他
その他
その他
その他
帯広市・十勝管内のお部屋探しはアパマンショップ帯広西店へ!!
豊富な知識をもったスタッフが、数ある不動産情報からお客様にピッタリのお部屋をお探しします。駐車場完備しております。