ワザック函館・五稜郭行啓通り 804号室
ここに注目!【新築分譲マンション】函館の中心市街地五稜郭 立地・設備・セキュリティー・構造すべてにおいて「快適な暮らしを支えるワザック品質」です。玄関・リビング・洋室・洗面・トイレ・バスルーム・・ワンランク上の居住空間、エアコン、床暖房設置で夏も冬も快適・安心にお住まいいただけます。ご自身の目で本当の心地よさをご体感ください。函館のシンボル、五稜郭公園が徒歩圏内となっており、四季折々の移ろいを感じることができます。1階にはコンビニエンスストア、近隣に老舗百貨店丸井今井、無印良品大型店舗、スターバックスもございます。 即日案内、 リモート案内も可能ですのでお気軽にお申し付けください。ピタットハウス函館店 ㈱三建不動産:0138-54-9377 初期費用クレジット払い可能物件です(諸条件あり)
| 賃料・費用 |
19万円(+管理費等 1万円)
敷19万円(1ヶ月)礼19万円(1ヶ月)仲20万9,000円
|
|---|---|
| 間取・専有 |
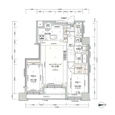
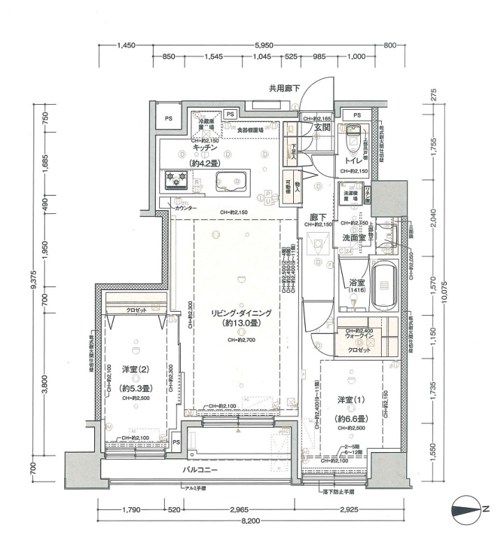
2LDK(65.35m²)└ LD13帖 洋室6.6帖 洋室5.3帖 K4.2帖
|
| 住所 | 北海道函館市本町8-23 |
| 交通 | 五稜郭公園前駅(徒歩2分)|函館駅(車で10分)道順を見る |
| 築年月 | 新築(2025年3月) |
| 駐車場 |
近隣月極駐車場
|
【WEB面談可】
空室確認、見学、詳細を知りたい方はこちら!
お電話の際は「連合隊の物件」とお伝えください。
情報掲載期限:あと28日(更新日 2025/12/13)
- 物件写真・概要
- 周辺地図
-
【WEB面談可】
空室確認、見学、詳細を知りたい方はこちら!おすすめポイント
- バス/トイレ別
- オートロック
- 2階以上
- 都市ガス
- 室内洗濯機置場
- 駐車場あり
- エアコン付
- 独立洗面台
- 追い焚き風呂
- ペット相談可
- デザイナーズ
- 敷金・礼金0円
- 近くて便利!徒歩5分以内にある施設
- 2分
2分- 5分
5分- 3分
3分- 周辺施設を地図で確認
交通色がついているアイコンをクリックすると、本物件までの道順を見ることができます。
物件概要
所在階/建物の階建 8階(804) / 地上13階建 総戸数 60戸 主要採光面 東 構造 鉄筋コンクリート(RC)造 バルコニー あり(6.21m²)契約期間 2年間 更新料/更新手数料 5,500円 住宅保険 1万8,000円(2年間) 入居可能時期 即時 管理人 日勤 取引態様 仲介 物件No 設備・特徴 - 都市ガス
- バス/トイレ別
- 浴室乾燥機
- 追い焚き風呂
- 温水洗浄トイレ
- シャワー付洗面化粧台
- 浴室暖房
- システムキッチン
- コンロ3口以上
- 食器洗乾燥機
- カウンターキッチン
- ガス暖房
- エコジョーズ
- オートロック
- モニタ付インターホン
- 防犯カメラ
- 宅配BOX
- BSアンテナ
- 分譲タイプ
- 駐輪場
- エレベーター
- 24時間換気システム
- 熱交換器
- 耐震
- フローリング
- 室内洗濯機置場
- ウォークインクローゼット
- シューズボックス
- エアコン付
- 床暖房
備考 ■保証会社必須【初回保証料:賃料の50%・更新料:800円/月・口座引落手数料:330円/月】 ■間取・設備については現況を優先させて頂きます 学区色がついているアイコンをクリックすると、本物件までの道順を見ることができます。
主な周辺施設色がついているアイコンをクリックすると、本物件までの道順を見ることができます。
- シエスタハコダテ約151m(徒歩2分)
- 北洋銀行五稜郭公園支店約84m(徒歩2分)
- 認定こども園杉の子保育園約69m(徒歩1分)
- 北海道銀行函館支店約101m(徒歩2分)
- セブンイレブン函館本町店約86m(徒歩2分)
- 函館本町郵便局約196m(徒歩3分)
- ファミリーマート五稜郭公園電停前店約218m(徒歩3分)
- 幼保連携型認定こども園認定こども園国の華幼稚園約332m(徒歩5分)
- 社会福祉法人函館厚生院函館中央病院約400m(徒歩5分)
- 社会福祉法人函館厚生院函館五稜郭病院約487m(徒歩7分)
対象となりうる支援制度
函館市
支援制度に関するお問合せは、不動産会社ではなく、自治体の公式ページまたは担当課までご確認ください。
上記リンクは、支援制度の対象条件を一定以上満たした物件に対し自動表示しています。
-
ホームページはこちら
北海道知事 渡島(9) 第722号
(株)三建不動産 【WEB面談可】- 加入団体
- (公社)北海道宅地建物取引業協会、(一社)全国賃貸不動産管理業協会、(公財)日本賃貸住宅管理協会
- 保証協会
- (公社)全国宅地建物取引業保証協会
- 公正取引協議会
- (一社)北海道不動産公正取引協議会
※連合隊は物件情報の精度向上に努めています:「物件情報に誤りがある」「成約済みである」などお気付きの点がございましたらこちらよりご連絡ください。
写真枚数:30枚



おかげさまで創業45年!不動産のことなら三建不動産へ是非ご相談下さい!
●営業時間● 平日:9:30~19:00 土曜・祝日:9:30~18:00 日曜:定休日 【売買物件の無料査定、買取相談も行っておりますので、不動産全般ご相談下さい!】 是非ご連絡お待ちしております!