堀川町15番街区 月極駐車場
ここに注目!競輪場通りすぐ近くです。他にはマックスバリュ堀川店やセブンイレブン函館堀川町店が近くにあります!★ピタットハウス函館店 ㈱三建不動産:0138-54-9377★ リモート案内も可能ですのでお気軽にご相談下さい♬ ★初期費用クレジット払い可能物件です(諸条件あり)★
| 賃料・費用 |
4,000円(+管理費等 なし)
敷なし礼なし仲4,400円
保証金:なし/敷引・償却金:なし
|
|---|---|
| 専有面積 | |
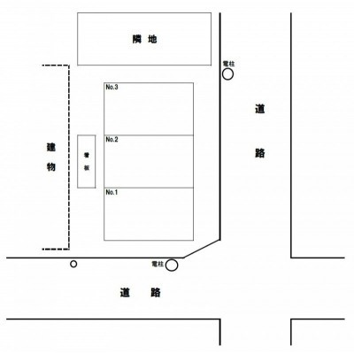
| 住所 | 北海道函館市堀川町43-18(地番) |
| 交通 | 函館駅(徒歩25分)|函館バス「堀川町中通」停 (徒歩2分)|昭和橋駅(徒歩6分)道順を見る |
【WEB面談可】
空室確認、見学、詳細を知りたい方はこちら!
お電話の際は「ホームページを見て」とお伝えください。
情報掲載期限:あと20日(更新日 2025/12/13)
- 物件写真・概要
- 周辺地図
-
【WEB面談可】
空室確認、見学、詳細を知りたい方はこちら!おすすめポイント
- 南道路
- 角地
- 都市ガス
- 上下水道
- 電気
- 近くて便利!徒歩5分以内にある施設
- 2分
2分- 5分
5分- 5分
5分- 周辺施設を地図で確認
交通色がついているアイコンをクリックすると、本物件までの道順を見ることができます。
物件概要
契約期間 更新料/更新手数料 なし 住宅保険 引渡し 即時 取引態様 仲介 物件No 設備・特徴 - 角地
備考 *ご契約には、連帯保証人が必要です。保証会社のご利用も出来ますのでお気軽にお問い合わせください。 学区色がついているアイコンをクリックすると、本物件までの道順を見ることができます。
主な周辺施設色がついているアイコンをクリックすると、本物件までの道順を見ることができます。
-
ホームページはこちら
北海道知事 渡島(9) 第722号
(株)三建不動産 【WEB面談可】- 加入団体
- (公社)北海道宅地建物取引業協会、(一社)全国賃貸不動産管理業協会、(公財)日本賃貸住宅管理協会
- 保証協会
- (公社)全国宅地建物取引業保証協会
- 公正取引協議会
- (一社)北海道不動産公正取引協議会
写真枚数:11枚



おかげさまで創業45年!不動産のことなら三建不動産へ是非ご相談下さい!
●営業時間● 平日:9:30~19:00 土曜・祝日:9:30~18:00 日曜:定休日 【売買物件の無料査定、買取相談も行っておりますので、不動産全般ご相談下さい!】 是非ご連絡お待ちしております!