北大通4丁目ビル
ここに注目!北大通4丁目 2018年築 テナント募集開始 ・契約期間:3年と記載がございますが要相談となります ・駐車場(都度確認) ・照明:非常用照明のみ有 ・コンセント:あり(追加はテナント工事) ・空調別途設置必要 ・警備システム(セコム):5,000円/区画(税別) ・共有用施設:1階トイレ・給湯室 ・引渡し:スケルトン渡し※床=スラブ、壁・天井=ボード素地 ・その他:専有部に係る水光熱費は別途検針の上費用が発生します。看板等の広告設置については要相談。
| 賃料・費用 |
16万248円
(+管理費等 2万6,708円)
坪単価:約6,603円/坪
敷43万7,040円礼なし仲16万248円
|
|---|---|
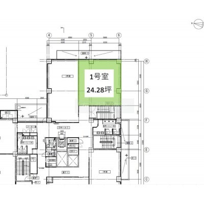
| 専有面積 | 80.26m² (24.27坪) |
| 住所 | 北海道釧路市北大通4丁目1番地1 |
| 交通 | 釧路駅(徒歩11分)|東釧路駅(徒歩41分)|「十字街(釧路市)」停(徒歩1分)|「十字街(釧路市)」停(徒歩2分)|「十字街(釧路市)」停(徒歩2分) |
| 階/階建 | 2階 / 6階建 |
| 築年月 | 築7年(2018年6月) |
| 駐車場 |
空き待ち
|
空室確認、見学、詳細を知りたい方はこちら!
お電話の際は「連合隊の物件」とお伝えください。
新着 情報掲載期限:あと27日(更新日 2026/3/16)
- 物件写真・概要
- 周辺地図
-
▼クリックで左の拡大画像が変わります。 すべての写真を拡大
空室確認、見学、詳細を知りたい方はこちら!
おすすめポイント
- 即入居可
交通色がついているアイコンをクリックすると、本物件までの道順を見ることができます。
- 釧路駅花咲線、JR釧網本線、JR根室本線徒歩11分(約900m)
- 東釧路駅JR釧網本線、花咲線徒歩41分(約3.3km)
- 「十字街(釧路市)」停徒歩1分
- 「十字街(釧路市)」停徒歩2分(約100m)
- 「十字街(釧路市)」停徒歩2分(約100m)
物件概要
所在階/建物の階建 2階(2階 1号室) / 地上6階建 主要採光面 南 構造 鉄筋コンクリート(RC)造 間取り 契約期間 3年間 権利金 住宅保険 引渡し 即時 管理人 取引態様 仲介 物件No 設備・特徴 - その他:エレベーター・電気
備考 事務所 主な周辺施設色がついているアイコンをクリックすると、本物件までの道順を見ることができます。
-
ホームページはこちら
北海道知事 釧路(15) 第104号
ピタットハウス釧路店 (有)北陽商事〒085-0022
TEL:0154-68-5757(代表電話)
TEL:0154-65-6267(ピタットハウス釧路店管理センター)
FAX:0154-68-5781(賃貸・売買専用)
営業時間:10:00~18:00
定休日:毎週 日曜
- 加入団体
- (公社)北海道宅地建物取引業協会
- 保証協会
- (公社)全国宅地建物取引業保証協会
- 公正取引協議会
- (一社)北海道不動産公正取引協議会
※連合隊は物件情報の精度向上に努めています:「物件情報に誤りがある」「成約済みである」などお気付きの点がございましたらこちらよりご連絡ください。
写真枚数:14枚
北海道労働金庫 釧路支店まで131m
サブウェイ釧路北大通店まで118m
セブンイレブン 釧路北大通店まで192m
北大通6郵便局まで178m
弊社は、昭和45年に創業し、この釧路の街で実績と信頼を積み重ねてきた「あなたの街の不動産やさん」です。
私どもは、この会社の伝統を守りつつ、今までに培ってきた経験を最大限に生かし時代の変化に合わせて革新し、常に新しさを取り入れ、お客様に信頼され、選ばれる 「あなたの街の不動産やさん」を目指して参ります。賃貸仲介部門は1月末から3月末まで無休で営業します。お気軽にお問合せくださいませ。全力でピタットお探しいたします!!