四條ハイツ1階(昭和町4丁目)
ここに注目!釧路市昭和町に、新しい暮らしを始める皆様にぴったりの2DKマンション「四條ハイツ1階」をご紹介します。月々36,000円、礼金なしで初期費用を抑えられるのが嬉しいポイントです。 何と言っても魅力は、くしろバス「昭和南3丁目」停まで徒歩1分の抜群の立地!セブンイレブンやセイコーマート、セカンドストリートも徒歩3分圏内。スーパーのフクハラやユニクロ、トイザらスなど、お買い物施設も充実しており、日々の生活がとても便利になりますよ。 広々とした10帖のダイニングキッチンは、ご家族やパートナーとの団らんの時間を豊かにしてくれるでしょう。洋室と和室があり、ライフスタイルに合わせて活用いただけます。バス・トイレ別で快適、無料駐車場も1台付いています。ペット相談可、2人入居やシニアの方もご相談いただけますので、多様な暮らしに寄り添えます。 現在空室ですので、いつでも内覧可能です。ぜひ一度、この快適な住まいをご覧ください。
| 賃料・費用 |
3万6,000円(+管理費等 -円)
敷3万6,000円(1ヶ月)礼なし仲3万9,600円
|
|---|---|
| 間取・専有 |
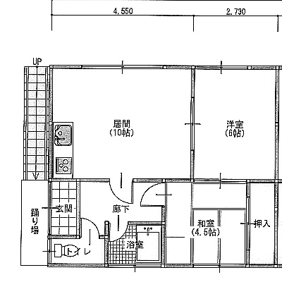
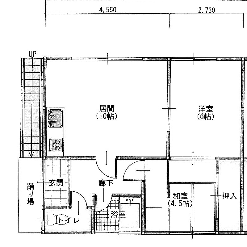
2DK(45.36m²)└ 1階:DK10帖 洋室6帖 和室4.5帖
|
| 住所 | 北海道釧路市昭和町4-6-11 |
| 交通 | くしろバス 「昭和南3丁目」停(徒歩1分) |
| 築年月 | 築48年(1977年5月) |
| 駐車場 |
あり 駐車可能台数:1台
|
空室確認、見学、詳細を知りたい方はこちら!
お電話の際は「連合隊の物件」とお伝えください。
情報掲載期限:あと26日(更新日 2026/3/19)
- 物件写真・概要
- 周辺地図
-
おすすめポイント
- バス/トイレ別
- オートロック
- 2階以上
- 都市ガス
- 室内洗濯機置場
- 駐車場あり
- エアコン付
- 独立洗面台
- 追い焚き風呂
- ペット相談可
- デザイナーズ
- 敷金・礼金0円
- 近くて便利!徒歩5分以内にある施設
- 2分
2分- 周辺施設を地図で確認
交通
- くしろバス 「昭和南3丁目」停徒歩1分
物件概要
所在階/建物の階建 1階(102) / 地上2階建 総戸数 4戸 主要採光面 東 構造 木造 契約期間 2年間 更新料/更新手数料 なし 住宅保険 2万2,000円(2年間) 入居可能時期 即時 管理人 取引態様 仲介 物件No 設備・特徴 - 角部屋
- 日当り良好
- 照明器具付
- バス/トイレ別
- シャワー付洗面化粧台
- 都市ガス
- 灯油暖房
- ペット相談可
- 2人入居相談可(ルームシェア含む)
- シニア相談可
- 家賃保証会社利用可
備考 現在空室ですので内覧即可能です。お問い合わせは09082743510佐藤まで ご連絡ください。 学区色がついているアイコンをクリックすると、本物件までの道順を見ることができます。
主な周辺施設色がついているアイコンをクリックすると、本物件までの道順を見ることができます。
-
ホームページはこちら北海道知事 釧路(14) 第153号
(有)佐藤産業〒084-0907
TEL:0154-51-5636
TEL:090-8274-3510
FAX:0154-52-5155
営業時間:9:00~18:00
定休日:毎週 日曜
- 加入団体
- (公社)北海道宅地建物取引業協会
- 保証協会
- (公社)全国宅地建物取引業保証協会
- 公正取引協議会
- (一社)北海道不動産公正取引協議会
※連合隊は物件情報の精度向上に努めています:「物件情報に誤りがある」「成約済みである」などお気付きの点がございましたらこちらよりご連絡ください。
写真枚数:16枚
釧路市・釧路町近郊の不動産のご相談は弊社へお任せください!
地場に密着した弊社スタッフが皆様のお悩みを解決! 不動産の売却・購入・賃貸・管理は勿論、それらに関連することでも お気軽にご相談ください!連絡お待ちしております。