ブリック釧路末広町
ここに注目!2024年10月内外装リノベーション済。
| 賃料・費用 |
17万5,252円
(+管理費等 -円)
坪単価:約7,700円/坪
敷63万7,280円礼なし仲17万5,252円
|
|---|---|
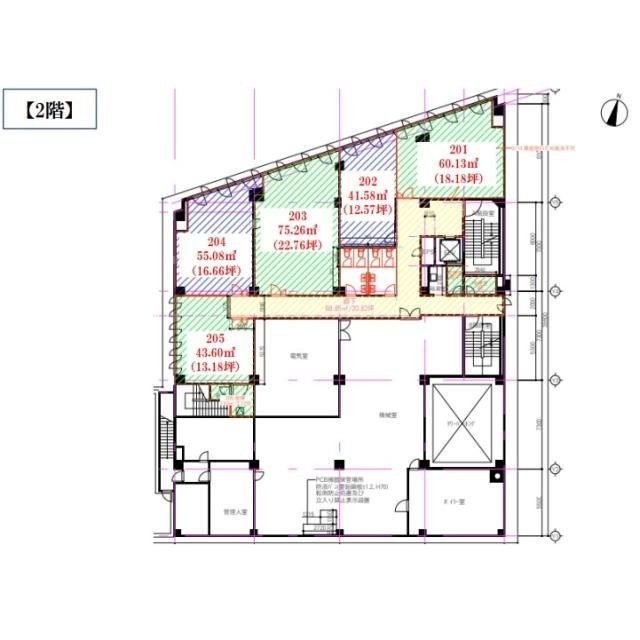
| 専有面積 | 75.26m² (22.76坪) |
| 住所 | 北海道釧路市末広町9丁目2-5 |
| 交通 | 釧路駅(徒歩8分)|釧路駅(車で2分)|「十字街」停(徒歩4分) |
| 階/階建 | 2階 / 6階建 |
| 築年月 | 築46年(1979年11月) |
| 駐車場 |
あり (1万1,000円/台) 駐車可能台数:2台
|
【WEB面談可】
空室確認、見学、詳細を知りたい方はこちら!
お電話の際は「連合隊の物件」とお伝えください。
情報掲載期限:あと21日(更新日 2025/12/9)
- 物件写真・概要
- 周辺地図
-
【WEB面談可】
空室確認、見学、詳細を知りたい方はこちら!おすすめポイント
- 即入居可
- 複数路線利用可
- 駐車2台以上可
- OAフロア
交通色がついているアイコンをクリックすると、本物件までの道順を見ることができます。
- 釧路駅花咲線、JR釧網本線、JR根室本線徒歩8分(約600m)
- 釧路駅花咲線、JR釧網本線、JR根室本線駅近!車2分(約600m)
- 「十字街」停徒歩4分(約300m)
物件概要
所在階/建物の階建 2階(203) / 地上6階建 主要採光面 北 構造 鉄筋コンクリート(RC)造 間取り 契約期間 2年間 権利金 住宅保険 その他費用 その他 - 館銘板作成費用:2万7,500円
- 鍵追加費用(1本):2,200円
引渡し 即時 管理人 取引態様 仲介 物件No 000005443537 設備・特徴 - セントラル空調
- 複数路線利用可
- OAフロア
- その他:ウォシュレット・公共下水・エレベーター・上下水道・電気
備考 警備カード(1枚) 2750円(初期) 駐車場2台目 11000円(月額) 事務所 主な周辺施設色がついているアイコンをクリックすると、本物件までの道順を見ることができます。
-
ホームページはこちら
北海道知事 釧路(7) 第418号
エイブルネットワーク釧路駅前店 (株)セムス 【WEB面談可】- 加入団体
- (公財)日本賃貸住宅管理協会、全国賃貸管理ビジネス協会
- 保証協会
- (公社)全国宅地建物取引業保証協会
※連合隊は物件情報の精度向上に努めています:「物件情報に誤りがある」「成約済みである」などお気付きの点がございましたらこちらよりご連絡ください。
写真枚数:6枚
釧路市立城山小学校まで1539m
鶴ケ岱公園まで1514m
ビッグハウス旭町店まで457m
ザ・ビッグ 川北店まで863m
お部屋探しの窓口! 豊富な物件 親切な対応 お気軽にご相談下さい!