武佐高台地区車庫付き貸家
ここに注目!釧路市武佐に、ご家族の新生活を温かく包み込む一戸建てのご紹介です。広々115.95㎡の4LDKは、南向きで日当たりも良好。毎日を明るく快適にお過ごしいただけます。 特筆すべきは、RC造の頑丈な車庫!SUVも入る広さで2台駐車可能ですので、お車を複数お持ちのご家庭も安心ですね。 室内は、新品のシステムキッチンやエコジョーズ採用のガスセントラル暖房など、快適なリフォームが施されています。バス・トイレ別、追い焚き機能付きの浴室、独立洗面台も完備。全居室収納に加え、ロフトや物置もあり、荷物が多いご家庭もすっきり片付きます。 バス停まで徒歩4分と近く、周辺にはコンビニやスーパー、公園、学校も揃い、日々の暮らしに便利な環境です。専用庭でガーデニングを楽しむのも良いですね。この機会に、理想のマイホーム生活を始めてみませんか? お問い合わせは不動産連合隊・当社ホームページ・当社インスタグラムDMにて受付中です!お気軽にご連絡ください♪
| 賃料・費用 |
7万2,000円(+管理費等 -円)
敷7万2,000円(1ヶ月)礼なし仲7万9,200円
保証金:なし/敷引・償却金:なし
|
|---|---|
| 間取・専有 |
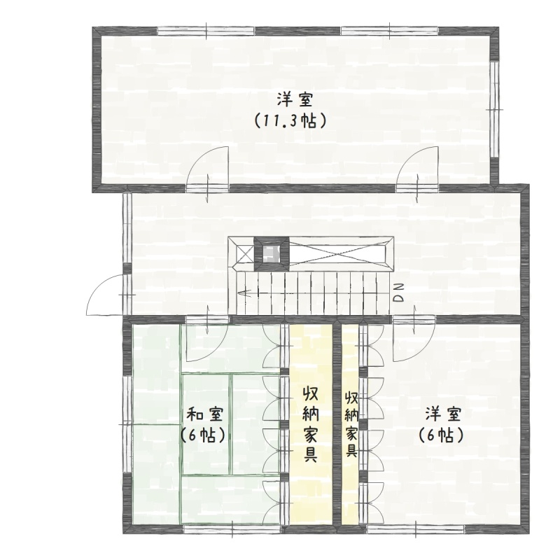
4LDK(115.95m²)└ 1階:LD13帖 K3.75帖 洋室4.5帖 / 2階:洋室11.25帖 洋室6帖 和室6帖
|
| 住所 | 北海道釧路市武佐1-35-20 |
| 交通 | くしろバス 「武佐1丁目」停(徒歩4分) |
| 築年月 | 築46年(1979年10月) |
| 駐車場 |
あり 駐車可能台数:2台
RC造車庫内2台縦列駐車可能(SUV車入ります) |
空室確認、見学、詳細を知りたい方はこちら!
お電話の際は「連合隊の物件」とお伝えください。
情報掲載期限:あと21日(更新日 2026/5/2)
- 物件写真・概要
- 周辺地図
-
▼クリックで左の拡大画像が変わります。 すべての写真を拡大
-
外観 右側は車庫(縦列で2台入ります)
-
1F:間取り図
-
2F:間取り図
-
外観(庭側から撮影)
-
外観(道路より撮影)
-
物置
-
RC造車庫内部 ※縦列で2台駐車可能
-
ハリアークラスの高さのSUVは入庫出来ます(車庫高さ1950㎜)
-
断熱親子玄関ドア(電子錠付き)
-
電子錠室内スイッチ
-
リビング(クロス張替済)
-
リビング・ダイニング(クロス張替済)
-
エアコン新設(リビング)
-
朝日の入る明るいキッチン
-
システムキッチン(新品です)
-
ガスコンロ
-
1階:洋室(元和室)
-
洗面台
-
トイレ(タンクレス便器)
-
浴室
-
浴槽
-
暖房パネルヒーター ※タオル掛けにもなります。
-
ガスエコジョーズ ※暖房給湯の省エネに貢献
-
2F:洋室
-
2F:寝室
-
2F:和室
-
2F:階段ホール ※上部はロフト
-
ロフトスペース
-
暖房ファンコンベクター
-
カメラホン
空室確認、見学、詳細を知りたい方はこちら!
おすすめポイント
- オール電化
- 南向き
- 角地
- 都市ガス
- 車庫あり
- 駐車2台以上可
- エアコン付
- 平屋
- 追い焚き風呂
- ペット相談可
- リフォーム済み
- 敷金・礼金0円
交通
- くしろバス 「武佐1丁目」停徒歩4分(約268m)
物件概要
建物の階建 地上2階建 主要採光面 南 構造 木造 契約期間 2年間 更新料/更新手数料 なし 住宅保険 2万2,000円(2年間) その他費用 その他 - 保証会社初回委託料:3万6,000円
- 保証会社更新料【1年毎】:1万円
- 保証会社手数料【毎月賃料と一緒に引き落とし】:880円
入居可能時期 即時 管理人 無 取引態様 代理 物件No 修繕履歴 - 2019年8月頃に部分的にリフォームしています。施工内容:暖房給湯器具:ガスセントラル暖房エコジョーズ採用
- 2011年12月頃に物件全体を部分的にリフォームしています。施工内容:屋根張替え
- 2025年12月頃に部分的にリフォームしています。施工内容:システムキッチン交換
- 2026年3月頃に部分的にリフォームしています。施工内容:エアコン設置
設備・特徴 - 車庫あり
- 日当り良好
- 照明器具付
- ロフト付
- 専用庭
- 室内洗濯機置場
- 全居室収納あり
- バス/トイレ別
- 温水洗浄トイレ
- 独立洗面台
- 追い焚き風呂
- 浴室に窓
- ガスコンロ
- コンロ3口以上
- システムキッチン
- 都市ガス
- エアコン付
- ガス暖房
- エコジョーズ
- モニタ付インターホン
- ディンプルキー
- 物置
- 玄関フード
- 出窓
- シューズボックス
- 家賃保証会社利用可
- フローリング
- オートロック
備考 学区色がついているアイコンをクリックすると、本物件までの道順を見ることができます。
主な周辺施設色がついているアイコンをクリックすると、本物件までの道順を見ることができます。
-
-

この物件の担当者 工藤(くどう)
主にリゾート物件・収益物件を担当しています。
※連合隊は物件情報の精度向上に努めています:「物件情報に誤りがある」「成約済みである」などお気付きの点がございましたらこちらよりご連絡ください。
写真枚数:30枚
外観 右側は車庫(縦列で2台入ります)
1F:間取り図
2F:間取り図
外観(庭側から撮影)
外観(道路より撮影)
物置
RC造車庫内部 ※縦列で2台駐車可能
ハリアークラスの高さのSUVは入庫出来ます(車庫高さ1950㎜)
断熱親子玄関ドア(電子錠付き)
電子錠室内スイッチ
リビング(クロス張替済)
リビング・ダイニング(クロス張替済)
エアコン新設(リビング)
朝日の入る明るいキッチン
システムキッチン(新品です)
ガスコンロ
1階:洋室(元和室)
洗面台
トイレ(タンクレス便器)
浴室
浴槽
暖房パネルヒーター ※タオル掛けにもなります。
ガスエコジョーズ ※暖房給湯の省エネに貢献
2F:洋室
2F:寝室
2F:和室
2F:階段ホール ※上部はロフト
ロフトスペース
暖房ファンコンベクター
カメラホン
あなたの夢につくします!
創業22年になります。お客様との出会いを大切にし、皆様に安心と優しさそして喜びをお届けできるような会社を目指し社員全員で日々精進努力を重ねております! お家のことでお困りのことは是非ご相談ください♪ 注文住宅・建売住宅・中古住宅・リフォーム・賃貸などおうちのことならつくしグッド住まいるまで!