ユーハイツ
ここに注目!「ユーハイツ」は、くしろバス「法務局坂下」停から徒歩3分と、毎日の通勤・通学に便利な立地が魅力です。広々とした74.92m²の3LDKは、ご家族でのびのびと暮らしたい方にぴったり。最上階の南向きで、明るい日差しが差し込む気持ちの良い空間が広がります。 お車をお持ちの方には嬉しい無料駐車場が2台分完備。お部屋には都市ガス、温かい灯油暖房、バス・トイレ別で温水洗浄トイレも備わり、快適な毎日をサポートします。全居室収納やシューズボックス、物置など収納スペースも豊富で、お部屋をすっきりと保てますね。 周辺にはコンビニや郵便局、小学校も近く、生活利便性も良好。新しい暮らしを「ユーハイツ」で始めてみませんか?
| 賃料・費用 |
6万円(+管理費等 -円)
敷6万円(1ヶ月)礼なし仲6万6,000円
|
|---|---|
| 間取・専有 |
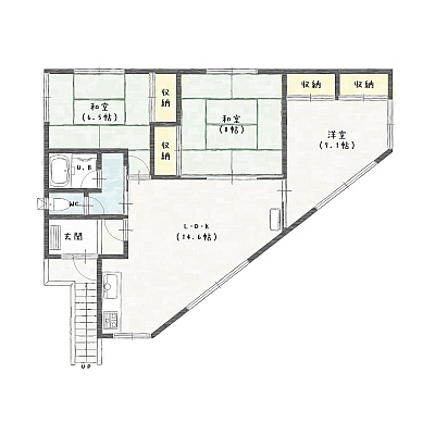
3LDK(74.92m²)└ LDK14.6帖 洋室7.1帖 和室8帖 和室6.5帖
|
| 住所 | 北海道釧路市宮本1丁目2番8号 |
| 交通 | くしろバス「法務局坂下」停 (徒歩3分) |
| 築年月 | 築40年(1986年3月) |
| 駐車場 |
あり 駐車可能台数:2台
|
空室確認、見学、詳細を知りたい方はこちら!
お電話の際は「連合隊の物件」とお伝えください。
情報掲載期限:あと21日(更新日 2026/5/2)
- 物件写真・概要
- 周辺地図
-
空室確認、見学、詳細を知りたい方はこちら!
おすすめポイント
- バス/トイレ別
- オートロック
- 2階以上
- 都市ガス
- 室内洗濯機置場
- 駐車2台以上可
- エアコン付
- 独立洗面台
- 追い焚き風呂
- ペット相談可
- デザイナーズ
- 敷金・礼金0円
- 近くて便利!徒歩5分以内にある施設
- 5分
5分- 5分
5分- 周辺施設を地図で確認
交通
- くしろバス「法務局坂下」停 徒歩3分
物件概要
所在階/建物の階建 2階(2階) / 地上2階建 総戸数 2戸 主要採光面 南 構造 木造 契約期間 2年間 住宅保険 2万2,000円(2年間) その他費用 その他 - 保証会社保証料:3万円
- 保証会社更新料【1年毎】:1万円
- 保証会社手数料【毎月賃料と一緒に引き落とし】:880円
入居可能時期 即時 管理人 無 取引態様 代理 物件No 設備・特徴 - 物置
- 最上階
- 日当り良好
- 照明器具付
- 室内洗濯機置場
- シューズボックス
- 全居室収納あり
- バス/トイレ別
- 温水洗浄トイレ
- 都市ガス
- 灯油暖房
備考 ・ガス給湯 学区色がついているアイコンをクリックすると、本物件までの道順を見ることができます。
主な周辺施設色がついているアイコンをクリックすると、本物件までの道順を見ることができます。
-
※連合隊は物件情報の精度向上に努めています:「物件情報に誤りがある」「成約済みである」などお気付きの点がございましたらこちらよりご連絡ください。
写真枚数:21枚
外観
物置
あなたの夢につくします!
創業22年になります。お客様との出会いを大切にし、皆様に安心と優しさそして喜びをお届けできるような会社を目指し社員全員で日々精進努力を重ねております! お家のことでお困りのことは是非ご相談ください♪ 注文住宅・建売住宅・中古住宅・リフォーム・賃貸などおうちのことならつくしグッド住まいるまで!