サンモリンオフィ
ここに注目!JR釧路駅まで徒歩2分!アクセス良好な路面店舗物件のご紹介です。 角地の開放的な前面ガラス張りで人目を引く外観は、貴社のビジネスを効果的にアピールできるでしょう。小売・物販、美容・健康・介護、事務所など幅広い業種におすすめです。(軽飲食もご相談可。) ガス暖房、照明器具、給排水設備が完備。開業時の初期費用を抑えやすいのも魅力です。 徒歩2分に「和商市場」、徒歩1分にコンビニ。働く方にもお客様にも嬉しい便利な環境です。 釧路駅前で、新しいビジネスをスタートしませんか?まずはお気軽にお問い合わせください。
| 賃料・費用 |
5万5,000円
(+管理費等 -円)
坪単価:約5,484円/坪
敷なし仲5万5,000円
保証金:15万円
|
|---|---|
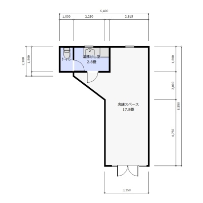
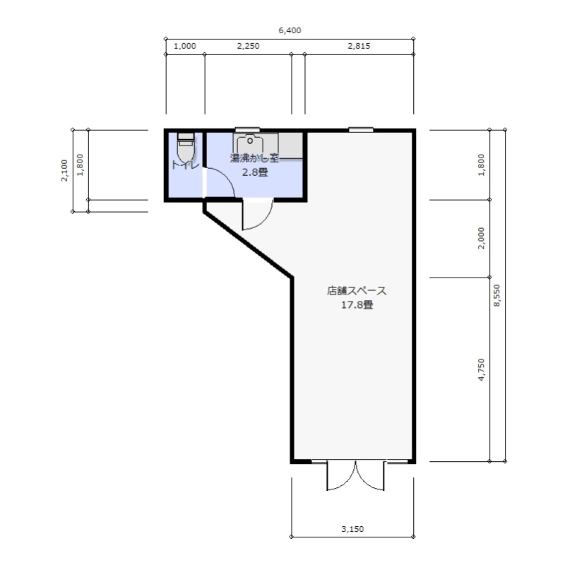
| 専有面積 | 33.16m² (10.03坪) |
| 住所 | 北海道釧路市黒金町14-9-1 |
| 交通 | 釧路駅(徒歩2分)道順を見る |
| 階/階建 | 路面 / 3階建 |
| 築年月 | 築33年(1993年1月) |
| 駐車場 |
近隣月極駐車場 (5,500円/台) 駐車可能台数:1台
|
空室確認、見学、詳細を知りたい方はこちら!
お電話の際は「連合隊の物件」とお伝えください。
情報掲載期限:あと26日(更新日 2026/1/31)
- 物件写真・概要
- 周辺地図
-
空室確認、見学、詳細を知りたい方はこちら!
おすすめポイント
- 路面店
- 駅徒歩3分以内
- 駅前立地
- 幹線道路沿い
- 出店するなら…この業種がおすすめ!
- 飲食全般(重飲食含む)

- 喫茶・カフェ(軽飲食)

- バー・クラブ・スナック

- 小売・物販

- 美容・健康・介護

- 医療

- 教育・スクール

- 事務所

- アミューズメント

※出店不可の業種:重飲食(軽飲食は相談可)、水商売、アミューズメント
交通色がついているアイコンをクリックすると、本物件までの道順を見ることができます。
物件概要
所在階/建物の階建 1階(102) / 地上3階建 主要採光面 東 構造 鉄骨造 間取り その他1階:その他10.03帖 契約期間 2年間 権利金 住宅保険 出店推奨業種 小売・物販、美容・健康・介護、事務所 出店不可業種 重飲食(軽飲食は相談可)、水商売、アミューズメント 土地面積 489.81m² (148.16坪)(公簿)接道状況 角地 用途地域 - 商業地域(建ぺい率:80% / 容積率:600%)
その他費用 その他 - 保証会社初回保証料:5万5,000円
- 保証会社更新保証料(1年毎):1万円
引渡し 相談 管理人 無 取引態様 仲介 物件No 設備・特徴 - 駅前立地
- 幹線道路沿い
- 照明器具付
- ガス暖房
- ガス設備
- 給排水設備
- 路面店
- 前面ガラス張り
備考 主な周辺施設色がついているアイコンをクリックすると、本物件までの道順を見ることができます。
-
※連合隊は物件情報の精度向上に努めています:「物件情報に誤りがある」「成約済みである」などお気付きの点がございましたらこちらよりご連絡ください。
写真枚数:13枚
創業30年の建築不動産会社です。釧路本社・札幌支店があります。
不動産売買・賃貸の仲介を中心として、インテリアやリフォームのプラン設計など住まいに関わる様々なニーズに応えています。特に中古住宅のリフォーム実績には定評があります。涼しい夏の長期滞在事業も展開中。