鳥取大通7丁目 貸店舗・事務所
ここに注目!鳥取大通沿いに出ました!!200坪超えの大型店舗!!ひろびろとしたワンフロアなので使い勝手ヨシ★お好みにレイアウト出来ちゃいます☆ショールームや物販店などに最適ですよ~!!駐車スペースには約20台程駐車可能。(※一部賃貸中です) 内見可能ですので、お気軽にお問合せ下さいね(^^♪
| 賃料・費用 |
77万円
(+管理費等 -円)
坪単価:約3,834円/坪
敷210万円礼なし仲77万円
|
|---|---|
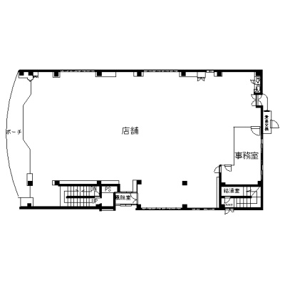
| 専有面積 | 664.06m² (200.87坪) |
| 住所 | 北海道釧路市鳥取大通7-2-8 |
| 交通 | くしろバス 「西郵便局」停(徒歩2分)|阿寒バス 「西郵便局」停(徒歩2分) |
| 階/階建 | 路面 / 2階建(地下1階) |
| 築年月 | 築35年(1990年12月) |
| 駐車場 |
あり 駐車可能台数:20台
敷地内約20台駐車可能です。 ※一部賃貸中 |
空室確認、見学、詳細を知りたい方はこちら!
お電話の際は「連合隊の物件」とお伝えください。
情報掲載期限:あと24日(更新日 2026/1/23)
- 物件写真・概要
- 周辺地図
-
空室確認、見学、詳細を知りたい方はこちら!
おすすめポイント
- 路面店
- 複数路線利用可
- 商店街に面す
- 幹線道路沿い
- 駐車2台以上可
- 出店するなら…この業種がおすすめ!
- 飲食全般(重飲食含む)

- 喫茶・カフェ(軽飲食)

- バー・クラブ・スナック

- 小売・物販

- 美容・健康・介護

- 医療

- 教育・スクール

- 事務所

- アミューズメント

交通
- くしろバス 「西郵便局」停徒歩2分
- 阿寒バス 「西郵便局」停徒歩2分
物件概要
所在階/建物の階建 1階 / 地上2階 地下1階建 主要採光面 北 構造 鉄骨造 間取り 契約期間 3年間 権利金 住宅保険 出店推奨業種 小売・物販 出店不可業種 土地面積 1881.04m² (569.01坪)(公簿)接道状況 三方 - 北側幅22.00mの公道に接道
- 西側幅8.00mの公道に接道
- 南側幅8.00mの公道に接道
用途地域 - 近隣商業地域(建ぺい率:80% / 容積率:200%)
- 準工業地域(建ぺい率:60% / 容積率:200%)
引渡し 相談 管理人 取引態様 仲介 物件No 設備・特徴 - 複数路線利用可
- 商店街に面す
- 幹線道路沿い
- 照明器具付
- ビルトインエアコン
- 路面店
- 前面ガラス張り
備考 主な周辺施設色がついているアイコンをクリックすると、本物件までの道順を見ることができます。
-
※連合隊は物件情報の精度向上に努めています:「物件情報に誤りがある」「成約済みである」などお気付きの点がございましたらこちらよりご連絡ください。
写真枚数:30枚
外観写真
釧路西郵便局
セブンイレブン釧路鳥取大通8丁目店
ザ・ビッグ鳥取大通店&ツルハドラッグ釧路鳥取店
鳥取西小学校
「相談できる人がいますか、不動産のこと。」
昭和34年の創業以来63年間当社はこのキャッチフレーズのもと、地域に根ざした不動産会社として常にお客様ひとりひとりと正面から向き合い、最適なアドバイスと最善の情報提供をさせていただくことを心掛けています。