アパート|賃貸
タピオラ
ここに注目!経済的な都市ガス☆医大・スーパー・コンビニ近いです!!
| 賃料・費用 |
4万円(+管理費等 -円)
敷4万円(1ヶ月)仲4万4,000円
|
|---|---|
| 間取・専有 |
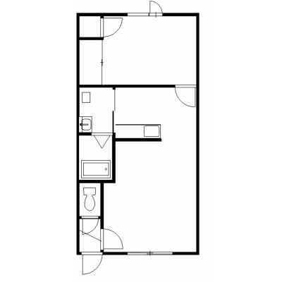
1LDK(38.07m²)└ LD8.5帖 K3帖 洋室6帖
|
| 住所 | 北海道旭川市旭神1条5丁目 |
| 交通 | 旭川電気軌道「旭神2-5」停 (徒歩3分) |
| 築年月 | 築29年(1996年5月) |
| 駐車場 |
あり (1,000円/台) 駐車可能台数:1台
|
空室確認、見学、詳細を知りたい方はこちら!
3月は引越シーズンです。お問合せはお早めに!
お電話の際は「連合隊の物件」とお伝えください。
0166-74-3636
(株)m&m
情報掲載期限:あと22日(更新日 2026/3/13)
- 物件写真・概要
- 周辺地図
-
おすすめポイント
- バス/トイレ別
- オートロック
- 2階以上
- 都市ガス
- 室内洗濯機置場
- 駐車場あり
- エアコン付
- 独立洗面台
- 追い焚き風呂
- ペット相談可
- デザイナーズ
- 敷金・礼金0円
交通
- 旭川電気軌道「旭神2-5」停 徒歩3分
物件概要
所在階/建物の階建 2階(202) / 地上2階建 総戸数 8戸 主要採光面 構造 木造 契約期間 2年間 更新料/更新手数料 1万1,000円 住宅保険 1万5,000円(2年間) その他費用 毎月の費用 - 24時間管理費:1,100円
一時金 - 退去時清掃料:2万7,500円
その他 - 退去時暖房機清掃料:2万2,000円
入居可能時期 即時(修繕待) 管理人 取引態様 仲介 物件No 設備・特徴 - 照明器具付
- 室内洗濯機置場
- フローリング
- バス/トイレ別
- 独立洗面台
- シャワー付洗面化粧台
- 都市ガス
- エアコン付
- 灯油暖房
- BSアンテナ
- ブロードバンド回線(光ファイバー等の高速インターネット)
- 家賃保証会社利用可
備考 学区色がついているアイコンをクリックすると、本物件までの道順を見ることができます。
主な周辺施設色がついているアイコンをクリックすると、本物件までの道順を見ることができます。
-
北海道知事 上川(1) 第1243号
(株)m&m
※連合隊は物件情報の精度向上に努めています:「物件情報に誤りがある」「成約済みである」などお気付きの点がございましたらこちらよりご連絡ください。
写真枚数:14枚
売買・賃貸・管理のことはm&mへ!
お客様一人一人のご希望に沿ったお部屋をお探しします! ささいなご相談・ご質問もなんなりとお申し付けください。 厳選物件のみ掲載していますが、その他の旭川市内・近郊の物件もご紹介可能です!