アルファベルB
ここに注目!中心部近くで生活便利♪ お風呂は広々一坪風呂♪ エアコン、ウォシュレット、モニターホン完備♪ 嬉しいインターネット無料♪ プラス1部屋感覚のロフト付♪ 何かと気楽な角部屋です♪
この物件は、今お申込みをしても、契約開始および賃料の発生は 2026年3月からにすることができます。
新入生・新社会人の方が、物件がなくなりやすい時期を前に早めに部屋を確保できる利点があります。違約金などは不動産会社にお問合せください。
| 賃料・費用 |
7万5,000円(+管理費等 なし)
敷なし礼なし仲8万2,500円
保証金:なし
|
|---|---|
| 間取・専有 |
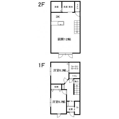
2LDK(81.52m²)└ 1階:洋室6.3帖 洋室6.2帖 / 2階:LD12帖 K3帖
|
| 住所 | 北海道深川市五条15番10号 |
| 交通 | 深川駅(徒歩15分)|空知中央バス「深川市役所」停 (徒歩3分)道順を見る |
| 築年月 | 築12年(2013年3月) |
| 駐車場 |
あり (3,000円/台) 駐車可能台数:2台
駐車並列2台で3000円 駐車契約有りの場合は、家賃78,000円(駐車料込) |
空室確認、見学、詳細を知りたい方はこちら!
お電話の際は「連合隊の物件」とお伝えください。
情報掲載期限:あと7日(更新日 2025/11/17)
- 物件写真・概要
- 周辺地図
-
▼クリックで左の拡大画像が変わります。 すべての写真を拡大
空室確認、見学、詳細を知りたい方はこちら!
おすすめポイント
- バス/トイレ別
- オートロック
- 2階以上
- 都市ガス
- 室内洗濯機置場
- 駐車2台以上可
- エアコン付
- 独立洗面台
- 追い焚き風呂
- ペット相談可
- デザイナーズ
- 敷・礼・保0円
- 近くて便利!徒歩5分以内にある施設
- 4分
4分- 周辺施設を地図で確認
交通色がついているアイコンをクリックすると、本物件までの道順を見ることができます。
- 深川駅JR留萌本線、JR函館本線徒歩15分(約1.2km)
- 空知中央バス「深川市役所」停 徒歩3分(約200m)
物件概要
所在階/建物の階建 101 / 地上2階建 総戸数 2戸 主要採光面 構造 木造 契約期間 2年間 家賃スライド あり(2026年3月から賃料発生可) 住宅保険 入居可能時期 即時 管理人 取引態様 仲介 物件No 542-196 設備・特徴 - ロフト付
- メゾネット
- 角部屋
- 照明器具付
- 室内洗濯機置場
- フローリング
- 出窓
- 納戸・トランクルーム
- ウォークインクローゼット
- シューズボックス
- バス/トイレ別
- トイレ2ヶ所以上
- 温水洗浄トイレ
- 独立洗面台
- シャワー付洗面化粧台
- 浴室1坪以上
- ガスコンロ
- システムキッチン
- LPガス
- エアコン付
- シーリングファン
- 灯油暖房
- モニタ付インターホン
- インターネット利用料無料
- BSアンテナ
- テンキーロック
備考 ※保証会社との契約が必要です。 ※入退去時の諸費用等に関しましては、弊社スタッフまでお問合せ下さいませ。 ※外観・内観・間取図・設備等は現状優先と致します。 学区色がついているアイコンをクリックすると、本物件までの道順を見ることができます。
主な周辺施設色がついているアイコンをクリックすると、本物件までの道順を見ることができます。
-
ホームページはこちら
北海道知事 上川(8) 第835号
(株)フルハウス- 加入団体
- (公社)北海道宅地建物取引業協会、(公財)日本賃貸住宅管理協会、全国賃貸管理ビジネス協会
- 保証協会
- (公社)全国宅地建物取引業保証協会
- 公正取引協議会
- (一社)北海道不動産公正取引協議会
※連合隊は物件情報の精度向上に努めています:「物件情報に誤りがある」「成約済みである」などお気付きの点がございましたらこちらよりご連絡ください。
写真枚数:22枚
反転タイプのお部屋の写真です
反転タイプのお部屋の写真です
反転タイプのお部屋の写真です
反転タイプのお部屋の写真です
反転タイプのお部屋の写真です
反転タイプのお部屋の写真です
反転タイプのお部屋の写真です
反転タイプのお部屋の写真です
反転タイプのお部屋の写真です
反転タイプのお部屋の写真です
反転タイプのお部屋の写真です
反転タイプのお部屋の写真です
反転タイプのお部屋の写真です
反転タイプのお部屋の写真です
反転タイプのお部屋の写真です
反転タイプのお部屋の写真です
反転タイプのお部屋の写真です
反転タイプのお部屋の写真です
反転タイプのお部屋の写真です
反転タイプのお部屋の写真です