セレーノ本通
ここに注目!☆エアコン付き☆ウォークインクローゼットが付いて収納便利☆キッチン別☆屋外物置あり☆NCV回線/インターネット無料☆
| 賃料・費用 |
4万9,000円(+管理費等 -円)
敷なし礼4万9,000円(1ヶ月)仲5万3,900円
保証金:なし
|
|---|---|
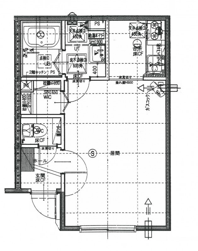
| 間取・専有 |
1K
|
| 住所 | 北海道函館市本通2丁目33-3 |
| 交通 | |
| 築年月 | |
| 駐車場 |
あり 駐車可能台数:1台
|
空室確認、見学、詳細を知りたい方はこちら!
お電話の際は「連合隊の物件」とお伝えください。
情報掲載期限:あと25日(更新日 2025/12/21)
- 物件写真・概要
- 周辺地図
-
空室確認、見学、詳細を知りたい方はこちら!
おすすめポイント
- バス/トイレ別
- オートロック
- 2階以上
- 都市ガス
- 室内洗濯機置場
- 駐車場あり
- エアコン付
- 独立洗面台
- 追い焚き風呂
- ペット相談可
- デザイナーズ
- 敷金・礼金0円
- 近くて便利!徒歩5分以内にある施設
- 4分
4分- 5分
5分- 4分
4分- 4分
4分- 4分
4分- 周辺施設を地図で確認
物件概要
所在階/建物の階建 1階(102) / 地上2階建 総戸数 主要採光面 構造 木造 契約期間 2年間 住宅保険 1万5,000円(2年間) その他費用 一時金 - 退去時清掃料:2万2,000円
入居可能時期 相談 管理人 無 取引態様 仲介 物件No 設備・特徴 - 物置
- 角部屋
- 照明器具付
- ウォークインクローゼット
- シューズボックス
- バス/トイレ別
- 温水洗浄トイレ
- 独立洗面台
- シャワー付洗面化粧台
- LPガス
- エアコン付
- ガス暖房
- モニタ付インターホン
- ディンプルキー
- インターネット利用料無料
- ケーブルテレビ
備考 学区色がついているアイコンをクリックすると、本物件までの道順を見ることができます。
主な周辺施設色がついているアイコンをクリックすると、本物件までの道順を見ることができます。
-
※連合隊は物件情報の精度向上に努めています:「物件情報に誤りがある」「成約済みである」などお気付きの点がございましたらこちらよりご連絡ください。
写真枚数:16枚