北浜町 貸家 B棟
ここに注目!☆築浅 戸建住宅☆トイレが1階、2階にあって便利☆室内階段がおしゃれ☆キッチン収納充実☆2階にウォークインクローゼットあります☆追い焚き機能&乾燥機能付きの浴室☆セントラルヒーティングで冬も暖かい☆3月末空き予定(予約受付中)☆
| 賃料・費用 |
13万5,000円(+管理費等 -円)
礼13万5,000円(1ヶ月)仲14万8,500円
|
|---|---|
| 間取・専有 |
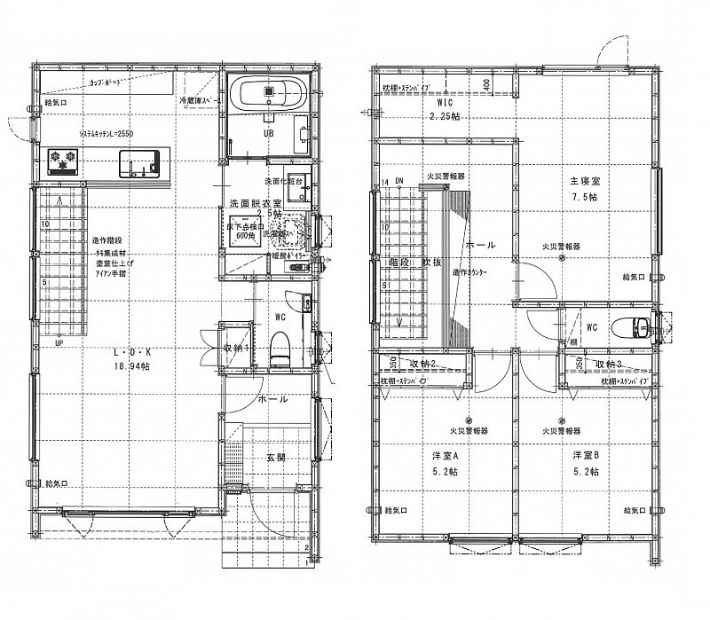
3LDK
|
| 住所 | 北海道函館市北浜町9-14-1 |
| 交通 | 函館バス「北浜町」停 (徒歩2分)|五稜郭駅(徒歩18分)道順を見る |
| 築年月 | 築3年(2023年3月) |
| 駐車場 |
あり 駐車可能台数:2台
|
空室確認、見学、詳細を知りたい方はこちら!
お電話の際は「連合隊の物件」とお伝えください。
情報掲載期限:あと18日(更新日 2026/3/9)
- 物件写真・概要
- 周辺地図
-
おすすめポイント
- オール電化
- 南向き
- 角地
- 都市ガス
- 車庫あり
- 駐車2台以上可
- エアコン付
- 平屋
- 追い焚き風呂
- ペット相談可
- リフォーム済み
- 敷金・礼金0円
- 近くて便利!徒歩5分以内にある施設
- 3分
3分- 5分
5分- 周辺施設を地図で確認
交通色がついているアイコンをクリックすると、本物件までの道順を見ることができます。
- 五稜郭駅JR函館本線、道南いさりび鉄道線徒歩18分(約1.5km)
- 函館バス「北浜町」停 徒歩2分
物件概要
建物の階建 地上2階建 主要採光面 構造 木造 契約期間 住宅保険 1万5,000円(2年間) その他費用 一時金 - 退去時清掃料:5万5,000円
入居可能時期 2026年4月初旬 管理人 無 取引態様 仲介 物件No 設備・特徴 - 物置
- 照明器具付
- シューズボックス
- 全居室収納あり
- バス/トイレ別
- トイレ2ヶ所以上
- シャワー付洗面化粧台
- 浴室乾燥機
- 追い焚き風呂
- 浴室1坪以上
- ガスコンロ
- コンロ3口以上
- システムキッチン
- LPガス
- 灯油暖房
- 灯油ボイラー
- モニタ付インターホン
- ディンプルキー
- ウォークインクローゼット
備考 現在入居中のため、掲載写真は参考写真となります。3月末空き予定です。 学区色がついているアイコンをクリックすると、本物件までの道順を見ることができます。
主な周辺施設色がついているアイコンをクリックすると、本物件までの道順を見ることができます。
-
※連合隊は物件情報の精度向上に努めています:「物件情報に誤りがある」「成約済みである」などお気付きの点がございましたらこちらよりご連絡ください。
写真枚数:22枚