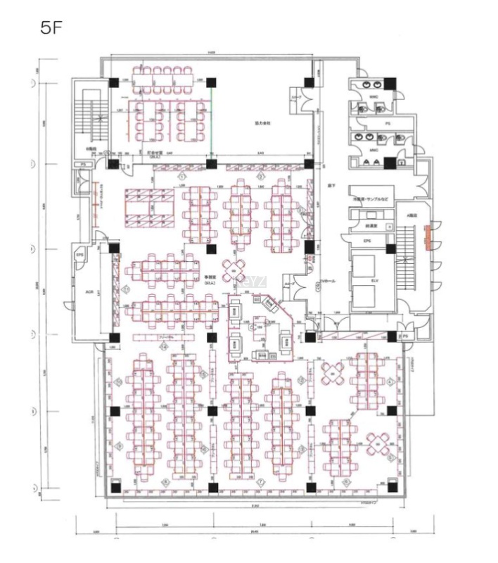
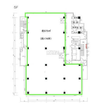
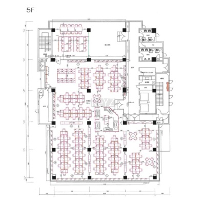
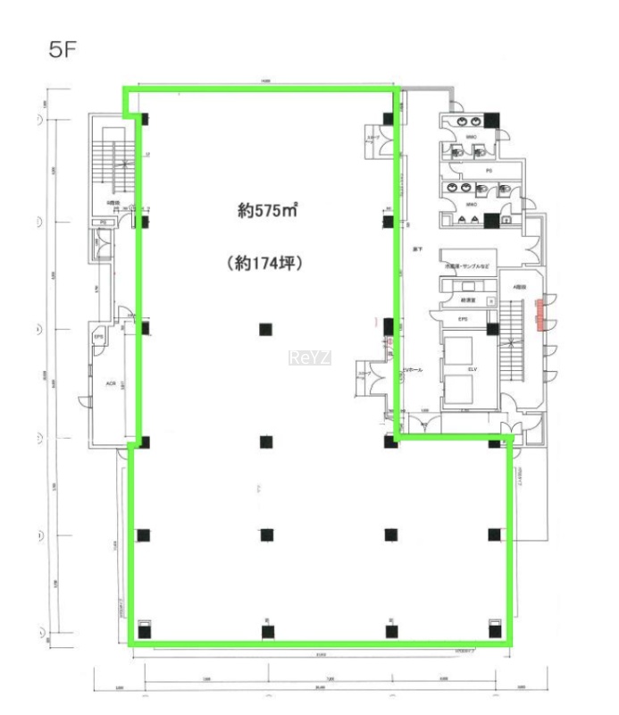
☆ポートアイランド 5F☆174坪の大型事務所
ここに注目!☆ReYZのコメント☆ポートアイランド内大手商社やホテルが集まるエリアの一角です。ワンフロア174坪と大型の事務所になります。用途や業種ご相談ください。現況の間仕切りある状態で引渡し希望。 ご希望など、お気軽にご相談ください。 オーナー様のご希望によりこちらに掲載していない物件のご紹介も可能です。
| 賃料・費用 |
165万円
(+管理費等 -円)
坪単価:約9,487円/坪
敷600万円礼330万円(2ヶ月)仲165万円
|
|---|---|
| 専有面積 | 575m² (173.93坪) |
| 住所 | 兵庫県神戸市中央区港島中町 (詳細非公開) |
| 交通 | 南公園駅(徒歩3分) |
| 階/階建 | 5階 / 6階建(地下1階) |
| 築年月 | 築38年(1987年5月) |
| 駐車場 |
あり (1万3,200円/台) 駐車可能台数:11台
保証金1ヶ月 |
【WEB面談可】
空室確認、見学、詳細を知りたい方はこちら!
お電話の際は「連合隊の物件」とお伝えください。
情報掲載期限:あと27日(更新日 2025/12/9)
- 物件写真・概要
- 周辺地図
-
【WEB面談可】
空室確認、見学、詳細を知りたい方はこちら!おすすめポイント
- 駅徒歩3分以内
- 駐車2台以上可
- エアコン付
交通
- 南公園駅ポートライナー駅近!徒歩3分(約240m)
物件概要
所在階/建物の階建 5階 / 地上6階 地下1階建 主要採光面 構造 鉄筋コンクリート(RC)造 間取り 契約期間 2年間 権利金 住宅保険 引渡し 相談 管理人 取引態様 仲介 物件No 468602 設備・特徴 - エレベーター
- エアコン付
- 男女別トイレ(共用部)
備考 要望があれば建築や改装のプロの内装相談までワンストップで可能です。※司法書士(見積もり無料)※工務店(請負契約完了までは一切費用がかかりません。)※火災保険(音響機器やレジまで幅広く提案)※オンライン重要事項説明(来店が必要なく、夜でも在宅で契約処理が完了できます。) ※空室でお困りの貸主様すぐに広告打ちますのでご応募お待ちしております。 -
ホームページはこちら兵庫県知事 (2) 第11981号
(株)ReYZ 【WEB面談可】- 加入団体
- (一社)兵庫県宅地建物取引業協会
- 保証協会
- (公社)全国宅地建物取引業保証協会
- 公正取引協議会
- (公社)近畿地区不動産公正取引協議会
※連合隊は物件情報の精度向上に努めています:「物件情報に誤りがある」「成約済みである」などお気付きの点がございましたらこちらよりご連絡ください。
写真枚数:7枚