☆栄町通3丁目 8F☆貸会議室有事務所
ここに注目!☆ReYZのコメント☆地下鉄みなと元町駅より徒歩2分。各線元町駅からも徒歩5分。事務所に最適。栄町通に面し、視認性良好。 ご希望など、お気軽にご相談ください。 オーナー様のご希望によりこちらに掲載していない物件のご紹介も可能です。
| 賃料・費用 |
6万5,001円
(+管理費等 3万7,298円)
坪単価:約5,368円/坪
敷56万円仲6万5,001円
|
|---|---|
| 専有面積 | 40.06m² (12.11坪) |
| 住所 | 兵庫県神戸市中央区栄町通 (詳細非公開) |
| 交通 | みなと元町駅(徒歩2分)|元町駅(徒歩5分) |
| 階/階建 | 8階 / 12階建(地下1階) |
| 築年月 | 築51年(1974年6月) |
| 駐車場 |
なし
|
【WEB面談可】
空室確認、見学、詳細を知りたい方はこちら!
お電話の際は「連合隊の物件」とお伝えください。
情報掲載期限:あと16日(更新日 2025/12/9)
- 物件写真・概要
- 周辺地図
-
【WEB面談可】
空室確認、見学、詳細を知りたい方はこちら!おすすめポイント
- 駅徒歩3分以内
- 複数路線利用可
交通
- みなと元町駅神戸市営地下鉄海岸線駅近!徒歩2分(約160m)
- 元町駅JR神戸線(大阪~神戸)、神戸高速東西線、阪神本線徒歩5分(約400m)
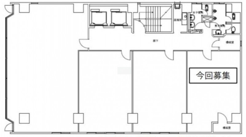
物件概要
所在階/建物の階建 8階(804) / 地上12階 地下1階建 主要採光面 構造 鉄骨鉄筋コンクリート(SRC)造 間取り 契約期間 3年間 権利金 住宅保険 引渡し 相談 管理人 取引態様 仲介 物件No 449849 設備・特徴 - 複数路線利用可
- エレベーター
備考 要望があれば建築や改装のプロの内装相談までワントップで可能です。※司法書士(見積もり無料)※工務店(請負契約完了までは一切費用がかかりません。)※火災保険(音響機器やレジまで幅広く提案)※オンライン重要事項説明(来店が必要なく、夜でも在宅で契約処理が完了できます。) ※空室でお困りの貸主様すぐに広告打ちますのでご応募お待ちしております。 -
ホームページはこちら兵庫県知事 (2) 第11981号
(株)ReYZ 【WEB面談可】- 加入団体
- (一社)兵庫県宅地建物取引業協会
- 保証協会
- (公社)全国宅地建物取引業保証協会
- 公正取引協議会
- (公社)近畿地区不動産公正取引協議会
※連合隊は物件情報の精度向上に努めています:「物件情報に誤りがある」「成約済みである」などお気付きの点がございましたらこちらよりご連絡ください。
写真枚数:6枚