☆住吉浜町 5階建大型倉庫・事務所付物件☆1,067.22坪
ここに注目!☆ReYZのコメント☆工業港区に位置する、利便性と機能性を兼ね備えた5階建の大型倉庫物件です。 事務所付き。 ご希望など、お気軽にご相談ください。 オーナー様のご希望によりこちらに掲載していない物件のご紹介も可能です。
| 賃料・費用 |
517万円
(+管理費等 -円)
坪単価:約4,845円/坪
敷2,820万円礼1,034万円(2ヶ月)仲517万円
|
|---|---|
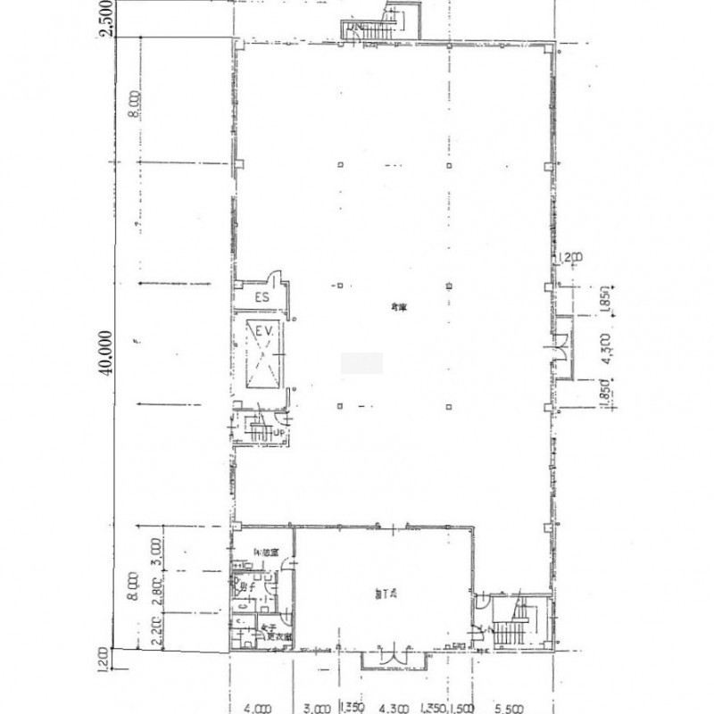
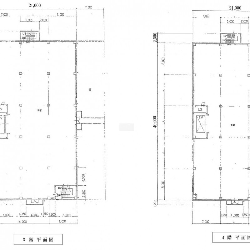
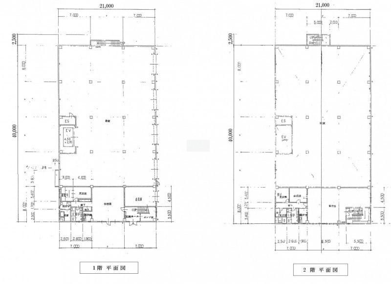
| 専有面積 | 3528m² (1067.22坪) |
| 住所 | 兵庫県神戸市東灘区住吉浜町 (詳細非公開) |
| 交通 | 住吉駅(徒歩14分)|南魚崎駅(徒歩15分) |
| 階/階建 | 1階 / 5階建 |
| 築年月 | 築32年(1993年11月) |
| 駐車場 |
あり
|
【WEB面談可】
空室確認、見学、詳細を知りたい方はこちら!
お電話の際は「連合隊の物件」とお伝えください。
情報掲載期限:あと21日(更新日 2025/12/3)
- 物件写真・概要
- 周辺地図
-
【WEB面談可】
空室確認、見学、詳細を知りたい方はこちら!おすすめポイント
- 即入居可
- 駐車場あり
- 複数路線利用可
- 事務所付
- 出店するなら…この業種がおすすめ!
- 飲食全般(重飲食含む)

- 喫茶・カフェ(軽飲食)

- バー・クラブ・スナック

- 小売・物販

- 美容・健康・介護

- 医療

- 教育・スクール

- 事務所

- アミューズメント

その他…倉庫
※出店不可の業種:飲食全般、水商売、アミューズメント
交通
- 住吉駅阪神本線徒歩14分(約1.2km)
- 南魚崎駅六甲ライナー徒歩15分(約1.2km)
物件概要
所在階/建物の階建 1階(1-5F) / 地上5階建 主要採光面 構造 鉄骨造 間取り 契約期間 権利金 住宅保険 出店推奨業種 事務所、その他(倉庫) 出店不可業種 飲食全般、水商売、アミューズメント 引渡し 即時 管理人 取引態様 仲介 物件No 447415 設備・特徴 - 複数路線利用可
- 事務所付
- リフト付
備考 要望があれば建築や改装のプロの内装相談までワンストップで可能です。※司法書士(見積もり無料)※工務店(請負契約完了までは一切費用がかかりません。)※火災保険(音響機器やレジまで幅広く提案)※オンライン重要事項説明(来店が必要なく、夜でも在宅で契約処理が完了できます。) ※空室でお困りの貸主様すぐに広告打ちますのでご応募お待ちしております。 -
ホームページはこちら兵庫県知事 (2) 第11981号
(株)ReYZ 【WEB面談可】- 加入団体
- (一社)兵庫県宅地建物取引業協会
- 保証協会
- (公社)全国宅地建物取引業保証協会
- 公正取引協議会
- (公社)近畿地区不動産公正取引協議会
※連合隊は物件情報の精度向上に努めています:「物件情報に誤りがある」「成約済みである」などお気付きの点がございましたらこちらよりご連絡ください。
写真枚数:6枚