☆住吉宮町4丁目 2Fテナント☆飲食店不可
ここに注目!☆ReYZのコメント☆ 空きテナントの非常に少ない住吉駅一分の立地にあるテナントです。 飲食店不可。基本的にはオフィス利用を想定しております。 ご希望など、お気軽にご相談ください。 オーナー様のご希望によりこちらに掲載していない物件のご紹介も可能です。
| 賃料・費用 |
25万3,000円
(+管理費等 1万1,000円)
坪単価:約9,675円/坪
敷250万円礼165万円仲25万3,000円
|
|---|---|
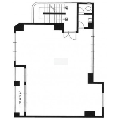
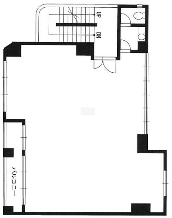
| 専有面積 | 86.45m² (26.15坪) |
| 住所 | 兵庫県神戸市東灘区住吉宮町 (詳細非公開) |
| 交通 | 住吉駅(徒歩1分)|御影駅(徒歩15分) |
| 階/階建 | 2階 / 5階建 |
| 築年月 | 築28年(1997年3月) |
| 駐車場 |
【WEB面談可】
空室確認、見学、詳細を知りたい方はこちら!
お電話の際は「連合隊の物件」とお伝えください。
情報掲載期限:あと5日(更新日 2025/11/28)
- 物件写真・概要
- 周辺地図
-
【WEB面談可】
空室確認、見学、詳細を知りたい方はこちら!おすすめポイント
- 即入居可
- 駅徒歩1分以内
- 複数路線利用可
- 出店するなら…この業種がおすすめ!
- 飲食全般(重飲食含む)

- 喫茶・カフェ(軽飲食)

- バー・クラブ・スナック

- 小売・物販

- 美容・健康・介護

- 医療

- 教育・スクール

- 事務所

- アミューズメント

※出店不可の業種:飲食全般
交通
- 住吉駅六甲ライナー、JR神戸線(大阪~神戸)駅近!徒歩1分(約80m)
- 御影駅阪神本線徒歩15分(約1.2km)
物件概要
所在階/建物の階建 2階 / 地上5階建 主要採光面 構造 鉄筋コンクリート(RC)造 間取り 契約期間 2年間 権利金 住宅保険 出店推奨業種 事務所 出店不可業種 飲食全般 引渡し 即時 管理人 取引態様 仲介 物件No 246325 設備・特徴 - 複数路線利用可
備考 要望があれば建築や改装のプロの内装相談までワントップで可能です。※司法書士(見積もり無料)※工務店(請負契約完了までは一切費用がかかりません。)※火災保険(音響機器やレジまで幅広く提案)※オンライン重要事項説明(来店が必要なく、夜でも在宅で契約処理が完了できます。) ※空室でお困りの貸主様すぐに広告打ちますのでご応募お待ちしております。 主な周辺施設
- セブンイレブン神戸JR住吉駅前店約80m(徒歩1分)
- 薬のヒグチ住吉駅前店約80m(徒歩1分)
-
ホームページはこちら兵庫県知事 (2) 第11981号
(株)ReYZ 【WEB面談可】- 加入団体
- (一社)兵庫県宅地建物取引業協会
- 保証協会
- (公社)全国宅地建物取引業保証協会
- 公正取引協議会
- (公社)近畿地区不動産公正取引協議会
※連合隊は物件情報の精度向上に努めています:「物件情報に誤りがある」「成約済みである」などお気付きの点がございましたらこちらよりご連絡ください。
写真枚数:6枚