☆岩園町 3階テナント☆高級感あふれる外観♪
ここに注目!☆ReYZのコメント☆芦屋の高級住宅街に佇むオフィス。高級感あふれるヨーロッパ調の建物。地下駐車場2台無料付。事務所仕様。 ご希望など、お気軽にご相談ください。 オーナー様のご希望によりこちらに掲載していない物件のご紹介も可能です。
| 賃料・費用 |
19万5,000円
(+管理費等 -円)
坪単価:約6,115円/坪
敷30万円礼50万円仲19万5,000円
|
|---|---|
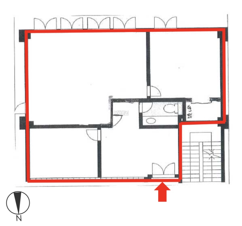
| 専有面積 | 105.44m² (31.89坪) |
| 住所 | 兵庫県芦屋市岩園町 (詳細非公開) |
| 交通 | 芦屋駅(徒歩14分)|芦屋川駅(徒歩15分) |
| 階/階建 | 3階 / 4階建(地下1階) |
| 築年月 | 築32年(1993年4月) |
| 駐車場 |
あり 駐車可能台数:2台
|
【WEB面談可】
空室確認、見学、詳細を知りたい方はこちら!
お電話の際は「連合隊の物件」とお伝えください。
新着 情報掲載期限:あと29日(更新日 2026/3/27)
- 物件写真・概要
- 周辺地図
-
【WEB面談可】
空室確認、見学、詳細を知りたい方はこちら!おすすめポイント
- 複数路線利用可
- 駐車2台以上可
- 出店するなら…この業種がおすすめ!
- 飲食全般(重飲食含む)

- 喫茶・カフェ(軽飲食)

- バー・クラブ・スナック

- 小売・物販

- 美容・健康・介護

- 医療

- 教育・スクール

- 事務所

- アミューズメント

※出店不可の業種:飲食全般、水商売、アミューズメント
交通
- 芦屋駅JR神戸線(大阪~神戸)徒歩14分(約1.2km)
- 芦屋川駅阪急神戸本線徒歩15分(約1.2km)
物件概要
所在階/建物の階建 3階(3E) / 地上4階 地下1階建 主要採光面 構造 鉄骨鉄筋コンクリート(SRC)造 間取り 契約期間 2年間 権利金 住宅保険 出店推奨業種 事務所 出店不可業種 飲食全般、水商売、アミューズメント 引渡し 2026年6月初旬 管理人 取引態様 仲介 物件No 521185 設備・特徴 - 複数路線利用可
- エレベーター
備考 要望があれば建築や改装のプロの内装相談までワンストップで可能です。※司法書士(見積もり無料)※工務店(請負契約完了までは一切費用がかかりません。)※火災保険(音響機器やレジまで幅広く提案)※オンライン重要事項説明(来店が必要なく、夜でも在宅で契約処理が完了できます。) ※空室でお困りの貸主様すぐに広告打ちますのでご応募お待ちしております。 -
ホームページはこちら兵庫県知事 (2) 第11981号
(株)ReYZ 【WEB面談可】- 加入団体
- (一社)兵庫県宅地建物取引業協会
- 保証協会
- (公社)全国宅地建物取引業保証協会
- 公正取引協議会
- (公社)近畿地区不動産公正取引協議会
※連合隊は物件情報の精度向上に努めています:「物件情報に誤りがある」「成約済みである」などお気付きの点がございましたらこちらよりご連絡ください。
写真枚数:3枚