☆人気の居留地エリア 4F事務所☆オフィスビル
ここに注目!☆ReYZのコメント☆ おしゃれな神戸旧居留地エリアのオフィスの募集です。公共交通機関アクセス抜群の立地。タイルカーペット他更新済み。 2ヶ月フリーレントキャンペーン中。 ご希望など、お気軽にご相談ください。 オーナー様のご希望によりこちらに掲載していない物件のご紹介も可能です。
この物件は、入居後2ヶ月分の賃料が無料になります。
契約時の初期費用を抑えることができるメリットがあります。違約金などは不動産会社にお問合せください。
| 賃料・費用 |
51万9,349円
(+管理費等 14万2,102円)
坪単価:約1.0万円/坪
敷566万5,632円仲51万9,349円
|
|---|---|
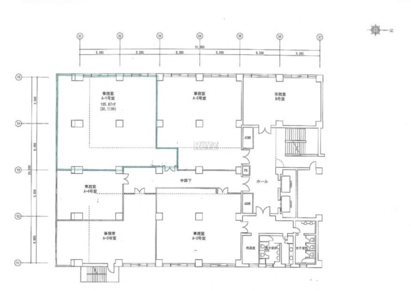
| 専有面積 | 165.67m² (50.11坪) |
| 住所 | 兵庫県神戸市中央区浪花町 (詳細非公開) |
| 交通 | 神戸三宮駅(徒歩8分) |
| 階/階建 | 4階 / 8階建(地下1階) |
| 築年月 | 築71年(1954年12月) |
| 駐車場 |
なし
|
【WEB面談可】
空室確認、見学、詳細を知りたい方はこちら!
お電話の際は「連合隊の物件」とお伝えください。
情報掲載期限:あと6日(更新日 2026/2/16)
- 物件写真・概要
- 周辺地図
-
【WEB面談可】
空室確認、見学、詳細を知りたい方はこちら!おすすめポイント
- 複数路線利用可
交通
- 神戸三宮駅阪急神戸本線徒歩8分(約640m)
物件概要
所在階/建物の階建 4階(A-1’) / 地上8階 地下1階建 主要採光面 構造 鉄骨鉄筋コンクリート(SRC)造 間取り 契約期間 2年間 権利金 フリーレント あり(フリーレント期間2ヶ月) 住宅保険 引渡し 2026年3月初旬 管理人 取引態様 仲介 物件No 503374 設備・特徴 - 複数路線利用可
- 個別空調
備考 要望があれば建築や改装のプロの内装相談までワンストップで可能です。※司法書士(見積もり無料)※工務店(請負契約完了までは一切費用がかかりません。)※火災保険(音響機器やレジまで幅広く提案)※オンライン重要事項説明(来店が必要なく、夜でも在宅で契約処理が完了できます。) ※空室でお困りの貸主様すぐに広告打ちますのでご応募お待ちしております。 -
ホームページはこちら兵庫県知事 (2) 第11981号
(株)ReYZ 【WEB面談可】- 加入団体
- (一社)兵庫県宅地建物取引業協会
- 保証協会
- (公社)全国宅地建物取引業保証協会
- 公正取引協議会
- (公社)近畿地区不動産公正取引協議会
※連合隊は物件情報の精度向上に努めています:「物件情報に誤りがある」「成約済みである」などお気付きの点がございましたらこちらよりご連絡ください。
写真枚数:6枚