☆灘南通1丁目 一戸建☆事務所兼住まい可
ここに注目!☆ReYZのコメント☆ 大石駅徒歩5分、庭付きの一戸建てタイプ貸店舗・事務所です。 事務所兼住居やデイサービスも相談可。 定期借家権2年、延長可能。 ご希望など、お気軽にご相談ください。 オーナー様のご希望によりこちらに掲載していない物件のご紹介も可能です。
この物件の契約期間は 2年間です。
定期借家物件は、賃貸借契約期間満了後、原則として契約の更新ができない物件です。再契約の可否については不動産会社にお問合せください。
| 賃料・費用 |
11万円
(+管理費等 -円)
坪単価:約7,276円/坪
敷10万円礼22万円(2ヶ月)仲11万円
|
|---|---|
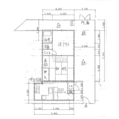
| 専有面積 | 50m² (15.12坪) |
| 住所 | 兵庫県神戸市灘区灘南通 (詳細非公開) |
| 交通 | 大石駅(徒歩5分) |
| 階/階建 | 路面 / 1階建 |
| 築年月 | 築30年(1995年12月) |
| 駐車場 |
【WEB面談可】
空室確認、見学、詳細を知りたい方はこちら!
お電話の際は「連合隊の物件」とお伝えください。
情報掲載期限:あと5日(更新日 2026/2/16)
- 物件写真・概要
- 周辺地図
-
【WEB面談可】
空室確認、見学、詳細を知りたい方はこちら!おすすめポイント
- 路面店
- 駅徒歩5分以内
- 出店するなら…この業種がおすすめ!
- 飲食全般(重飲食含む)

- 喫茶・カフェ(軽飲食)

- バー・クラブ・スナック

- 小売・物販

- 美容・健康・介護

- 医療

- 教育・スクール

- 事務所

- アミューズメント

その他…デイサービス
※出店不可の業種:飲食全般、水商売、アミューズメント
交通
- 大石駅阪神本線徒歩5分(約400m)
物件概要
所在階/建物の階建 1階 / 地上1階建 主要採光面 構造 木造 間取り 契約期間 定期借家(2年間) 権利金 住宅保険 出店推奨業種 事務所、その他(デイサービス) 出店不可業種 飲食全般、水商売、アミューズメント 引渡し 相談 管理人 取引態様 仲介 物件No 503204 設備・特徴 - 路面店
備考 要望があれば建築や改装のプロの内装相談までワンストップで可能です。※司法書士(見積もり無料)※工務店(請負契約完了までは一切費用がかかりません。)※火災保険(音響機器やレジまで幅広く提案)※オンライン重要事項説明(来店が必要なく、夜でも在宅で契約処理が完了できます。) ※空室でお困りの貸主様すぐに広告打ちますのでご応募お待ちしております。 -
ホームページはこちら兵庫県知事 (2) 第11981号
(株)ReYZ 【WEB面談可】- 加入団体
- (一社)兵庫県宅地建物取引業協会
- 保証協会
- (公社)全国宅地建物取引業保証協会
- 公正取引協議会
- (公社)近畿地区不動産公正取引協議会
※連合隊は物件情報の精度向上に努めています:「物件情報に誤りがある」「成約済みである」などお気付きの点がございましたらこちらよりご連絡ください。
写真枚数:3枚