☆三宮町2丁目 1-2F☆神戸三宮センター街に面す
ここに注目!☆ReYZのコメント☆ 神戸三宮センター街に面す。1・2階のメゾネットタイプ。物品販売点・サービス系店舗におすすめです。 ご希望など、お気軽にご相談ください。 オーナー様のご希望によりこちらに掲載していない物件のご紹介も可能です。
| 賃料・費用 |
165万円
(+管理費等 25万8,981円)
坪単価:約3.3万円/坪
敷1,000万円仲165万円
|
|---|---|
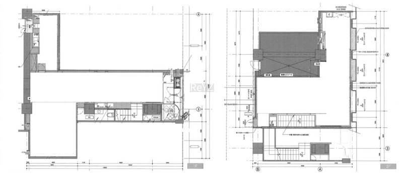
| 専有面積 | 164.77m² (49.84坪) |
| 住所 | 兵庫県神戸市中央区三宮町 (詳細非公開) |
| 交通 | 神戸三宮駅(徒歩5分)|三ノ宮駅(徒歩9分)|元町駅(徒歩6分) |
| 階/階建 | 路面 / 9階建(地下2階) |
| 築年月 | 築47年(1978年6月) |
| 駐車場 |
【WEB面談可】
空室確認、見学、詳細を知りたい方はこちら!
お電話の際は「連合隊の物件」とお伝えください。
新着 情報掲載期限:あと26日(更新日 2025/12/8)
- 物件写真・概要
- 周辺地図
-
【WEB面談可】
空室確認、見学、詳細を知りたい方はこちら!おすすめポイント
- 即入居可
- 路面店
- 駅徒歩5分以内
- 複数路線利用可
- 商店街に面す
- 出店するなら…この業種がおすすめ!
- 飲食全般(重飲食含む)

- 喫茶・カフェ(軽飲食)

- バー・クラブ・スナック

- 小売・物販

- 美容・健康・介護

- 医療

- 教育・スクール

- 事務所

- アミューズメント

※出店不可の業種:アミューズメント、水商売
交通
- 神戸三宮駅阪急神戸本線徒歩5分(約400m)
- 三ノ宮駅JR神戸線(大阪~神戸)徒歩9分(約720m)
- 元町駅JR神戸線(大阪~神戸)、神戸高速東西線、阪神本線徒歩6分(約480m)
物件概要
所在階/建物の階建 1階(1-2F) / 地上9階 地下2階建 主要採光面 構造 鉄骨鉄筋コンクリート(SRC)造 間取り 契約期間 3年間 権利金 住宅保険 出店推奨業種 小売・物販、美容・健康・介護 出店不可業種 アミューズメント、水商売 その他費用 毎月の費用 - 三宮センター街2丁目振興組合費:7万6,700円
引渡し 即時 管理人 取引態様 仲介 物件No 500600 設備・特徴 - 複数路線利用可
- 商店街に面す
- 路面店
備考 要望があれば建築や改装のプロの内装相談までワンストップで可能です。※司法書士(見積もり無料)※工務店(請負契約完了までは一切費用がかかりません。)※火災保険(音響機器やレジまで幅広く提案)※オンライン重要事項説明(来店が必要なく、夜でも在宅で契約処理が完了できます。) ※空室でお困りの貸主様すぐに広告打ちますのでご応募お待ちしております。 -
ホームページはこちら兵庫県知事 (2) 第11981号
(株)ReYZ 【WEB面談可】- 加入団体
- (一社)兵庫県宅地建物取引業協会
- 保証協会
- (公社)全国宅地建物取引業保証協会
- 公正取引協議会
- (公社)近畿地区不動産公正取引協議会
※連合隊は物件情報の精度向上に努めています:「物件情報に誤りがある」「成約済みである」などお気付きの点がございましたらこちらよりご連絡ください。
写真枚数:7枚