☆下沢通6丁目 1F2Fテナント☆合計183坪、フロア貸しも相談可
ここに注目!☆ReYZのコメント☆ 山手幹線沿い、クリニック移転空予定店舗です。業種何でもご相談ください。 ご希望など、お気軽にご相談ください。 オーナー様のご希望によりこちらに掲載していない物件のご紹介も可能です。
| 賃料・費用 |
124万2,450円
(+管理費等 3万3,000円)
坪単価:約6,787円/坪
敷112万9,500円礼372万7,350円(3ヶ月)仲124万2,450円
|
|---|---|
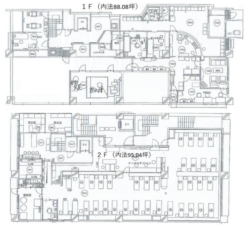
| 専有面積 | 605.24m² (183.08坪) |
| 住所 | 兵庫県神戸市兵庫区下沢通 (詳細非公開) |
| 交通 | 上沢駅(徒歩4分)|大開駅(徒歩8分) |
| 階/階建 | 路面 / 8階建 |
| 築年月 | 築44年(1981年3月) |
| 駐車場 |
なし
|
【WEB面談可】
空室確認、見学、詳細を知りたい方はこちら!
お電話の際は「連合隊の物件」とお伝えください。
情報掲載期限:あと12日(更新日 2025/11/27)
- 物件写真・概要
- 周辺地図
-
【WEB面談可】
空室確認、見学、詳細を知りたい方はこちら!おすすめポイント
- 路面店
- 駅徒歩5分以内
- 複数路線利用可
- スケルトン
- 出店するなら…この業種がおすすめ!
- 飲食全般(重飲食含む)

- 喫茶・カフェ(軽飲食)

- バー・クラブ・スナック

- 小売・物販

- 美容・健康・介護

- 医療

- 教育・スクール

- 事務所

- アミューズメント

※出店不可の業種:水商売、アミューズメント
交通
- 上沢駅神戸市営地下鉄西神・山手線徒歩4分(約320m)
- 大開駅神戸高速東西線徒歩8分(約640m)
物件概要
所在階/建物の階建 1階(1-2F) / 地上8階建 主要採光面 構造 鉄筋コンクリート(RC)造 間取り 契約期間 2年間 権利金 住宅保険 出店推奨業種 飲食全般(重飲食含む)、小売・物販、美容・健康・介護 出店不可業種 水商売、アミューズメント 引渡し 2026年5月初旬 管理人 取引態様 仲介 物件No 491772 設備・特徴 - 複数路線利用可
- スケルトン
- エレベーター
- 路面店
備考 要望があれば建築や改装のプロの内装相談までワンストップで可能です。※司法書士(見積もり無料)※工務店(請負契約完了までは一切費用がかかりません。)※火災保険(音響機器やレジまで幅広く提案)※オンライン重要事項説明(来店が必要なく、夜でも在宅で契約処理が完了できます。) ※空室でお困りの貸主様すぐに広告打ちますのでご応募お待ちしております。 -
ホームページはこちら兵庫県知事 (2) 第11981号
(株)ReYZ 【WEB面談可】- 加入団体
- (一社)兵庫県宅地建物取引業協会
- 保証協会
- (公社)全国宅地建物取引業保証協会
- 公正取引協議会
- (公社)近畿地区不動産公正取引協議会
※連合隊は物件情報の精度向上に努めています:「物件情報に誤りがある」「成約済みである」などお気付きの点がございましたらこちらよりご連絡ください。
写真枚数:11枚